北海道札幌市西区八軒六条西4丁目(八軒駅)の中古マンション・新築マンション・分譲マンション:物件詳細
交通 所在地 |
駅徒歩 |
価格 |
構造 階建/階 |
間取り 専有面積 |
物件種目 築年月 |
|
JR札沼線/八軒
北海道札幌市西区八軒六条西4丁目
|
12分
|
400万円
|
RC
4階建 / 4階
|
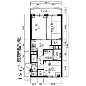
3DK
45.60m²
|
中古マンション
1979年11月(築46年2ヶ月)
|
|
最上階、管理人日勤
|
| 交通 | JR札沼線 八軒駅 徒歩12分 |
|---|
| その他の交通 | JR函館本線 琴似駅 徒歩15分 |
| 所在地 |
北海道札幌市西区八軒六条西4丁目
|
| 物件種目 |
中古マンション |
| 価格 |
400万円 |
平米単価 |
8.78万円 |
| 管理費等 |
9,580円 |
修繕積立金 |
8,250円 |
| 借地期間・地代(月額) |
- |
権利金 |
- |
| 敷金または保証金 |
- / - |
維持費等 |
- |
| その他一時金 |
- |
|
|
| 間取り |
3DK |
専有面積 |
45.60m²(壁芯) |
| 階建 / 階 |
4階建 / 4階 |
バルコニー |
5.76m² |
| 築年月 |
1979年11月(築46年2ヶ月)
|
建物構造 |
RC |
| 駐車場 |
空無 |
総戸数 |
57戸 |
| 駐輪場 |
有 150円/月 |
バイク置き場 |
- |
| ペット |
-
|
|
|
| 土地権利 |
所有権 |
敷地面積 |
- |
| 管理形態/管理員の勤務形態 |
一部委託/日勤(MMS(株)) |
国土法届出 |
- |
| アピールポイント |
●詳細は担当までお気軽にお問い合わせください
●平日・土日内覧可能です
●売却相談も随時募集しておりますのでいつでもお問い合わせください
●担当:山崎 090-2698-0018
●JR札沼線【八軒】駅徒歩12分
●札幌市西区八軒7条西3丁目3-2に月極駐車場月額9,350円
●学校区 八軒北小学校:八軒中学校 校区内
●近隣にはスーパー、コンビニ、ドラッグストア、公園等利便施設が充実 |
| 建物名・部屋番号 |
エスカイア八軒 411 |
| リフォーム履歴 |
- |
| リノベーション履歴 |
- |
| 瑕疵保証 |
- |
| 瑕疵保険 |
- |
| 評価・証明書 |
- |
| 備考 |
用途地域:近隣商業
|
| エネルギー消費性能 |
- |
| 断熱性能 |
- |
| 目安光熱費 |
- |
| バス・トイレ |
- |
| キッチン |
- |
| 設備・サービス |
収納スペース、クローゼット、オートロック、都市ガス、暖房、駐輪場 |
| その他 |
- |
| 条件等 |
- |
現況 |
所有者居住中 |
| 引渡可能時期 |
相談 |
物件番号 |
6987715544 |
| 情報公開日 |
2025年9月19日 |
次回更新予定日 |
2025年12月18日 |
| ケータイ用バーコード |
- スマートフォンでこの物件を見る
- スマートフォンからもこの物件をご覧になれます。
|
※「-」と表示されている項目については、情報提供会社にご確認ください。
| 周辺施設 |
マックスバリュ八軒5条店 |
| 距離 |
277m |
| 周辺施設 |
セブンイレブン札幌八軒5条西店 |
| 距離 |
169m |
| 周辺施設 |
社会医療法人北腎会坂泌尿器科病院 |
| 距離 |
731m |
ここから簡単にお問い合わせをすることができます。
(SSLでの暗号化での送信を希望されるお客さまは
こちら
よりお問い合わせください)
お問い合わせを行う前に
「個人情報の取り扱いについて」を必ずお読みください。
「個人情報の取り扱いについて」に同意いただいた場合は「上記にご同意の上 確認画面へ進む」のボタンをクリックしてください。
個人情報の取り扱いについて
皆さまが送付された個人情報はアットホーム(株)のサーバを経由し、お問い合わせ先の不動産会社にメールまたはFAXにて転送されるためアットホーム(株)にも保管されます。アットホーム(株)で保管された個人情報の取り扱いについては、【こちら】をご覧ください。
また、本画面でご記入いただいた個人情報は、お問い合わせ先の不動産会社でも保管します。 お問い合わせ先の不動産会社が保管する個人情報の取り扱いについては、不動産会社に直接お問い合わせください。
北海道知事免許 石狩(2)第8747号 |
|---|
- 交通:
- 札幌市東西線/西11丁目駅 徒歩2分
- 北海道札幌市中央区大通西13丁目4番地120 ジェネシスビル6階
- TEL:
- 011-213-1950
- FAX:
- 011-213-1939
- 所属団体:
- (公社)北海道宅地建物取引業協会会員(一社)北海道不動産公正取引協議会加盟
取引態様:専任媒介  - 10005496
|
- スマートフォンで
この不動産会社を見る

|
- 提携サイト等より掲載されている物件情報につきましては、不動産会社詳細情報にリンクされていないものがあります。
- 物件に関するお問合せは、物件詳細ページの「情報提供会社」に表示されている不動産会社へ直接お願いいたします。
- 間取図は、現況を優先させていただきます。
- 映像は物件の一部を撮影したものです。物件の契約にあたっての最終判断はご自身の判断に基づいて行ってください。
- 仲介手数料について

アットホームは物件情報の適正化に努めております。
内容に誤りがある場合にはこちらへご連絡ください。