千葉県船橋市藤原1丁目(船橋法典駅)の中古マンション・新築マンション・分譲マンション:物件詳細
交通 所在地 |
駅徒歩 |
価格 |
構造 階建/階 |
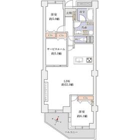
間取り 専有面積 |
物件種目 築年月 |
JR武蔵野線/船橋法典
千葉県船橋市藤原1丁目
|
4分
|
2,398万円
|
RC
5階建 / 4階
|
2SLDK
85.54m²
|
中古マンション
1980年5月(築45年6ヶ月)
|
管理人巡回
|
間取図
|
外観
|
<
その他の画像
>
|
交通 | JR武蔵野線 船橋法典駅 徒歩4分 |
所在地 |
千葉県船橋市藤原1丁目
|
物件種目 |
中古マンション |
価格 |
2,398万円 |
平米単価 |
28.04万円 |
管理費等 |
13,810円 |
修繕積立金 |
15,530円 |
借地期間・地代(月額) |
- |
権利金 |
- |
敷金または保証金 |
- / - |
維持費等 |
- |
その他一時金 |
- |
|
|
間取り |
2SLDK |
専有面積 |
85.54m²(壁芯) |
階建 / 階 |
5階建 / 4階 |
バルコニー |
10.06m² |
築年月 |
1980年5月(築45年6ヶ月)
|
建物構造 |
RC |
駐車場 |
- |
総戸数 |
25戸 |
駐輪場 |
- |
バイク置き場 |
- |
ペット |
-
|
|
|
土地権利 |
所有権 |
敷地面積 |
- |
管理形態/管理員の勤務形態 |
全部委託/巡回(クラシテ株式会社) |
国土法届出 |
- |
建物名・部屋番号 |
藤原の郷マンション 406 |
リフォーム履歴 |
- |
リノベーション履歴 |
2025年4月 システムキッチン新規交換・洗面化粧台新規交換・トイレ新規交換・ユニットバス新規交換・洗濯防水パン交換・クロス全室貼替・床材新規張替・カーテンレール交換・照明器具新規取付・ハウスクリーニング 等 ※実施年月は最も古い履歴を表示 |
瑕疵保証 |
- |
瑕疵保険 |
- |
評価・証明書 |
- |
備考 |
主要採光面:南東向き
|
エネルギー消費性能 |
- |
断熱性能 |
- |
目安光熱費 |
- |
バス・トイレ |
- |
キッチン |
カウンターキッチン、システムキッチン、3口以上コンロ |
設備・サービス |
- |
その他 |
- |
条件等 |
- |
現況 |
空家 |
引渡可能時期 |
即時 |
物件番号 |
6987729983 |
情報公開日 |
2025年9月21日 |
次回更新予定日 |
2025年10月19日 |
ケータイ用バーコード |
- スマートフォンでこの物件を見る
- スマートフォンからもこの物件をご覧になれます。
|
※「-」と表示されている項目については、情報提供会社にご確認ください。
周辺施設 |
デイリーヤマザキ船橋法典駅前店 |
距離 |
295m |
周辺施設 |
マツモトキヨシ法典駅前店 |
距離 |
286m |
周辺施設 |
医療法人静和会中山病院 |
距離 |
2158m |
ここから簡単にお問い合わせをすることができます。
(SSLでの暗号化での送信を希望されるお客さまは
こちら
よりお問い合わせください)
お問い合わせを行う前に
「個人情報の取り扱いについて」を必ずお読みください。
「個人情報の取り扱いについて」に同意いただいた場合は「上記にご同意の上 確認画面へ進む」のボタンをクリックしてください。
個人情報の取り扱いについて
皆さまが送付された個人情報はアットホーム(株)のサーバを経由し、お問い合わせ先の不動産会社にメールまたはFAXにて転送されるためアットホーム(株)にも保管されます。アットホーム(株)で保管された個人情報の取り扱いについては、【こちら】をご覧ください。
また、本画面でご記入いただいた個人情報は、お問い合わせ先の不動産会社でも保管します。 お問い合わせ先の不動産会社が保管する個人情報の取り扱いについては、不動産会社に直接お問い合わせください。
東京都知事免許(1)第107767号 |
---|
- 交通:
- JR総武線/小岩駅 徒歩3分
- 東京都江戸川区南小岩8丁目16-12 緑マンション101
- TEL:
- 03-6657-8330
- FAX:
- 03-6657-8324
- 所属団体:
- (公社)全日本不動産協会会員(公社)首都圏不動産公正取引協議会加盟
取引態様:媒介  - 00272504
|
- スマートフォンで
この不動産会社を見る

|
- 提携サイト等より掲載されている物件情報につきましては、不動産会社詳細情報にリンクされていないものがあります。
- 物件に関するお問合せは、物件詳細ページの「情報提供会社」に表示されている不動産会社へ直接お願いいたします。
- 間取図は、現況を優先させていただきます。
- 映像は物件の一部を撮影したものです。物件の契約にあたっての最終判断はご自身の判断に基づいて行ってください。
- 仲介手数料について

アットホームは物件情報の適正化に努めております。
内容に誤りがある場合にはこちらへご連絡ください。