不動産 賃貸 マンション等の住宅情報:埼玉住まい情報


福岡県福岡市南区横手1丁目(井尻駅)の中古マンション・新築マンション・分譲マンション:物件詳細

  • 物件詳細
  • 情報の見方
  • 印刷用画面
交通
所在地
駅徒歩 価格 構造
階建/階
間取り
専有面積
物件種目
築年月

西鉄天神大牟田線/井尻

福岡県福岡市南区横手1丁目

13分

2,180万円

RC

6階建 / 1階

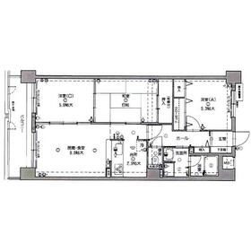
3LDK

66.87m²

中古マンション

1994年3月(築31年8ヶ月)

おすすめPOINT駐車場2台分、管理人日勤、IT重説対応物件

おすすめコメント

小学校徒歩5分圏内、中学校徒歩10分圏内の立地!最寄駅は西鉄「井尻」駅徒歩14分!令和7年7月 室内フローリング→フロアタイルへ貼替実施!

間取図

間取図

外観

外観

<
その他の画像
  • リビング
  • リビング
  • リビング
  • リビング
  • 室内
  • 室内
  • 共有部分
  • 玄関
  • 洗面
  • 洗面
  • トイレ
  • トイレ
  • キッチン
  • キッチン
  • 玄関
  • 設備
  • 洗面
  • 洗面
  • バス/シャワー
  • 室内
  • 室内
  • 室内
  • 室内
  • バルコニー
>
    • とりあえず保存
    • お問い合わせ
    交通

    西鉄天神大牟田線 井尻駅 徒歩13分

    その他の交通

    西鉄天神大牟田線 大橋駅 徒歩18分

    JR鹿児島本線 笹原駅 徒歩23分

    所在地 福岡県福岡市南区横手1丁目
    物件種目 中古マンション
    価格 2,180万円 平米単価 32.61万円
    管理費等 5,000円 修繕積立金 12,100円
    借地期間・地代(月額) 権利金
    敷金または保証金 - / - 維持費等 町費:350円/月
    その他一時金    
    間取り 3LDK 専有面積 66.87m²(壁芯)
    階建 / 階 6階建 / 1階 バルコニー 8.85m²
    築年月 1994年3月(築31年8ヶ月) 建物構造 RC
    駐車場 有 6,000円/月 総戸数 40戸
    駐輪場 有 100円/月 バイク置き場 有 300円/月
    ペット    
    土地権利 所有権 敷地面積
    管理形態/管理員の勤務形態 全部委託/日勤(総合システム管理株式会社) 国土法届出
    アピールポイント 特急停車駅の西鉄「大橋」駅まで徒歩19分!物件周辺には徒歩5分以内にコンビニや病院があり、徒歩10分圏内にはスーパーもあります。本物件敷地内駐車場は機械式となり、車両制限がありますが、本物件から徒歩2分のところに月極駐車場を1台確保しており引継ぎ可能です!駐車場代は月額7,700円(税込)となります。毎月水道使用料として2ヵ月に一度請求があります。室内の独立洗面台、洗濯防水パンは令和7年6月実施、フローリング→フロアタイルへ令和7年7月にリフォーム実施しております。その他内装クリーニングを実施済みです!お気軽にお問合せ下さい!
    建物名・部屋番号 アンピール大橋南
    リフォーム履歴
    リノベーション履歴
    瑕疵保証
    瑕疵保険
    評価・証明書
    備考
    主要採光面:南西向き
    用途地域:1種住居、2種住居
    IT重説対応物件
    リフォーム・リノベーション対応可物件
    エネルギー消費性能
    断熱性能
    目安光熱費
    バス・トイレ
    キッチン カウンターキッチン、3口以上コンロ
    設備・サービス バイク置き場、収納スペース、室内洗濯機置場、クローゼット、オートロック、給湯、都市ガス、駐輪場
    その他 エレベーター
    条件等 現況 空家
    引渡可能時期 相談 物件番号 6987849999
    情報公開日 2025年10月1日 次回更新予定日 2025年10月29日
    ケータイ用バーコード

    QRコード

    スマートフォンでこの物件を見る
    スマートフォンからもこの物件をご覧になれます。
    ※「-」と表示されている項目については、情報提供会社にご確認ください。

    この物件の周辺情報

    周辺施設 業務スーパー福岡的場店
    距離 884m
    周辺施設 デイリーヤマザキ福岡横手4丁目店
    距離 271m
    周辺施設 ほっともっと横手小学校前店
    距離 310m
    周辺施設 私立香蘭女子短期大学
    距離 471m
    周辺施設 福岡市立横手中学校
    距離 624m
    周辺施設 福岡市立横手小学校
    距離 205m
    周辺施設 香蘭女子短大附属香蘭幼稚園
    距離 162m

    クイックお問い合わせ

    ここから簡単にお問い合わせをすることができます。
    (SSLでの暗号化での送信を希望されるお客さまは こちら よりお問い合わせください)

    お問い合わせ内容(必須)
    お名前(必須) 姓  名 
    メールアドレス(必須)
    ※携帯電話のメールアドレスをご入力される方はこちらをご確認ください
    電話番号(必須)
    - -

    ※入力いただいた電話番号へSMSまたは音声でパスワードをご連絡します。

    携帯電話の番号をご入力の方へ

    携帯電話の番号をご入力の方へ
    確認画面にて送信ボタンをクリックするとSMSが携帯電話に届きます。
    そのSMSに記載のパスワード(認証番号)を入力し、お問い合わせを完了してください。
    尚、SMSの送信者番号は 0005 202 760 となります。
    これはアットホームの固定番号です。

    備考欄 希望条件、物件案内希望日、質問などがございましたらご記入ください。
    お問い合わせを行う前に「個人情報の取り扱いについて」を必ずお読みください。
    「個人情報の取り扱いについて」に同意いただいた場合は「上記にご同意の上 確認画面へ進む」のボタンをクリックしてください。

    個人情報の取り扱いについて

    皆さまが送付された個人情報はアットホーム(株)のサーバを経由し、お問い合わせ先の不動産会社にメールまたはFAXにて転送されるためアットホーム(株)にも保管されます。アットホーム(株)で保管された個人情報の取り扱いについては、【こちら】をご覧ください。
    また、本画面でご記入いただいた個人情報は、お問い合わせ先の不動産会社でも保管します。 お問い合わせ先の不動産会社が保管する個人情報の取り扱いについては、不動産会社に直接お問い合わせください。

    情報提供会社

    情報提供会社

    OfficeMaeda不動産

    福岡県知事免許(1)第20800号

    交通:
    地下鉄空港線/室見駅 徒歩7分
    福岡県福岡市早良区南庄6丁目7-18 
    TEL:
    092-836-8441
    FAX:
    092-836-8441
    所属団体:
    (公社)全日本不動産協会会員
    (一社)全国不動産協会会員
    (一社)九州不動産公正取引協議会加盟

    取引態様:専任媒介

    • 会社情報
    • 80508209
    スマートフォンで
    この不動産会社を見る
    QRコード
    • とりあえず保存
    • お問い合わせ
    • 提携サイト等より掲載されている物件情報につきましては、不動産会社詳細情報にリンクされていないものがあります。
    • 物件に関するお問合せは、物件詳細ページの「情報提供会社」に表示されている不動産会社へ直接お願いいたします。
    • 間取図は、現況を優先させていただきます。
    • 映像は物件の一部を撮影したものです。物件の契約にあたっての最終判断はご自身の判断に基づいて行ってください。
    • 仲介手数料について仲介手数料

    アットホームは物件情報の適正化に努めております。 内容に誤りがある場合にはこちらへご連絡ください。

    【埼玉住まい情報】では、日本全国の物件から賃貸マンションや賃貸アパート・賃貸一戸建て等の賃貸住宅情報、新築マンション・分譲マンションや中古マンション等の売買マンション情報、新築一戸建てや中古一戸建てなどの戸建住宅、 土地など、総合的な不動産住宅情報検索サービスを提供致します。
    【埼玉住まい情報】から、選りすぐりの不動産物件を探してみましょう。

    【免責事項】
    このコーナーの運営はアットホーム株式会社(https://www.athome.co.jp/)が行っています。
    このコーナーに掲載している物件情報は、「アットホーム不動産情報ネットワーク」に加盟する不動産会社等(情報提供元)から提供されています。信頼性の高い情報提供が行えるよう、最大限の努力をしておりますが、その内容を保証するものではありません。 利用者のみなさまと各情報提供元との取引に起因する損害および情報が掲載されたことに起因する損害等については、株式会社イーシティ埼玉、およびアットホームは一切責任を負いません。
    各物件情報の内容や画像等はすべて現況を優先させていただきます。
    お取引等(お取引の準備、資金調達等を含みます)の際には、内容や契約条件等について、各情報提供元より十分な説明を受け、ご自身でご確認の上、判断してください。
    このコーナーへの物件情報のご掲載、その他不動産業務ソリューション等についての不動産会社様のお問合せはこちらからお願いいたします。

    物件画像: