東京都江東区豊洲3丁目(豊洲駅)の中古マンション・新築マンション・分譲マンション:物件詳細
交通 所在地 |
駅徒歩 |
価格 |
構造 階建/階 |
間取り 専有面積 |
物件種目 築年月 |
|
東京メトロ有楽町線/豊洲
東京都江東区豊洲3丁目
|
6分
|
15,480万円
|
RC
地上43階地下1階建 / 16階
|
2LDK
67.42m²
|
中古マンション
2008年10月(築17年3ヶ月)
|
|
楽器相談、フロントサービス、24時間セキュリティー、管理人日勤
|
|
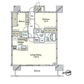
間取図
本来3LDKプランの入る広さを贅沢に2LDKに!3LDKプランもございますのでご相談ください♪
|
リビング
広々リビングは、一度内見して実感してみてください・・!!! ※家具付きではありません。
|
その他の画像
|
| 交通 | 東京メトロ有楽町線 豊洲駅 徒歩6分 |
|---|
| その他の交通 | 新交通ゆりかもめ 豊洲駅 徒歩9分 |
| 所在地 |
東京都江東区豊洲3丁目
|
| 物件種目 |
中古マンション |
| 価格 |
15,480万円 |
平米単価 |
229.61万円 |
| 管理費等 |
22,860円 |
修繕積立金 |
20,230円 |
| 借地期間・地代(月額) |
- |
権利金 |
- |
| 敷金または保証金 |
- / - |
維持費等 |
- |
| その他一時金 |
なし |
|
|
| 間取り |
2LDK |
専有面積 |
67.42m²(壁芯) |
| 階建 / 階 |
地上43階地下1階建 / 16階 |
バルコニー |
12.60m² |
| 築年月 |
2008年10月(築17年3ヶ月)
|
建物構造 |
RC |
| 駐車場 |
有 25,190円/月 |
総戸数 |
- |
| 駐輪場 |
有 |
バイク置き場 |
- |
| ペット |
-
|
|
|
| 土地権利 |
所有権 |
敷地面積 |
- |
| 管理形態/管理員の勤務形態 |
全部委託/日勤 |
国土法届出 |
- |
| アピールポイント |
★仲介手数料一律50万円税別キャンペーン中です!★
<物件ポイント>
◇16階部分 専有面積67.42㎡ 2LDK
◆日当たり良好
◇各部屋に収納あり
◆公園が近く、子育てに適した立地です。
◇リフォーム内容(2018年2月一部)
・リビング&廊下壁一部タイル設置
・浴室にテレビ設置
・洋室にクローゼット設置
・クロス張替え(トイレ以外)
・リビングダイニングにダウンライト設置
◆スーパー、コンビニが徒歩圏内
◇周辺施設が多く、住環境良好
【アクセス】
有楽町線「豊洲」駅 徒歩6分
ゆりかもめ「豊洲」駅 徒歩9< |
| 建物名・部屋番号 |
1603 |
| リフォーム履歴 |
■内装:2018年2月 一部クロス貼替、ダウンライト設置、浴室TV設置 ※実施年月は最も古い履歴を表示 |
| リノベーション履歴 |
- |
| 瑕疵保証 |
- |
| 瑕疵保険 |
- |
| 評価・証明書 |
- |
| 備考 |
主要採光面:西向き
施工会社:清水建設株式会社
|
| エネルギー消費性能 |
- |
| 断熱性能 |
- |
| 目安光熱費 |
- |
| バス・トイレ |
TV付浴室、浴室乾燥機、オートバス、追焚機能、温水洗浄便座 |
| キッチン |
食器洗浄乾燥機、浄水器、IHクッキングヒーター、3口以上コンロ |
| 設備・サービス |
モニター付オートロック、全居室収納、床暖房、室内洗濯機置場、トランクルーム、オートロック、ディンプルキー、防犯カメラ、給湯、全居室フローリング、エアコン、ワイドバルコニー、駐輪場 |
| その他 |
宅配BOX、エレベーター2基以上、エレベーター |
| 条件等 |
- |
現況 |
所有者居住中 |
| 引渡可能時期 |
指定有り2026年10月31日 |
物件番号 |
6987859454 |
| 仲介手数料 |
55万円 |
|
|
| 情報公開日 |
2025年10月2日 |
次回更新予定日 |
2025年12月19日 |
| ケータイ用バーコード |
- スマートフォンでこの物件を見る
- スマートフォンからもこの物件をご覧になれます。
|
※「-」と表示されている項目については、情報提供会社にご確認ください。
| 周辺施設 |
まいばすけっと塩浜1丁目店 |
| 距離 |
1029m |
| 周辺施設 |
ローソンTHE TOYOSU TOWER店 |
| 距離 |
2m |
| 周辺施設 |
どらっぐぱぱす豊洲フォレシア店 |
| 距離 |
603m |
| 周辺施設 |
蓮美幼児学園とよすナーサリー |
| 距離 |
145m |
ここから簡単にお問い合わせをすることができます。
(SSLでの暗号化での送信を希望されるお客さまは
こちら
よりお問い合わせください)
お問い合わせを行う前に
「個人情報の取り扱いについて」を必ずお読みください。
「個人情報の取り扱いについて」に同意いただいた場合は「上記にご同意の上 確認画面へ進む」のボタンをクリックしてください。
個人情報の取り扱いについて
皆さまが送付された個人情報はアットホーム(株)のサーバを経由し、お問い合わせ先の不動産会社にメールまたはFAXにて転送されるためアットホーム(株)にも保管されます。アットホーム(株)で保管された個人情報の取り扱いについては、【こちら】をご覧ください。
また、本画面でご記入いただいた個人情報は、お問い合わせ先の不動産会社でも保管します。 お問い合わせ先の不動産会社が保管する個人情報の取り扱いについては、不動産会社に直接お問い合わせください。
東京都知事免許(1)第112844号 |
|---|
- 交通:
- 東京メトロ丸ノ内線/新高円寺駅 徒歩4分
- 東京都杉並区高円寺南2丁目23-6 ハイツトモエ103号
- TEL:
- 03-5913-7240
- 所属団体:
- (公社)全日本不動産協会会員(公社)首都圏不動産公正取引協議会加盟
取引態様:専属専任媒介  - 00282075
|
- スマートフォンで
この不動産会社を見る

|
- 提携サイト等より掲載されている物件情報につきましては、不動産会社詳細情報にリンクされていないものがあります。
- 物件に関するお問合せは、物件詳細ページの「情報提供会社」に表示されている不動産会社へ直接お願いいたします。
- 間取図は、現況を優先させていただきます。
- 映像は物件の一部を撮影したものです。物件の契約にあたっての最終判断はご自身の判断に基づいて行ってください。
- 仲介手数料について

アットホームは物件情報の適正化に努めております。
内容に誤りがある場合にはこちらへご連絡ください。