静岡県浜松市中央区新津町(助信駅)の中古マンション・新築マンション・分譲マンション:物件詳細
交通 所在地 |
駅徒歩 |
価格 |
構造 階建/階 |
間取り 専有面積 |
物件種目 築年月 |
遠州鉄道/助信
静岡県浜松市中央区新津町
|
7分
|
2,250万円
|
RC
8階建 / 4階
|
2LDK
80.75m²
|
中古マンション
1996年8月(築29年3ヶ月)
|
管理人巡回
|
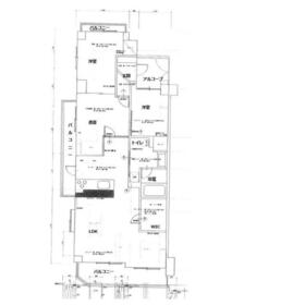
間取図
|
|
その他の画像
|
交通 | 遠州鉄道 助信駅 徒歩7分 |
---|
その他の交通 | 遠州鉄道 八幡駅 徒歩12分 遠州鉄道 曳馬駅 徒歩19分 |
所在地 |
静岡県浜松市中央区新津町
|
物件種目 |
中古マンション |
価格 |
2,250万円 |
平米単価 |
27.87万円 |
管理費等 |
16,150円 |
修繕積立金 |
18,170円 |
借地期間・地代(月額) |
- |
権利金 |
- |
敷金または保証金 |
- / - |
維持費等 |
- |
その他一時金 |
- |
|
|
間取り |
2LDK |
専有面積 |
80.75m²(壁芯) |
階建 / 階 |
8階建 / 4階 |
バルコニー |
17.99m² |
築年月 |
1996年8月(築29年3ヶ月)
|
建物構造 |
RC |
駐車場 |
- |
総戸数 |
- |
駐輪場 |
有 150円/月 |
バイク置き場 |
有 500円/月 |
ペット |
-
|
|
|
土地権利 |
所有権 |
敷地面積 |
- |
管理形態/管理員の勤務形態 |
全部委託/巡回(大和ライフネクスト) |
国土法届出 |
- |
アピールポイント |
広々とした延床面積80.75㎡の居室空間、更に室外の占有空間も魅力の3面バルコニー有の住戸なので、外に開けた視界が室内側にも広さを感じさせます。また受け取りに心配なしの宅配BOX付で、その上複層ガラスだから、1枚ガラスと比べ暖房熱が窓から逃げにくく節電にもなります。ちなみに省エネ給湯器設置済です。家族が帰宅を焦がれる2LDK。ご案内いたしますのでお気軽にご連絡ください。 |
建物名・部屋番号 |
ネオハイツ助信 401 |
リフォーム履歴 |
■水回り:2017年10月 キッチン、浴室、トイレ、洗面所、給湯器 2017年10月キッチン、浴室、トイレ、洗面所、給湯器※実施年月は最も古い履歴を表示 ■内装:2020年2月 内装全面(床・壁・天井・建具) 2020年2月内装全面(床・壁・天井・建具)※実施年月は最も古い履歴を表示 ※実施年月は最も古い履歴を表示 |
リノベーション履歴 |
2020年2月 2020年2月4LDKを2LDKにリノベーション※実施年月は最も古い履歴を表示 ※実施年月は最も古い履歴を表示 |
瑕疵保証 |
- |
瑕疵保険 |
- |
評価・証明書 |
- |
備考 |
主要採光面:南向き
用途地域:1種住居
駐車場敷地内1台契約中(承継可否要確認)5,200円/月
|
エネルギー消費性能 |
- |
断熱性能 |
- |
目安光熱費 |
- |
バス・トイレ |
浴室乾燥機、追焚機能、シャワー付洗面化粧台、温水洗浄便座 |
キッチン |
カウンターキッチン、システムキッチン、食器洗浄乾燥機、3口以上コンロ、ガスオーブン、グリル |
設備・サービス |
全居室収納、ウォークインクローゼット、バイク置き場、三面バルコニー、室内洗濯機置場、オートロック、省エネ給湯器、給湯、出窓、室内物干し、エアコン、駐輪場、照明器具、複層ガラス |
その他 |
宅配BOX、来客用駐車場、エレベーター |
条件等 |
- |
現況 |
所有者居住中 |
引渡可能時期 |
相談 |
物件番号 |
6987860733 |
情報公開日 |
2025年10月6日 |
次回更新予定日 |
2025年10月20日 |
ケータイ用バーコード |
- スマートフォンでこの物件を見る
- スマートフォンからもこの物件をご覧になれます。
|
※「-」と表示されている項目については、情報提供会社にご確認ください。
周辺施設 |
浜松いわた信用金庫野口支店 |
距離 |
212m |
周辺施設 |
ドトールコーヒーショップEneJet柳通り新津店 |
距離 |
200m |
周辺施設 |
スターバックスコーヒー浜松新津町店 |
距離 |
361m |
周辺施設 |
セブンイレブン浜松新津町店 |
距離 |
486m |
周辺施設 |
ミスタードーナツマックスバリュ浜松助信ショップ |
距離 |
703m |
ここから簡単にお問い合わせをすることができます。
(SSLでの暗号化での送信を希望されるお客さまは
こちら
よりお問い合わせください)
お問い合わせを行う前に
「個人情報の取り扱いについて」を必ずお読みください。
「個人情報の取り扱いについて」に同意いただいた場合は「上記にご同意の上 確認画面へ進む」のボタンをクリックしてください。
個人情報の取り扱いについて
皆さまが送付された個人情報はアットホーム(株)のサーバを経由し、お問い合わせ先の不動産会社にメールまたはFAXにて転送されるためアットホーム(株)にも保管されます。アットホーム(株)で保管された個人情報の取り扱いについては、【こちら】をご覧ください。
また、本画面でご記入いただいた個人情報は、お問い合わせ先の不動産会社でも保管します。 お問い合わせ先の不動産会社が保管する個人情報の取り扱いについては、不動産会社に直接お問い合わせください。
愛知県知事免許(4)第21400号 |
---|
- 交通:
- 東海道本線/三河三谷駅 徒歩10分
- 愛知県蒲郡市三谷町弥生2丁目13
- TEL:
- 0120-17-2460
- FAX:
- 0533-66-3222
- 所属団体:
- (公社)愛知県宅地建物取引業協会会員東海不動産公正取引協議会加盟
取引態様:一般媒介  - 40401659
|
- スマートフォンで
この不動産会社を見る

|
- 提携サイト等より掲載されている物件情報につきましては、不動産会社詳細情報にリンクされていないものがあります。
- 物件に関するお問合せは、物件詳細ページの「情報提供会社」に表示されている不動産会社へ直接お願いいたします。
- 間取図は、現況を優先させていただきます。
- 映像は物件の一部を撮影したものです。物件の契約にあたっての最終判断はご自身の判断に基づいて行ってください。
- 仲介手数料について

アットホームは物件情報の適正化に努めております。
内容に誤りがある場合にはこちらへご連絡ください。