千葉県柏市南柏1丁目(南柏駅)の中古マンション・新築マンション・分譲マンション:物件詳細
交通 所在地 |
駅徒歩 |
価格 |
構造 階建/階 |
間取り 専有面積 |
物件種目 築年月 |
JR千代田・常磐緩行線/南柏
千葉県柏市南柏1丁目
|
2分
|
4,580万円
|
RC
14階建 / 14階
|
3LDK
85.31m²
|
中古マンション
2006年8月(築19年3ヶ月)
|
ペット相談、角部屋、最上階、バス1坪以上、3面採光、2面採光、24時間換気システム、区画整理地内、前面棟無、管理人巡回
|
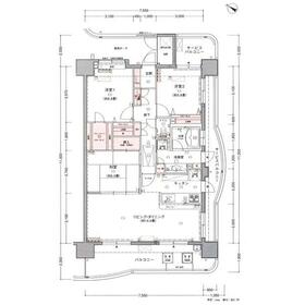
間取図
|
外観
常磐線南柏駅徒歩約2分! 駅近の利便性と落ち着いた環境を両立。洗練された映えるフォルムが輝きます♪
|
その他の画像
|
交通 | JR千代田・常磐緩行線 南柏駅 徒歩2分 |
---|
その他の交通 | 東武野田線 新柏駅 徒歩26分 |
所在地 |
千葉県柏市南柏1丁目
|
物件種目 |
中古マンション |
価格 |
4,580万円 |
平米単価 |
53.69万円 |
管理費等 |
13,880円 |
修繕積立金 |
18,070円 |
借地期間・地代(月額) |
- |
権利金 |
- |
敷金または保証金 |
- / - |
維持費等 |
町会費:200円/月 |
その他一時金 |
- |
|
|
間取り |
3LDK(和 6 洋 6.8・5.8 LDK 14.6) |
専有面積 |
85.31m²(壁芯) |
階建 / 階 |
14階建 / 14階 |
バルコニー |
16.34m² |
築年月 |
2006年8月(築19年3ヶ月)
|
建物構造 |
RC |
駐車場 |
有 10,000円/月 |
総戸数 |
- |
駐輪場 |
- |
バイク置き場 |
- |
ペット |
相談 |
|
|
土地権利 |
所有権 |
敷地面積 |
- |
管理形態/管理員の勤務形態 |
全部委託/巡回 |
国土法届出 |
- |
アピールポイント |
◇2025年11月末頃表層リフォーム予定あり。新しい空間に変わるワクワク感が広がります♪
◇毎日の生活に欠かせないスーパーや多彩な商業施設が徒歩圏内。南柏駅徒歩2分という立地が、利便性と安心感を同時に叶えます♪
◇三方向に広がるバルコニーが、明るさと通風を確保、室内のどこにいても快適さを感じられる空間設計が、上質な日常を支えます♪
◇ウォークインクローゼットをはじめ全居室に収納スペースを確保。すっきり片づけやすい収納力が嬉しいポイントです♪
◇開放感のあるカウンターキッチンからはリビングを見渡せ、家族との会話を楽しみながら家事ができます♪ |
建物名・部屋番号 |
|
リフォーム履歴 |
■水回り:2025年11月 キッチン、浴室、トイレ、洗面所 ■内装:2025年11月 全室クロス張替え 巾木交換、洋室変更、クリーニング ※実施年月は最も古い履歴を表示 |
リノベーション履歴 |
- |
瑕疵保証 |
- |
瑕疵保険 |
- |
評価・証明書 |
- |
備考 |
主要採光面:南西向き
|
エネルギー消費性能 |
- |
断熱性能 |
- |
目安光熱費 |
- |
バス・トイレ |
浴室暖房、浴室乾燥機、オートバス、追焚機能、シャワー付洗面化粧台、温水洗浄便座、浴室に窓あり |
キッチン |
カウンターキッチン、システムキッチン、浄水器、3口以上コンロ、グリル |
設備・サービス |
モニター付オートロック、全居室収納、ウォークインクローゼット、三面バルコニー、収納スペース、室内洗濯機置場、シューズインクローゼット、クローゼット、オートロック、モニター付インターホン、ディンプルキー、ダブルロックドア、洗濯機置場、ロフト、給湯、全居室フローリング、都市ガス、ワイドバルコニー、人感センサー付照明、フットライト |
その他 |
宅配BOX、敷地内公園、エレベーター2基以上、来客用駐車場、エレベーター |
条件等 |
- |
現況 |
空家 |
引渡可能時期 |
相談 |
物件番号 |
6987879789 |
仲介手数料 |
売買代金の3%+6万円 |
|
|
情報公開日 |
2025年10月7日 |
次回更新予定日 |
2025年10月30日 |
ケータイ用バーコード |
- スマートフォンでこの物件を見る
- スマートフォンからもこの物件をご覧になれます。
|
※「-」と表示されている項目については、情報提供会社にご確認ください。
周辺施設 |
マミーマート生鮮市場TOP南柏店 |
距離 |
549m |
周辺施設 |
ピノキオ幼児舎南柏保育園 |
距離 |
246m |
ここから簡単にお問い合わせをすることができます。
(SSLでの暗号化での送信を希望されるお客さまは
こちら
よりお問い合わせください)
お問い合わせを行う前に
「個人情報の取り扱いについて」を必ずお読みください。
「個人情報の取り扱いについて」に同意いただいた場合は「上記にご同意の上 確認画面へ進む」のボタンをクリックしてください。
個人情報の取り扱いについて
皆さまが送付された個人情報はアットホーム(株)のサーバを経由し、お問い合わせ先の不動産会社にメールまたはFAXにて転送されるためアットホーム(株)にも保管されます。アットホーム(株)で保管された個人情報の取り扱いについては、【こちら】をご覧ください。
また、本画面でご記入いただいた個人情報は、お問い合わせ先の不動産会社でも保管します。 お問い合わせ先の不動産会社が保管する個人情報の取り扱いについては、不動産会社に直接お問い合わせください。
東京都知事免許(1)第109447号 |
---|
- 交通:
- 都営新宿線/瑞江駅 徒歩1分
- 東京都江戸川区瑞江2丁目5-21 サイトウビル402
- TEL:
- 03-6824-4952
- FAX:
- 03-6824-4952
- 所属団体:
- (公社)東京都宅地建物取引業協会会員(公社)首都圏不動産公正取引協議会加盟
取引態様:専任媒介  - 00275127
|
- スマートフォンで
この不動産会社を見る

|
- 提携サイト等より掲載されている物件情報につきましては、不動産会社詳細情報にリンクされていないものがあります。
- 物件に関するお問合せは、物件詳細ページの「情報提供会社」に表示されている不動産会社へ直接お願いいたします。
- 間取図は、現況を優先させていただきます。
- 映像は物件の一部を撮影したものです。物件の契約にあたっての最終判断はご自身の判断に基づいて行ってください。
- 仲介手数料について

アットホームは物件情報の適正化に努めております。
内容に誤りがある場合にはこちらへご連絡ください。