兵庫県神戸市兵庫区湊町1丁目(神戸駅)の中古マンション・新築マンション・分譲マンション:物件詳細
交通 所在地 |
駅徒歩 |
価格 |
構造 階建/階 |
間取り 専有面積 |
物件種目 築年月 |
JR東海道本線/神戸
兵庫県神戸市兵庫区湊町1丁目
|
10分
|
3,180万円
|
SRC
14階建 / 10階
|
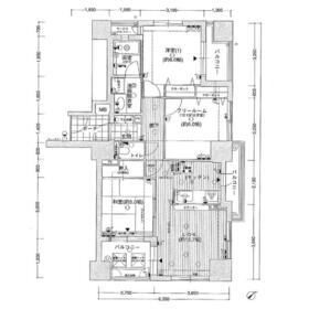
2SLDK
68.10m²
|
中古マンション
2001年6月(築24年5ヶ月)
|
角部屋、2面採光、管理人日勤
|
間取図
|
外観
|
<
その他の画像
>
|
交通 | JR東海道本線 神戸駅 徒歩10分 |
---|
その他の交通 | 神戸高速東西線 新開地駅 徒歩8分 地下鉄海岸線 ハーバーランド駅 徒歩9分 |
所在地 |
兵庫県神戸市兵庫区湊町1丁目
|
物件種目 |
中古マンション |
価格 |
3,180万円 |
平米単価 |
46.70万円 |
管理費等 |
8,460円 |
修繕積立金 |
13,220円 |
借地期間・地代(月額) |
- |
権利金 |
- |
敷金または保証金 |
- / - |
維持費等 |
- |
その他一時金 |
- |
|
|
間取り |
2SLDK(和 5 洋 6 LDK 12.7 S 6) |
専有面積 |
68.10m²(壁芯) |
階建 / 階 |
14階建 / 10階 |
バルコニー |
11.83m² |
築年月 |
2001年6月(築24年5ヶ月)
|
建物構造 |
SRC |
駐車場 |
- |
総戸数 |
- |
駐輪場 |
- |
バイク置き場 |
- |
ペット |
-
|
|
|
土地権利 |
所有権 |
敷地面積 |
- |
管理形態/管理員の勤務形態 |
全部委託/日勤(合人社計画研究所) |
国土法届出 |
- |
アピールポイント |
ついつい長風呂になってしまいそうなTV付バスルーム仕様、更に証拠をとらえて犯罪を抑止する防犯カメラ完備だから、侵入抑止力にもなります。また広々とした延床面積68.1㎡の居室空間で、その上食後お皿を下げるのもスムーズなカウンターキッチン仕様なので、食後の片付けも楽ちんです。ちなみに夕食を作りながら翌日のお弁当も作れるコンロ3口以上付です。自然に団らんが生まれる2SLDK。実際の空間をご自身で体感ください。 |
建物名・部屋番号 |
|
リフォーム履歴 |
■水回り:2016年7月 浴室 ■内装:2016年7月 サッシ 内窓工事 ※実施年月は最も古い履歴を表示 |
リノベーション履歴 |
- |
瑕疵保証 |
- |
瑕疵保険 |
- |
評価・証明書 |
- |
備考 |
主要採光面:東向き
施工会社:竹中工務店
用途地域:近隣商業
|
エネルギー消費性能 |
- |
断熱性能 |
- |
目安光熱費 |
- |
バス・トイレ |
TV付浴室、浴室乾燥機、オートバス、追焚機能、シャワー付洗面化粧台、温水洗浄便座、浴室に窓あり |
キッチン |
カウンターキッチン、3口以上コンロ |
設備・サービス |
モニター付オートロック、室内洗濯機置場、防犯カメラ、都市ガス、ダウンライト、複層ガラス |
その他 |
エレベーター |
条件等 |
- |
現況 |
所有者居住中 |
引渡可能時期 |
2025年12月中旬予定 |
物件番号 |
6987906484 |
仲介手数料 |
売買代金の3%+6万円 |
|
|
情報公開日 |
2025年10月5日 |
次回更新予定日 |
2025年11月3日 |
ケータイ用バーコード |
- スマートフォンでこの物件を見る
- スマートフォンからもこの物件をご覧になれます。
|
※「-」と表示されている項目については、情報提供会社にご確認ください。
周辺施設 |
ファミリーマート神戸湊町店 |
距離 |
228m |
周辺施設 |
神戸市立兵庫くすのき幼稚園 |
距離 |
421m |
周辺施設 |
医療法人白楊会湊の杜病院 |
距離 |
708m |
ここから簡単にお問い合わせをすることができます。
(SSLでの暗号化での送信を希望されるお客さまは
こちら
よりお問い合わせください)
お問い合わせを行う前に
「個人情報の取り扱いについて」を必ずお読みください。
「個人情報の取り扱いについて」に同意いただいた場合は「上記にご同意の上 確認画面へ進む」のボタンをクリックしてください。
個人情報の取り扱いについて
皆さまが送付された個人情報はアットホーム(株)のサーバを経由し、お問い合わせ先の不動産会社にメールまたはFAXにて転送されるためアットホーム(株)にも保管されます。アットホーム(株)で保管された個人情報の取り扱いについては、【こちら】をご覧ください。
また、本画面でご記入いただいた個人情報は、お問い合わせ先の不動産会社でも保管します。 お問い合わせ先の不動産会社が保管する個人情報の取り扱いについては、不動産会社に直接お問い合わせください。
兵庫県知事免許(2)第12178号 |
---|
- 兵庫県神戸市北区上津台4丁目25-6
- TEL:
- 078-939-4986
- FAX:
- 078-939-5179
- 所属団体:
- (一社)兵庫県宅地建物取引業協会会員(公社)近畿地区不動産公正取引協議会加盟
取引態様:専任媒介  - 50104808
|
- スマートフォンで
この不動産会社を見る

|
- 提携サイト等より掲載されている物件情報につきましては、不動産会社詳細情報にリンクされていないものがあります。
- 物件に関するお問合せは、物件詳細ページの「情報提供会社」に表示されている不動産会社へ直接お願いいたします。
- 間取図は、現況を優先させていただきます。
- 映像は物件の一部を撮影したものです。物件の契約にあたっての最終判断はご自身の判断に基づいて行ってください。
- 仲介手数料について

アットホームは物件情報の適正化に努めております。
内容に誤りがある場合にはこちらへご連絡ください。