石川県野々市市稲荷4丁目(野々市駅)の中古マンション・新築マンション・分譲マンション:物件詳細
交通 所在地 |
駅徒歩 |
価格 |
構造 階建/階 |
間取り 専有面積 |
物件種目 築年月 |
|
IRいしかわ鉄道/野々市
石川県野々市市稲荷4丁目
|
18分
|
1,390万円
|
SRC
6階建 / 4階
|
3LDK
63.40m²
|
中古マンション
1997年7月(築28年8ヶ月)
|
|
ペット相談、管理人日勤
|
|
間取図
|
外観
|
<
その他の画像
>
|
| 交通 | IRいしかわ鉄道 野々市駅 徒歩18分 |
| 所在地 |
石川県野々市市稲荷4丁目
|
| 物件種目 |
中古マンション |
| 価格 |
1,390万円 |
平米単価 |
21.93万円 |
| 管理費等 |
8,800円 |
修繕積立金 |
10,030円 |
| 借地期間・地代(月額) |
- |
権利金 |
- |
| 敷金または保証金 |
- / - |
維持費等 |
- |
| その他一時金 |
- |
|
|
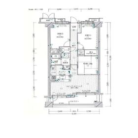
| 間取り |
3LDK(和 4.5 洋 6・6) |
専有面積 |
63.40m²(内法) |
| 階建 / 階 |
6階建 / 4階 |
バルコニー |
10.10m² |
| 築年月 |
1997年7月(築28年8ヶ月)
|
建物構造 |
SRC |
| 駐車場 |
空無 |
総戸数 |
- |
| 駐輪場 |
有 無料 |
バイク置き場 |
- |
| ペット |
小型犬可・ 猫可 |
|
|
| 土地権利 |
所有権 |
敷地面積 |
1,872.03m² |
| 管理形態/管理員の勤務形態 |
一部委託/日勤(アパコミュニティ株式会社) |
国土法届出 |
- |
| アピールポイント |
■人気の野々市市内 1500万以下
■リフォーム費用も軽微ですみそうです。自分好みに作り換えましょう。リフォーム相談承ります
■敷地内駐車場ないが近隣には何個か月極あります。
■小学校近い
■静かな住宅街
■慣れたらマンションでの生活って楽♪(ゴミ捨て当番、除雪作業等ない・・etc)
■4階 景色綺麗
■ペット飼育可 |
| 建物名・部屋番号 |
|
| リフォーム履歴 |
- |
| リノベーション履歴 |
- |
| 瑕疵保証 |
- |
| 瑕疵保険 |
- |
| 評価・証明書 |
- |
| 備考 |
主要採光面:東向き
施工会社:西松建設
用途地域:準工業
|
| エネルギー消費性能 |
- |
| 断熱性能 |
- |
| 目安光熱費 |
- |
| バス・トイレ |
オートバス、温水洗浄便座 |
| キッチン |
3口以上コンロ |
| 設備・サービス |
全居室収納、オートロック、洗濯機置場、駐輪場、人感センサー付照明 |
| その他 |
エレベーター |
| 条件等 |
- |
現況 |
空家 |
| 引渡可能時期 |
即時 |
物件番号 |
6987926317 |
| 仲介手数料 |
売買代金の3.3% |
|
|
| 情報公開日 |
2026年1月29日 |
次回更新予定日 |
2026年2月12日 |
| ケータイ用バーコード |
- スマートフォンでこの物件を見る
- スマートフォンからもこの物件をご覧になれます。
|
※「-」と表示されている項目については、情報提供会社にご確認ください。
| 周辺施設 |
無印良品野々市明倫通り店 |
| 距離 |
391m |
| 周辺施設 |
セブンイレブン野々市三日市店 |
| 距離 |
653m |
| 周辺施設 |
スターバックスコーヒー野々市堀内店 |
| 距離 |
551m |
ここから簡単にお問い合わせをすることができます。
(SSLでの暗号化での送信を希望されるお客さまは
こちら
よりお問い合わせください)
お問い合わせを行う前に
「個人情報の取り扱いについて」を必ずお読みください。
「個人情報の取り扱いについて」に同意いただいた場合は「上記にご同意の上 確認画面へ進む」のボタンをクリックしてください。
個人情報の取り扱いについて
皆さまが送付された個人情報はアットホーム(株)のサーバを経由し、お問い合わせ先の不動産会社にメールまたはFAXにて転送されるためアットホーム(株)にも保管されます。アットホーム(株)で保管された個人情報の取り扱いについては、【こちら】をご覧ください。
また、本画面でご記入いただいた個人情報は、お問い合わせ先の不動産会社でも保管します。 お問い合わせ先の不動産会社が保管する個人情報の取り扱いについては、不動産会社に直接お問い合わせください。
石川県知事免許(1)第4536号 |
|---|
- 交通:
- IRいしかわ鉄道/西金沢駅
- 石川県金沢市古府町南303-1
- TEL:
- 076-225-5734
- FAX:
- 076-225-5735
- 所属団体:
- (公社)石川県宅地建物取引業協会会員北陸不動産公正取引協議会加盟
取引態様:専属専任媒介  - 40412373
|
- スマートフォンで
この不動産会社を見る

|
- 提携サイト等より掲載されている物件情報につきましては、不動産会社詳細情報にリンクされていないものがあります。
- 物件に関するお問合せは、物件詳細ページの「情報提供会社」に表示されている不動産会社へ直接お願いいたします。
- 間取図は、現況を優先させていただきます。
- 映像は物件の一部を撮影したものです。物件の契約にあたっての最終判断はご自身の判断に基づいて行ってください。
- 仲介手数料について

アットホームは物件情報の適正化に努めております。
内容に誤りがある場合にはこちらへご連絡ください。