東京都足立区中央本町1丁目(梅島駅)の中古マンション・新築マンション・分譲マンション:物件詳細
交通 所在地 |
駅徒歩 |
価格 |
構造 階建/階 |
間取り 専有面積 |
物件種目 築年月 |
東武伊勢崎線/梅島
東京都足立区中央本町1丁目
|
12分
|
4,680万円
|
SRC
12階建 / 11階
|
3SLDK
85.05m²
|
中古マンション
2000年1月(築25年10ヶ月)
|
常時ゴミ出し可能、南向き、振分、外観タイル張り、管理人日勤
|
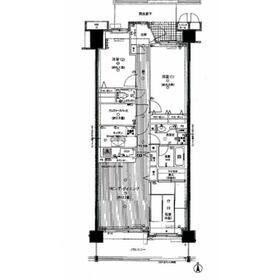
間取図
|
外観
|
<
その他の画像
>
|
交通 | 東武伊勢崎線 梅島駅 徒歩12分 |
---|
その他の交通 | 東武伊勢崎線 五反野駅 徒歩15分 東武伊勢崎線 西新井駅 徒歩21分 |
所在地 |
東京都足立区中央本町1丁目
|
物件種目 |
中古マンション |
価格 |
4,680万円 |
平米単価 |
55.03万円 |
管理費等 |
13,100円 |
修繕積立金 |
6,000円 |
借地期間・地代(月額) |
- |
権利金 |
- |
敷金または保証金 |
- / - |
維持費等 |
- |
その他一時金 |
- |
|
|
間取り |
3SLDK(和 6 洋 8・6.1 LDK 12.2 S 2.5) |
専有面積 |
85.05m²(壁芯) |
階建 / 階 |
12階建 / 11階 |
バルコニー |
11.13m² |
築年月 |
2000年1月(築25年10ヶ月)
|
建物構造 |
SRC |
駐車場 |
有 9,000円/月 |
総戸数 |
122戸 |
駐輪場 |
有 500円/月 |
バイク置き場 |
- |
ペット |
-
|
|
|
土地権利 |
所有権 |
敷地面積 |
- |
管理形態/管理員の勤務形態 |
全部委託/日勤(株式会社長谷工コミュニティ) |
国土法届出 |
- |
アピールポイント |
足立区役所隣接!梅島駅まで徒歩12分。落ち着いた住宅街の分譲マンションです。納戸もあり収納たっぷりです。敷地内ゴミ置場もあり便利です。駐車場(月額9,000円)・駐輪場(月額500円)空有。 |
建物名・部屋番号 |
ウインベル中央公園 1102 |
リフォーム履歴 |
- |
リノベーション履歴 |
- |
瑕疵保証 |
- |
瑕疵保険 |
- |
評価・証明書 |
- |
備考 |
主要採光面:南向き
用途地域:準工業
|
エネルギー消費性能 |
- |
断熱性能 |
- |
目安光熱費 |
- |
バス・トイレ |
浴室乾燥機、追焚機能、温水洗浄便座 |
キッチン |
カウンターキッチン、システムキッチン、3口以上コンロ、グリル |
設備・サービス |
モニター付オートロック、全居室収納、収納スペース、室内洗濯機置場、クローゼット、オートロック、ダブルロックドア、給湯、都市ガス、駐輪場 |
その他 |
エレベーター |
条件等 |
- |
現況 |
空家 |
引渡可能時期 |
相談 |
物件番号 |
6987938875 |
仲介手数料 |
売買代金の3%+6万円 |
|
|
情報公開日 |
2025年10月8日 |
次回更新予定日 |
2025年11月5日 |
ケータイ用バーコード |
- スマートフォンでこの物件を見る
- スマートフォンからもこの物件をご覧になれます。
|
※「-」と表示されている項目については、情報提供会社にご確認ください。
周辺施設 |
ローソン足立中央本町五丁目店 |
距離 |
284m |
周辺施設 |
医療法人社団苑風会苑風会病院 |
距離 |
264m |
ここから簡単にお問い合わせをすることができます。
(SSLでの暗号化での送信を希望されるお客さまは
こちら
よりお問い合わせください)
お問い合わせを行う前に
「個人情報の取り扱いについて」を必ずお読みください。
「個人情報の取り扱いについて」に同意いただいた場合は「上記にご同意の上 確認画面へ進む」のボタンをクリックしてください。
個人情報の取り扱いについて
皆さまが送付された個人情報はアットホーム(株)のサーバを経由し、お問い合わせ先の不動産会社にメールまたはFAXにて転送されるためアットホーム(株)にも保管されます。アットホーム(株)で保管された個人情報の取り扱いについては、【こちら】をご覧ください。
また、本画面でご記入いただいた個人情報は、お問い合わせ先の不動産会社でも保管します。 お問い合わせ先の不動産会社が保管する個人情報の取り扱いについては、不動産会社に直接お問い合わせください。
東京都知事免許(8)第63585号 |
---|
- 交通:
- 東京メトロ丸ノ内線/四谷三丁目駅 徒歩1分
- 東京都新宿区左門町6-17 SEN四谷ビル1F
- TEL:
- 03-5366-5600
- FAX:
- 03-5366-5601
- 所属団体:
- (公社)全日本不動産協会会員(公社)首都圏不動産公正取引協議会加盟
取引態様:専属専任媒介  - 00312935
|
- スマートフォンで
この不動産会社を見る

|
- 提携サイト等より掲載されている物件情報につきましては、不動産会社詳細情報にリンクされていないものがあります。
- 物件に関するお問合せは、物件詳細ページの「情報提供会社」に表示されている不動産会社へ直接お願いいたします。
- 間取図は、現況を優先させていただきます。
- 映像は物件の一部を撮影したものです。物件の契約にあたっての最終判断はご自身の判断に基づいて行ってください。
- 仲介手数料について

アットホームは物件情報の適正化に努めております。
内容に誤りがある場合にはこちらへご連絡ください。