埼玉県志木市幸町1丁目(志木駅)の中古マンション・新築マンション・分譲マンション:物件詳細
交通 所在地 |
駅徒歩 |
価格 |
構造 階建/階 |
間取り 専有面積 |
物件種目 築年月 |
東武東上線/志木
埼玉県志木市幸町1丁目
|
10分
|
4,680万円
|
SRC
13階建 / 12階
|
4LDK
79.83m²
|
中古マンション
1986年7月(築39年4ヶ月)
|
管理人常駐
|
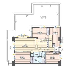
間取図
ビッグコミュニティの南西角部屋53㎡ルーフバルコニー付き!全室オールリノベーションのお部屋です!
|
リビング
ビッグコミュニティの南西角部屋53㎡ルーフバルコニー付き!全室オールリノベーションのお部屋です!
|
<
その他の画像
>
|
交通 | 東武東上線 志木駅 徒歩10分 |
所在地 |
埼玉県志木市幸町1丁目
|
物件種目 |
中古マンション |
価格 |
4,680万円 |
平米単価 |
58.63万円 |
管理費等 |
11,670円 |
修繕積立金 |
12,100円 |
借地期間・地代(月額) |
- |
権利金 |
- |
敷金または保証金 |
- / - |
維持費等 |
- |
その他一時金 |
- |
|
|
間取り |
4LDK(洋 5.8・5.7・5.6・5.2 LDK 13.9) |
専有面積 |
79.83m²(壁芯) |
階建 / 階 |
13階建 / 12階 |
バルコニー |
13.21m² |
築年月 |
1986年7月(築39年4ヶ月)
|
建物構造 |
SRC |
駐車場 |
有 11,000円/月 |
総戸数 |
247戸 |
駐輪場 |
- |
バイク置き場 |
- |
ペット |
-
|
|
|
土地権利 |
所有権 |
敷地面積 |
- |
管理形態/管理員の勤務形態 |
全部委託/常駐(大和ライフネクスト(株)) |
国土法届出 |
- |
アピールポイント |
南西角部屋53㎡ルーフバルコニー付き!
全室・水回り・オールリノベーションのお部屋です!
新規内装フルリフォーム済 (2025年9月9日完成)
■ タカラスタンダードキッチン(食洗機・浄水器内蔵シャワー水栓・ガラストップコンロ)
■TOTOユニットバス(浴室換気乾燥機付)
■TOTOトイレ(ウォシュレット一体型)
■パナソニック洗面化粧台 (LED三面鏡・混合水栓)
■TVモニター付きインターホン 分電盤 ■フロアタイル (玄関 トイレ・洗面室)
■給排水管新規交換 (専有部分内飛び込みより)
■全居室フローリング
■給湯器(追焚付)
建具
■全室クロス (天井・壁)
■下足入(ミラー付)
■室内クリーニングetc・・・ |
建物名・部屋番号 |
コスモ志木 |
リフォーム履歴 |
■水回り:2025年9月 キッチン、浴室、トイレ、洗面所、給排水管、給湯器 ■内装:2025年9月 内装全面(床・壁・天井・建具) ※実施年月は最も古い履歴を表示 |
リノベーション履歴 |
- |
瑕疵保証 |
- |
瑕疵保険 |
- |
評価・証明書 |
- |
備考 |
主要採光面:南西向き
|
エネルギー消費性能 |
- |
断熱性能 |
- |
目安光熱費 |
- |
バス・トイレ |
浴室乾燥機、オートバス、追焚機能、シャワー付洗面化粧台、温水洗浄便座 |
キッチン |
食器洗浄乾燥機、浄水器、3口以上コンロ |
設備・サービス |
モニター付オートロック、室内洗濯機置場、モニター付インターホン、全居室フローリング、ルーフバルコニー、二面バルコニー |
その他 |
- |
条件等 |
- |
現況 |
空家 |
引渡可能時期 |
即時 |
物件番号 |
6987947922 |
仲介手数料 |
売買代金の3%+6万円 |
|
|
情報公開日 |
2025年10月9日 |
次回更新予定日 |
2025年11月6日 |
ケータイ用バーコード |
- スマートフォンでこの物件を見る
- スマートフォンからもこの物件をご覧になれます。
|
※「-」と表示されている項目については、情報提供会社にご確認ください。
周辺施設 |
セブンイレブン志木愛宕通り店 |
距離 |
376m |
周辺施設 |
ファミリーマート志木幸町四丁目店 |
距離 |
362m |
ここから簡単にお問い合わせをすることができます。
(SSLでの暗号化での送信を希望されるお客さまは
こちら
よりお問い合わせください)
お問い合わせを行う前に
「個人情報の取り扱いについて」を必ずお読みください。
「個人情報の取り扱いについて」に同意いただいた場合は「上記にご同意の上 確認画面へ進む」のボタンをクリックしてください。
個人情報の取り扱いについて
皆さまが送付された個人情報はアットホーム(株)のサーバを経由し、お問い合わせ先の不動産会社にメールまたはFAXにて転送されるためアットホーム(株)にも保管されます。アットホーム(株)で保管された個人情報の取り扱いについては、【こちら】をご覧ください。
また、本画面でご記入いただいた個人情報は、お問い合わせ先の不動産会社でも保管します。 お問い合わせ先の不動産会社が保管する個人情報の取り扱いについては、不動産会社に直接お問い合わせください。
埼玉県知事免許(3)第22317号 |
---|
- 交通:
- JR武蔵野線/東浦和駅 【バス】12分 松ノ木東公園 停歩1分
- 埼玉県さいたま市緑区松木3丁目15-16
- TEL:
- 048-829-7836
- FAX:
- 048-829-7837
- 所属団体:
- (公社)埼玉県宅地建物取引業協会会員(公社)首都圏不動産公正取引協議会加盟
取引態様:媒介  - 00106978
|
- スマートフォンで
この不動産会社を見る

|
- 提携サイト等より掲載されている物件情報につきましては、不動産会社詳細情報にリンクされていないものがあります。
- 物件に関するお問合せは、物件詳細ページの「情報提供会社」に表示されている不動産会社へ直接お願いいたします。
- 間取図は、現況を優先させていただきます。
- 映像は物件の一部を撮影したものです。物件の契約にあたっての最終判断はご自身の判断に基づいて行ってください。
- 仲介手数料について

アットホームは物件情報の適正化に努めております。
内容に誤りがある場合にはこちらへご連絡ください。