茨城県牛久市田宮3丁目(牛久駅)の中古マンション・新築マンション・分譲マンション:物件詳細
交通 所在地 |
駅徒歩 |
価格 |
構造 階建/階 |
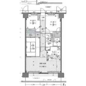
間取り 専有面積 |
物件種目 築年月 |
|
JR常磐線/牛久
茨城県牛久市田宮3丁目
|
2分
|
1,950万円
|
RC
13階建 / 2階
|
3LDK
68.21m²
|
中古マンション
1998年2月(築27年11ヶ月)
|
|
南向き、管理人日勤
|
|
間取図
|
外観
|
<
その他の画像
>
|
| 交通 | JR常磐線 牛久駅 徒歩2分 |
| 所在地 |
茨城県牛久市田宮3丁目
|
| 物件種目 |
中古マンション |
| 価格 |
1,950万円 |
平米単価 |
28.59万円 |
| 管理費等 |
12,300円 |
修繕積立金 |
12,710円 |
| 借地期間・地代(月額) |
- |
権利金 |
- |
| 敷金または保証金 |
- / - |
維持費等 |
- |
| その他一時金 |
- |
|
|
| 間取り |
3LDK(和 6 洋 6.2・4.7) |
専有面積 |
68.21m²(壁芯) |
| 階建 / 階 |
13階建 / 2階 |
バルコニー |
10.15m² |
| 築年月 |
1998年2月(築27年11ヶ月)
|
建物構造 |
RC |
| 駐車場 |
- |
総戸数 |
131戸 |
| 駐輪場 |
有 |
バイク置き場 |
- |
| ペット |
-
|
|
|
| 土地権利 |
所有権 |
敷地面積 |
- |
| 管理形態/管理員の勤務形態 |
全部委託/日勤((株)東急コミュニティー) |
国土法届出 |
- |
| アピールポイント |
2階の3LDK、地震対策に高層階が苦手な方にもおすすめのお部屋!さらにお部屋のましたは駐車場通路にて下の居住者を気にせずに生活できます! |
| 建物名・部屋番号 |
ベルヴィラ牛久 206 |
| リフォーム履歴 |
■水回り:2025年9月 トイレ ■内装:2025年9月 床(フローリング等) クロス・襖など張替え ※実施年月は最も古い履歴を表示 |
| リノベーション履歴 |
- |
| 瑕疵保証 |
- |
| 瑕疵保険 |
- |
| 評価・証明書 |
- |
| 備考 |
主要採光面:南向き
用途地域:商業地域
上下水道
|
| エネルギー消費性能 |
- |
| 断熱性能 |
- |
| 目安光熱費 |
- |
| バス・トイレ |
- |
| キッチン |
システムキッチン、3口以上コンロ |
| 設備・サービス |
全居室収納、ウォークインクローゼット、収納スペース、室内洗濯機置場、クローゼット、オートロック、モニター付インターホン、給湯、都市ガス、駐輪場 |
| その他 |
エレベーター |
| 条件等 |
- |
現況 |
空家 |
| 引渡可能時期 |
相談 |
物件番号 |
6987951281 |
| 情報公開日 |
2025年10月9日 |
次回更新予定日 |
2025年12月12日 |
| ケータイ用バーコード |
- スマートフォンでこの物件を見る
- スマートフォンからもこの物件をご覧になれます。
|
※「-」と表示されている項目については、情報提供会社にご確認ください。
| 周辺施設 |
カスミフードスクエア牛久刈谷店 |
| 距離 |
791m |
| 周辺施設 |
セブンイレブン牛久駅西店 |
| 距離 |
151m |
| 周辺施設 |
牛久市立牛久第二小学校 |
| 距離 |
1169m |
| 周辺施設 |
牛久市立つつじが丘保育園 |
| 距離 |
339m |
| 周辺施設 |
牛久市役所エスカード出張所 |
| 距離 |
232m |
ここから簡単にお問い合わせをすることができます。
(SSLでの暗号化での送信を希望されるお客さまは
こちら
よりお問い合わせください)
お問い合わせを行う前に
「個人情報の取り扱いについて」を必ずお読みください。
「個人情報の取り扱いについて」に同意いただいた場合は「上記にご同意の上 確認画面へ進む」のボタンをクリックしてください。
個人情報の取り扱いについて
皆さまが送付された個人情報はアットホーム(株)のサーバを経由し、お問い合わせ先の不動産会社にメールまたはFAXにて転送されるためアットホーム(株)にも保管されます。アットホーム(株)で保管された個人情報の取り扱いについては、【こちら】をご覧ください。
また、本画面でご記入いただいた個人情報は、お問い合わせ先の不動産会社でも保管します。 お問い合わせ先の不動産会社が保管する個人情報の取り扱いについては、不動産会社に直接お問い合わせください。
茨城県知事免許(4)第6451号 |
|---|
- 交通:
- JR常磐線/牛久駅
- 茨城県牛久市中央5丁目14-4
- TEL:
- 029-874-4446
- 所属団体:
- (公社)茨城県宅地建物取引業協会会員(公社)首都圏不動産公正取引協議会加盟
取引態様:売主  - 00277799
|
- スマートフォンで
この不動産会社を見る

|
- 提携サイト等より掲載されている物件情報につきましては、不動産会社詳細情報にリンクされていないものがあります。
- 物件に関するお問合せは、物件詳細ページの「情報提供会社」に表示されている不動産会社へ直接お願いいたします。
- 間取図は、現況を優先させていただきます。
- 映像は物件の一部を撮影したものです。物件の契約にあたっての最終判断はご自身の判断に基づいて行ってください。
- 仲介手数料について

アットホームは物件情報の適正化に努めております。
内容に誤りがある場合にはこちらへご連絡ください。