福岡県福岡市中央区舞鶴1丁目(赤坂駅)の中古マンション・新築マンション・分譲マンション:物件詳細
交通 所在地 |
駅徒歩 |
価格 |
構造 階建/階 |
間取り 専有面積 |
物件種目 築年月 |
|
地下鉄空港線/赤坂
福岡県福岡市中央区舞鶴1丁目
|
8分
|
5,980万円
|
RC
14階建 / 12階
|
3LDK
64.77m²
|
中古マンション
2005年3月(築20年8ヶ月)
|
|
24時間セキュリティー、24時間換気システム、閑静な住宅街、管理人日勤
|
|
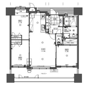
間取図
|
外観
|
その他の画像
|
| 交通 | 地下鉄空港線 赤坂駅 徒歩8分 |
|---|
| その他の交通 | 地下鉄空港線 天神駅 徒歩8分 西鉄天神大牟田線 西鉄福岡(天神)駅 徒歩12分 |
| 所在地 |
福岡県福岡市中央区舞鶴1丁目
|
| 物件種目 |
中古マンション |
| 価格 |
5,980万円 |
平米単価 |
92.33万円 |
| 管理費等 |
6,500円 |
修繕積立金 |
4,900円 |
| 借地期間・地代(月額) |
- |
権利金 |
- |
| 敷金または保証金 |
- / - |
維持費等 |
- |
| その他一時金 |
- |
|
|
| 間取り |
3LDK(洋 5.1・5.2・5) |
専有面積 |
64.77m²(内法) |
| 階建 / 階 |
14階建 / 12階 |
バルコニー |
17.25m² |
| 築年月 |
2005年3月(築20年8ヶ月)
|
建物構造 |
RC |
| 駐車場 |
空無 |
総戸数 |
- |
| 駐輪場 |
- |
バイク置き場 |
- |
| ペット |
-
|
|
|
| 土地権利 |
所有権 |
敷地面積 |
2,157.86m² |
| 管理形態/管理員の勤務形態 |
全部委託/日勤(株式会社長谷工コミュニティ九州) |
国土法届出 |
- |
| アピールポイント |
物が増えても安心の全居室収納なので、部屋ごとに収納したいものを分けられます。また不在時の受け取りも楽々の宅配BOX付で、その上閑静な住宅街立地の物件だから、騒々しい街の喧噪から離れて生活できます。ちなみに思わぬアクシデントから日々の暮らしを守る24時間セキュリティー有の住居です。家族が帰宅を焦がれる3LDK。ご案内いたしますのでお気軽にご連絡ください。 |
| 建物名・部屋番号 |
|
| リフォーム履歴 |
■水回り:2025年10月 キッチン、浴室、トイレ、洗面所 ■内装:2025年10月 内装全面(床・壁・天井・建具) ※実施年月は最も古い履歴を表示 |
| リノベーション履歴 |
- |
| 瑕疵保証 |
- |
| 瑕疵保険 |
- |
| 評価・証明書 |
- |
| 備考 |
施工会社:株式会社錢高組
用途地域:商業地域
|
| エネルギー消費性能 |
- |
| 断熱性能 |
- |
| 目安光熱費 |
- |
| バス・トイレ |
浴室暖房、浴室乾燥機、追焚機能、温水洗浄便座、タンクレストイレ、浴室に窓あり |
| キッチン |
独立型キッチン、IHクッキングヒーター |
| 設備・サービス |
モニター付オートロック、全居室収納、収納スペース、室内洗濯機置場、オートロック、モニター付インターホン、防犯カメラ、全居室フローリング、都市ガス |
| その他 |
宅配BOX、エレベーター2基以上、エレベーター |
| 条件等 |
- |
現況 |
空家 |
| 引渡可能時期 |
相談 |
物件番号 |
6987954441 |
| 仲介手数料 |
売買代金の3%+6万円 |
|
|
| 情報公開日 |
2025年10月9日 |
次回更新予定日 |
2025年11月6日 |
| ケータイ用バーコード |
- スマートフォンでこの物件を見る
- スマートフォンからもこの物件をご覧になれます。
|
※「-」と表示されている項目については、情報提供会社にご確認ください。
| 周辺施設 |
SUIT SELECT TENJIN FUTATA BLDG. |
| 距離 |
441m |
| 周辺施設 |
レガネットキュート赤坂門店 |
| 距離 |
594m |
| 周辺施設 |
セブンイレブン福岡舞鶴1丁目店 |
| 距離 |
234m |
ここから簡単にお問い合わせをすることができます。
(SSLでの暗号化での送信を希望されるお客さまは
こちら
よりお問い合わせください)
お問い合わせを行う前に
「個人情報の取り扱いについて」を必ずお読みください。
「個人情報の取り扱いについて」に同意いただいた場合は「上記にご同意の上 確認画面へ進む」のボタンをクリックしてください。
個人情報の取り扱いについて
皆さまが送付された個人情報はアットホーム(株)のサーバを経由し、お問い合わせ先の不動産会社にメールまたはFAXにて転送されるためアットホーム(株)にも保管されます。アットホーム(株)で保管された個人情報の取り扱いについては、【こちら】をご覧ください。
また、本画面でご記入いただいた個人情報は、お問い合わせ先の不動産会社でも保管します。 お問い合わせ先の不動産会社が保管する個人情報の取り扱いについては、不動産会社に直接お問い合わせください。
福岡県知事免許(3)第17277号 |
|---|
- 交通:
- 西鉄天神大牟田線/西鉄平尾駅 徒歩6分 【バス】 一本木 停歩2分
- 福岡県福岡市中央区平尾3丁目9番7号
- TEL:
- 092-791-2503
- FAX:
- 092-791-2504
- 所属団体:
- (一社)全国賃貸不動産管理業協会会員(公社)福岡県宅地建物取引業協会会員(一社)九州不動産公正取引協議会加盟
取引態様:一般媒介  - 80505309
|
- スマートフォンで
この不動産会社を見る

|
- 提携サイト等より掲載されている物件情報につきましては、不動産会社詳細情報にリンクされていないものがあります。
- 物件に関するお問合せは、物件詳細ページの「情報提供会社」に表示されている不動産会社へ直接お願いいたします。
- 間取図は、現況を優先させていただきます。
- 映像は物件の一部を撮影したものです。物件の契約にあたっての最終判断はご自身の判断に基づいて行ってください。
- 仲介手数料について

アットホームは物件情報の適正化に努めております。
内容に誤りがある場合にはこちらへご連絡ください。