千葉県千葉市中央区祐光2丁目(東千葉駅)の中古マンション・新築マンション・分譲マンション:物件詳細
交通 所在地 |
駅徒歩 |
価格 |
構造 階建/階 |
間取り 専有面積 |
物件種目 築年月 |
|
JR総武本線/東千葉
千葉県千葉市中央区祐光2丁目
|
3分
|
2,188万円
|
SRC
16階建 / 3階
|
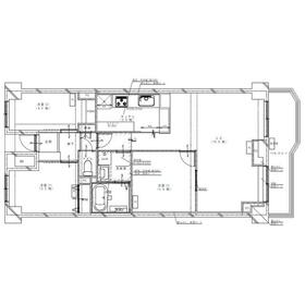
3LDK
74.20m²
|
中古マンション
1984年3月(築41年10ヶ月)
|
|
2面採光、管理人日勤
|
|
間取図
|
リビング
|
<
その他の画像
>
|
| 交通 | JR総武本線 東千葉駅 徒歩3分 |
|---|
| その他の交通 | JR総武線 千葉駅 徒歩14分 千葉都市モノレール 栄町駅 徒歩10分 |
| 所在地 |
千葉県千葉市中央区祐光2丁目
|
| 物件種目 |
中古マンション |
| 価格 |
2,188万円 |
平米単価 |
29.49万円 |
| 管理費等 |
13,400円 |
修繕積立金 |
10,500円 |
| 借地期間・地代(月額) |
- |
権利金 |
- |
| 敷金または保証金 |
- / - |
維持費等 |
自治会費:200円/月 |
| その他一時金 |
なし |
|
|
| 間取り |
3LDK |
専有面積 |
74.20m²(壁芯) |
| 階建 / 階 |
16階建 / 3階 |
バルコニー |
7.92m² |
| 築年月 |
1984年3月(築41年10ヶ月)
|
建物構造 |
SRC |
| 駐車場 |
無 |
総戸数 |
261戸 |
| 駐輪場 |
有 400円/月 |
バイク置き場 |
- |
| ペット |
-
|
|
|
| 土地権利 |
所有権 |
敷地面積 |
4,144.57m² |
| 管理形態/管理員の勤務形態 |
全部委託/日勤(日本ハウズイング株式会社) |
国土法届出 |
- |
| 建物名・部屋番号 |
千葉サニータウン |
| リフォーム履歴 |
■水回り:2025年12月 キッチン、浴室、トイレ、洗面所、給湯器 ■内装:2025年12月 内装全面(床・壁・天井・建具) ※実施年月は最も古い履歴を表示 |
| リノベーション履歴 |
- |
| 瑕疵保証 |
- |
| 瑕疵保険 |
- |
| 評価・証明書 |
- |
| 備考 |
主要採光面:南東向き
用途地域:商業地域
|
| エネルギー消費性能 |
- |
| 断熱性能 |
- |
| 目安光熱費 |
- |
| バス・トイレ |
浴室暖房、浴室乾燥機、追焚機能、シャワー付洗面化粧台、温水洗浄便座 |
| キッチン |
システムキッチン、食器洗浄乾燥機、食器乾燥機、浄水器、3口以上コンロ、グリル |
| 設備・サービス |
収納スペース、室内洗濯機置場、オートロック、モニター付インターホン、給湯、全居室フローリング、室内物干し、都市ガス、エアコン、駐輪場、ダウンライト |
| その他 |
エレベーター |
| 条件等 |
- |
現況 |
空家 |
| 引渡可能時期 |
即時 |
物件番号 |
6987975525 |
| 情報公開日 |
2025年11月1日 |
次回更新予定日 |
2026年1月10日 |
| ケータイ用バーコード |
- スマートフォンでこの物件を見る
- スマートフォンからもこの物件をご覧になれます。
|
※「-」と表示されている項目については、情報提供会社にご確認ください。
| 周辺施設 |
オーケー千葉中央店 |
| 距離 |
789m |
写真を見る |
| 周辺施設 |
ファミリーマート千葉祐光一丁目店 |
| 距離 |
91m |
写真を見る |
| 周辺施設 |
ディスカウントドラッグコスモス祐光店 |
| 距離 |
90m |
写真を見る |
| 周辺施設 |
千葉市立椿森中学校 |
| 距離 |
950m |
写真を見る |
| 周辺施設 |
千葉市立院内小学校 |
| 距離 |
160m |
写真を見る |
| 周辺施設 |
ふぇりーちぇほいくえん |
| 距離 |
165m |
写真を見る |
| 周辺施設 |
独立行政法人国立病院機構千葉医療センター |
| 距離 |
1145m |
写真を見る |
ここから簡単にお問い合わせをすることができます。
(SSLでの暗号化での送信を希望されるお客さまは
こちら
よりお問い合わせください)
お問い合わせを行う前に
「個人情報の取り扱いについて」を必ずお読みください。
「個人情報の取り扱いについて」に同意いただいた場合は「上記にご同意の上 確認画面へ進む」のボタンをクリックしてください。
個人情報の取り扱いについて
皆さまが送付された個人情報はアットホーム(株)のサーバを経由し、お問い合わせ先の不動産会社にメールまたはFAXにて転送されるためアットホーム(株)にも保管されます。アットホーム(株)で保管された個人情報の取り扱いについては、【こちら】をご覧ください。
また、本画面でご記入いただいた個人情報は、お問い合わせ先の不動産会社でも保管します。 お問い合わせ先の不動産会社が保管する個人情報の取り扱いについては、不動産会社に直接お問い合わせください。
千葉県知事免許(14)第4211号 |
|---|
- 交通:
- JR総武本線/千葉駅 徒歩8分
- 千葉県千葉市中央区栄町32-14
- TEL:
- 043-441-3426
- FAX:
- 043-222-7558
- 所属団体:
- (一社)千葉県宅地建物取引業協会会員(公社)首都圏不動産公正取引協議会加盟
取引態様:媒介  - 00267259
|
- スマートフォンで
この不動産会社を見る

|
- 提携サイト等より掲載されている物件情報につきましては、不動産会社詳細情報にリンクされていないものがあります。
- 物件に関するお問合せは、物件詳細ページの「情報提供会社」に表示されている不動産会社へ直接お願いいたします。
- 間取図は、現況を優先させていただきます。
- 映像は物件の一部を撮影したものです。物件の契約にあたっての最終判断はご自身の判断に基づいて行ってください。
- 仲介手数料について

アットホームは物件情報の適正化に努めております。
内容に誤りがある場合にはこちらへご連絡ください。