岐阜県羽島市福寿町平方7丁目(岐阜羽島駅)の中古マンション・新築マンション・分譲マンション:物件詳細
交通 所在地 |
駅徒歩 |
価格 |
構造 階建/階 |
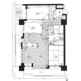
間取り 専有面積 |
物件種目 築年月 |
|
東海道新幹線/岐阜羽島
岐阜県羽島市福寿町平方7丁目
|
9分
|
1,100万円
|
RC
14階建 / 4階
|
3LDK
73.69m²
|
中古マンション
1992年10月(築33年3ヶ月)
|
|
南向き、前面棟無、隣接建物距離2m以上、管理人巡回
|
|
間取図
|
外観
|
<
その他の画像
>
|
| 交通 | 東海道新幹線 岐阜羽島駅 徒歩9分 |
|---|
| その他の交通 | 名鉄竹鼻線 新羽島駅 徒歩12分 |
| 所在地 |
岐阜県羽島市福寿町平方7丁目
|
| 物件種目 |
中古マンション |
| 価格 |
1,100万円 |
平米単価 |
14.93万円 |
| 管理費等 |
14,800円 |
修繕積立金 |
11,100円 |
| 借地期間・地代(月額) |
- |
権利金 |
- |
| 敷金または保証金 |
- / - |
維持費等 |
- |
| その他一時金 |
- |
|
|
| 間取り |
3LDK(和 6 洋 7・5) |
専有面積 |
73.69m²(壁芯) |
| 階建 / 階 |
14階建 / 4階 |
バルコニー |
24.79m² |
| 築年月 |
1992年10月(築33年3ヶ月)
|
建物構造 |
RC |
| 駐車場 |
有 5,000円/月 |
総戸数 |
41戸 |
| 駐輪場 |
有 |
バイク置き場 |
有 |
| ペット |
-
|
|
|
| 土地権利 |
所有権 |
敷地面積 |
781.00m² |
| 管理形態/管理員の勤務形態 |
全部委託/巡回(株式会社大京アステージ) |
国土法届出 |
- |
| アピールポイント |
広々とした延床面積73.69㎡の居室空間、更に開放感たっぷりの3面バルコニーが居室にも開放感とゆとりを感じさせます。また配膳がラクなカウンターキッチン付で、その上一度に複数のおかず作りを同時進行できるコンロ3口以上の仕様なので、晩ごはんの支度と翌日の弁当準備ができます。ちなみに南向の住居です。自然に団らんが生まれる3LDK。是非見学にお越しください。 |
| 建物名・部屋番号 |
|
| リフォーム履歴 |
- |
| リノベーション履歴 |
- |
| 瑕疵保証 |
- |
| 瑕疵保険 |
- |
| 評価・証明書 |
- |
| 備考 |
主要採光面:南向き
工事完了予定日:1992年3月
用途地域:商業地域
|
| エネルギー消費性能 |
- |
| 断熱性能 |
- |
| 目安光熱費 |
- |
| バス・トイレ |
- |
| キッチン |
カウンターキッチン、3口以上コンロ |
| 設備・サービス |
全居室収納、バイク置き場、三面バルコニー、クローゼット、エアコン、駐輪場 |
| その他 |
エレベーター |
| 条件等 |
- |
現況 |
所有者居住中 |
| 引渡可能時期 |
指定有り2025年12月20日 |
物件番号 |
6987983060 |
| 仲介手数料 |
売買代金の3%+6万円 |
|
|
| 情報公開日 |
2025年10月11日 |
次回更新予定日 |
2025年12月8日 |
| ケータイ用バーコード |
- スマートフォンでこの物件を見る
- スマートフォンからもこの物件をご覧になれます。
|
※「-」と表示されている項目については、情報提供会社にご確認ください。
| 周辺施設 |
ファミリーマート羽島平方店 |
| 距離 |
545m |
| 周辺施設 |
平方第1公園 |
| 距離 |
196m |
写真を見る |
| 周辺施設 |
JR東海道新幹線「岐阜羽島」駅 徒歩9分 |
| 距離 |
700m |
写真を見る |
| 周辺施設 |
名鉄竹鼻・羽島線「新羽島」駅 徒歩12分 |
| 距離 |
950m |
ここから簡単にお問い合わせをすることができます。
(SSLでの暗号化での送信を希望されるお客さまは
こちら
よりお問い合わせください)
お問い合わせを行う前に
「個人情報の取り扱いについて」を必ずお読みください。
「個人情報の取り扱いについて」に同意いただいた場合は「上記にご同意の上 確認画面へ進む」のボタンをクリックしてください。
個人情報の取り扱いについて
皆さまが送付された個人情報はアットホーム(株)のサーバを経由し、お問い合わせ先の不動産会社にメールまたはFAXにて転送されるためアットホーム(株)にも保管されます。アットホーム(株)で保管された個人情報の取り扱いについては、【こちら】をご覧ください。
また、本画面でご記入いただいた個人情報は、お問い合わせ先の不動産会社でも保管します。 お問い合わせ先の不動産会社が保管する個人情報の取り扱いについては、不動産会社に直接お問い合わせください。
岐阜県知事免許(8)第3459号 |
|---|
- 交通:
- 高山本線/蘇原駅 徒歩20分
- 岐阜県各務原市蘇原野口町5丁目130
- TEL:
- 0120-055-087
- FAX:
- 058-322-6935
- 所属団体:
- (公社)岐阜県宅地建物取引業協会会員東海不動産公正取引協議会加盟
取引態様:専任媒介  - 40403189
|
- スマートフォンで
この不動産会社を見る

|
- 提携サイト等より掲載されている物件情報につきましては、不動産会社詳細情報にリンクされていないものがあります。
- 物件に関するお問合せは、物件詳細ページの「情報提供会社」に表示されている不動産会社へ直接お願いいたします。
- 間取図は、現況を優先させていただきます。
- 映像は物件の一部を撮影したものです。物件の契約にあたっての最終判断はご自身の判断に基づいて行ってください。
- 仲介手数料について

アットホームは物件情報の適正化に努めております。
内容に誤りがある場合にはこちらへご連絡ください。