神奈川県横浜市中区花咲町2丁目(桜木町駅)の中古マンション・新築マンション・分譲マンション:物件詳細
交通 所在地 |
駅徒歩 |
価格 |
構造 階建/階 |
間取り 専有面積 |
物件種目 築年月 |
|
JR根岸線/桜木町
神奈川県横浜市中区花咲町2丁目
|
3分
|
7,500万円
|
RC
10階建 / 3階
|
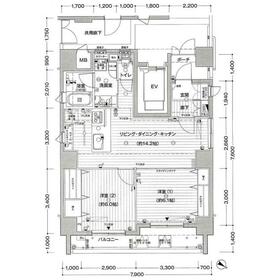
2LDK
64.64m²
|
中古マンション
2013年2月(築13年4ヶ月)
|
|
常時ゴミ出し可能、角部屋、24時間セキュリティー、2面採光、外観タイル張り、管理人日勤
|
|
間取図
|
外観
|
<
その他の画像
>
|
| 交通 | JR根岸線 桜木町駅 徒歩3分 |
|---|
| その他の交通 | 横浜高速鉄道みなとみらい線 馬車道駅 徒歩12分 京急本線 日ノ出町駅 徒歩9分 |
| 所在地 |
神奈川県横浜市中区花咲町2丁目
|
| 物件種目 |
中古マンション |
| 価格 |
7,500万円 |
平米単価 |
116.03万円 |
| 管理費等 |
13,970円 |
修繕積立金 |
9,180円 |
| 借地期間・地代(月額) |
- |
権利金 |
- |
| 敷金または保証金 |
- / - |
維持費等 |
町会費:300円/月 |
| その他一時金 |
- |
|
|
| 間取り |
2LDK(洋 6・6.1 LDK 14.2) |
専有面積 |
64.64m²(壁芯) |
| 階建 / 階 |
10階建 / 3階 |
バルコニー |
8.01m² |
| 築年月 |
2013年2月(築13年4ヶ月)
|
建物構造 |
RC |
| 駐車場 |
空無 |
総戸数 |
28戸 |
| 駐輪場 |
- |
バイク置き場 |
- |
| ペット |
-
|
|
|
| 土地権利 |
所有権 |
敷地面積 |
- |
| 管理形態/管理員の勤務形態 |
全部委託/日勤(ケイアール株式会社) |
国土法届出 |
- |
| アピールポイント |
【内装リフォーム実施】→2026.2.20~3.25迄
全室クロス交換、全室床上張り、全室建具交換、キッチンコンロ及び水栓交換、トイレ交換、給湯器交換、エアコン交換、火災警報器等交換、照明交換、ハウスクリーニング等実施 |
| 建物名・部屋番号 |
アール・ケープラザ横濱Ⅵ |
| リフォーム履歴 |
■水回り:2026年3月 キッチン、トイレ、給湯器 ■内装:2026年3月 内装全面(床・壁・天井・建具) ※実施年月は最も古い履歴を表示 |
| リノベーション履歴 |
- |
| 瑕疵保証 |
- |
| 瑕疵保険 |
- |
| 評価・証明書 |
- |
| 備考 |
主要採光面:北東向き
施工会社:南海辰村建設株式会社
用途地域:商業地域
|
| エネルギー消費性能 |
- |
| 断熱性能 |
- |
| 目安光熱費 |
- |
| バス・トイレ |
浴室暖房、浴室乾燥機、オートバス、追焚機能、シャワー付洗面化粧台、温水洗浄便座 |
| キッチン |
システムキッチン、3口以上コンロ |
| 設備・サービス |
モニター付オートロック、床暖房、収納スペース、室内洗濯機置場、クローゼット、オートロック、モニター付インターホン、ディンプルキー、防犯カメラ、給湯、エアコン、シーリングファン、洗濯乾燥機、人感センサー付照明、ダウンライト、照明器具、火災警報器(報知機)、光ファイバー、CS、BS端子 |
| その他 |
宅配BOX、エレベーター |
| 条件等 |
- |
現況 |
空家 |
| 引渡可能時期 |
相談 |
物件番号 |
6987992008 |
| 情報公開日 |
2025年10月12日 |
次回更新予定日 |
2026年5月30日 |
| ケータイ用バーコード |
- スマートフォンでこの物件を見る
- スマートフォンからもこの物件をご覧になれます。
|
※「-」と表示されている項目については、情報提供会社にご確認ください。
| 周辺施設 |
ファミリーマート雨宮音楽通り店 |
| 距離 |
49m |
| 周辺施設 |
CoCo壱番屋JR桜木町駅前店 |
| 距離 |
97m |
| 周辺施設 |
モスバーガー横浜桜木町店 |
| 距離 |
128m |
ここから簡単にお問い合わせをすることができます。
(SSLでの暗号化での送信を希望されるお客さまは
こちら
よりお問い合わせください)
お問い合わせを行う前に
「個人情報の取り扱いについて」を必ずお読みください。
「個人情報の取り扱いについて」に同意いただいた場合は「上記にご同意の上 確認画面へ進む」のボタンをクリックしてください。
個人情報の取り扱いについて
皆さまが送付された個人情報はアットホーム(株)のサーバを経由し、お問い合わせ先の不動産会社にメールまたはFAXにて転送されるためアットホーム(株)にも保管されます。アットホーム(株)で保管された個人情報の取り扱いについては、【こちら】をご覧ください。
また、本画面でご記入いただいた個人情報は、お問い合わせ先の不動産会社でも保管します。 お問い合わせ先の不動産会社が保管する個人情報の取り扱いについては、不動産会社に直接お問い合わせください。
ハウジングハーモニー・優和/優和(株)東京都知事免許(3)第96752号 |
|---|
- 交通:
- 東京メトロ有楽町線/要町駅 徒歩4分
- 東京都豊島区高松1丁目10-2
- TEL:
- 03-5926-9025
- FAX:
- 03-5926-9026
- 所属団体:
- (公社)全日本不動産協会会員(一社)全国不動産協会会員(公社)首都圏不動産公正取引協議会加盟
取引態様:専任媒介 |
- 提携サイト等より掲載されている物件情報につきましては、不動産会社詳細情報にリンクされていないものがあります。
- 物件に関するお問合せは、物件詳細ページの「情報提供会社」に表示されている不動産会社へ直接お願いいたします。
- 間取図は、現況を優先させていただきます。
- 映像は物件の一部を撮影したものです。物件の契約にあたっての最終判断はご自身の判断に基づいて行ってください。
- 仲介手数料について

アットホームは物件情報の適正化に努めております。
内容に誤りがある場合にはこちらへご連絡ください。