埼玉県川口市南鳩ヶ谷3丁目(南鳩ヶ谷駅)の中古マンション・新築マンション・分譲マンション:物件詳細
交通 所在地 |
駅徒歩 |
価格 |
構造 階建/階 |
間取り 専有面積 |
物件種目 築年月 |
|
埼玉高速鉄道/南鳩ヶ谷
埼玉県川口市南鳩ヶ谷3丁目
|
6分
|
5,380万円
|
RC
12階建 / 1階
|
4LDK
100.05m²
|
中古マンション
2004年11月(築21年5ヶ月)
|
|
ペット相談、フロントサービス、常時ゴミ出し可能、角部屋、24時間セキュリティー、バス1坪以上、2面採光、バリアフリー、閑静な住宅街、オール電化、管理人日勤
|
|
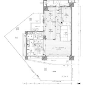
間取図
テラス一面に大きなハイサッシのあるリビング、 幅4.30mある大パノラマには、お庭の植栽の緑と青空が
|
間取図
自然の静けさと上質な暮らしが調和する、プライベートリゾートのようなお部屋です。
|
<
その他の画像
>
|
| 交通 | 埼玉高速鉄道 南鳩ヶ谷駅 徒歩6分 |
| 所在地 |
埼玉県川口市南鳩ヶ谷3丁目
|
| 物件種目 |
中古マンション |
| 価格 |
5,380万円 |
平米単価 |
53.78万円 |
| 管理費等 |
17,510円 |
修繕積立金 |
16,010円 |
| 借地期間・地代(月額) |
- |
権利金 |
- |
| 敷金または保証金 |
- / - |
維持費等 |
- |
| その他一時金 |
専有庭使用料:2,000円、CATB使用料:50円 |
|
|
| 間取り |
4LDK(和 6 洋 7.1・5・5.5 LDK 20.1) |
専有面積 |
100.05m²(壁芯) |
| 階建 / 階 |
12階建 / 1階 |
バルコニー |
30.10m² |
| 築年月 |
2004年11月(築21年5ヶ月)
|
建物構造 |
RC |
| 駐車場 |
有 無料 |
総戸数 |
314戸 |
| 駐輪場 |
有 無料 |
バイク置き場 |
- |
| ペット |
管理規約による制限有 |
|
|
| 土地権利 |
所有権 |
敷地面積 |
- |
| 管理形態/管理員の勤務形態 |
全部委託/日勤(双日ライフワン) |
国土法届出 |
- |
| アピールポイント |
お探しの方には嬉しいペット相談可。思わぬアクシデントから日々の暮らしを守る24時間セキュリティー有の住居、更に生ゴミを排水溝にそのまま流せちゃうディスポーザー付なので、野菜クズなど生ゴミを砕いて流す為生ゴミ処理がラクです。またフットワークが軽くなる南鳩ヶ谷駅徒歩6分ロケーションで、その上留守番いらずの宅配BOX付だから、再配達のひと手間を省けます。ちなみにフロントサービス有です。家族というコミュニティを支える4LDK。ご案内いたしますのでお気軽にご連絡ください。 |
| 建物名・部屋番号 |
専有面積100m2超「エールガーデン」 |
| リフォーム履歴 |
- |
| リノベーション履歴 |
- |
| 瑕疵保証 |
- |
| 瑕疵保険 |
- |
| 評価・証明書 |
- |
| 備考 |
主要採光面:西向き
用途地域:準工業
専有面積にはトランクルーム面積:0.87を含んでいます。
|
| エネルギー消費性能 |
- |
| 断熱性能 |
- |
| 目安光熱費 |
- |
| バス・トイレ |
浴室乾燥機、追焚機能、シャワー付洗面化粧台、温水洗浄便座、浴室に窓あり |
| キッチン |
システムキッチン、ディスポーザー、IHクッキングヒーター |
| 設備・サービス |
モニター付オートロック、全居室収納、ウォークインクローゼット、収納スペース、床下収納、オートロック、モニター付インターホン、防犯カメラ、洗濯機置場、専用庭、二面バルコニー、駐輪場、テラス、ダウンライト、ケーブルTV、複層ガラス |
| その他 |
宅配BOX、キッズルーム、敷地内公園、エレベーター2基以上、共用ゲストルーム、来客用駐車場、車寄せスペース、エレベーター |
| 条件等 |
- |
現況 |
所有者居住中 |
| 引渡可能時期 |
相談 |
物件番号 |
6987993749 |
| 情報公開日 |
2026年2月21日 |
次回更新予定日 |
2026年3月21日 |
| ケータイ用バーコード |
- スマートフォンでこの物件を見る
- スマートフォンからもこの物件をご覧になれます。
|
※「-」と表示されている項目については、情報提供会社にご確認ください。
| 周辺施設 |
業務スーパー川口八幡木店 |
| 距離 |
774m |
| 周辺施設 |
ジャパンミート卸売市場鳩ヶ谷店 |
| 距離 |
1096m |
| 周辺施設 |
ファミリーマート川口南鳩ヶ谷店 |
| 距離 |
275m |
| 周辺施設 |
デイリーヤマザキ南鳩ヶ谷駅店 |
| 距離 |
718m |
| 周辺施設 |
太陽の子南鳩ヶ谷駅前保育園 |
| 距離 |
602m |
| 周辺施設 |
医療法人社団厚生会埼玉厚生病院 |
| 距離 |
765m |
ここから簡単にお問い合わせをすることができます。
(SSLでの暗号化での送信を希望されるお客さまは
こちら
よりお問い合わせください)
お問い合わせを行う前に
「個人情報の取り扱いについて」を必ずお読みください。
「個人情報の取り扱いについて」に同意いただいた場合は「上記にご同意の上 確認画面へ進む」のボタンをクリックしてください。
個人情報の取り扱いについて
皆さまが送付された個人情報はアットホーム(株)のサーバを経由し、お問い合わせ先の不動産会社にメールまたはFAXにて転送されるためアットホーム(株)にも保管されます。アットホーム(株)で保管された個人情報の取り扱いについては、【こちら】をご覧ください。
また、本画面でご記入いただいた個人情報は、お問い合わせ先の不動産会社でも保管します。 お問い合わせ先の不動産会社が保管する個人情報の取り扱いについては、不動産会社に直接お問い合わせください。
埼玉県知事免許(3)第22834号 |
|---|
- 交通:
- JR埼京線/南与野駅 徒歩10分
- 埼玉県さいたま市桜区西堀9丁目26-2
- TEL:
- 048-762-8005
- FAX:
- 048-762-8805
- 所属団体:
- (公社)埼玉県宅地建物取引業協会会員(公社)首都圏不動産公正取引協議会加盟
取引態様:一般媒介  - 00161217
|
- スマートフォンで
この不動産会社を見る

|
- 提携サイト等より掲載されている物件情報につきましては、不動産会社詳細情報にリンクされていないものがあります。
- 物件に関するお問合せは、物件詳細ページの「情報提供会社」に表示されている不動産会社へ直接お願いいたします。
- 間取図は、現況を優先させていただきます。
- 映像は物件の一部を撮影したものです。物件の契約にあたっての最終判断はご自身の判断に基づいて行ってください。
- 仲介手数料について

アットホームは物件情報の適正化に努めております。
内容に誤りがある場合にはこちらへご連絡ください。