福岡県福岡市東区香椎照葉6丁目の中古マンション・新築マンション・分譲マンション:物件詳細
交通 所在地 |
駅徒歩 |
価格 |
構造 階建/階 |
間取り 専有面積 |
物件種目 築年月 |
|
JR鹿児島本線 千早駅まで車で12分
福岡県福岡市東区香椎照葉6丁目
|
-
|
12,180万円
|
RC
48階建 / 37階
|
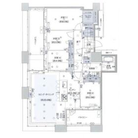
4LDK
105.54m²
|
中古マンション
2024年1月(築2年5ヶ月)
|
|
ペット相談、フロントサービス、南向き、免震構造、バス1坪以上、閑静な住宅街、隣接建物距離2m以上、管理人日勤
|
|
間取図
|
|
<
その他の画像
>
|
| 交通 | JR鹿児島本線 千早駅まで車で12分 |
|---|
| その他の交通 | 西鉄貝塚線 香椎花園前駅 徒歩31分 |
| 所在地 |
福岡県福岡市東区香椎照葉6丁目
|
| 物件種目 |
中古マンション |
| 価格 |
12,180万円 |
平米単価 |
115.41万円 |
| 管理費等 |
16,900円 |
修繕積立金 |
12,700円 |
| 借地期間・地代(月額) |
- |
権利金 |
- |
| 敷金または保証金 |
- / - |
維持費等 |
FIX窓清掃費:4,000円/月、自治会費:500円/月、ケーブルテレビ利用料:550円/月、インターネット:1,100円/月、タウンセキュリティ:1,089円/月 |
| その他一時金 |
- |
|
|
| 間取り |
4LDK |
専有面積 |
105.54m²(壁芯) |
| 階建 / 階 |
48階建 / 37階 |
バルコニー |
24.03m² |
| 築年月 |
2024年1月(築2年5ヶ月)
|
建物構造 |
RC |
| 駐車場 |
有 11,000円/月 |
総戸数 |
- |
| 駐輪場 |
有 |
バイク置き場 |
有 |
| ペット |
小型犬可・ 猫可 |
|
|
| 土地権利 |
所有権 |
敷地面積 |
- |
| 管理形態/管理員の勤務形態 |
全部委託/日勤 |
国土法届出 |
- |
| アピールポイント |
積水ハウス施工・免震タワーマンション。未入居100m2超、安心と快適を両立した4LDK。
福岡の街を見下ろす37階・角部屋に、未入居の優良物件が登場!
100m2超のゆとりある4LDKの間取りは、ご家族の理想の暮らしを実現します。
ハイグレードなタワーマンションならではの充実設備と安心の構造が魅力です。
◆福岡の街並みや博多湾を眼下に収める、贅沢なパノラマビュー。
◆安心の免震構造
◆足元から暖かい床暖房
◆食洗機や浴室暖房乾燥機もあり♪
◆駐車場2台確保(敷地内屋根付き)
◆EV充電設備も完備
◆スカイラウンジ、ゲストルームなど充実の共用施設(別途使用料)
◆小型犬・猫とご一緒に暮らせます♪ |
| 建物名・部屋番号 |
|
| リフォーム履歴 |
- |
| リノベーション履歴 |
- |
| 瑕疵保証 |
- |
| 瑕疵保険 |
- |
| 評価・証明書 |
- |
| 備考 |
主要採光面:南向き
|
| エネルギー消費性能 |
- |
| 断熱性能 |
- |
| 目安光熱費 |
- |
| バス・トイレ |
浴室乾燥機、追焚機能、高温差湯式、温水洗浄便座 |
| キッチン |
アイランドキッチン、システムキッチン、食器洗浄乾燥機、ディスポーザー、3口以上コンロ |
| 設備・サービス |
モニター付オートロック、ウォークインクローゼット、EV車充電設備、床暖房、バイク置き場、収納スペース、室内洗濯機置場、シューズインクローゼット、クローゼット、オートロック、モニター付インターホン、防犯カメラ、洗濯機置場、給湯、全居室フローリング、都市ガス、駐輪場、火災警報器(報知機)、インターネット対応、ケーブルTV |
| その他 |
宅配BOX、敷地内AED有、エレベーター2基以上、共用ゲストルーム、来客用駐車場、車寄せスペース、エレベーター |
| 条件等 |
- |
現況 |
空家 |
| 引渡可能時期 |
即時 |
物件番号 |
6987993811 |
| 情報公開日 |
2026年4月16日 |
次回更新予定日 |
2026年5月16日 |
| ケータイ用バーコード |
- スマートフォンでこの物件を見る
- スマートフォンからもこの物件をご覧になれます。
|
※「-」と表示されている項目については、情報提供会社にご確認ください。
ここから簡単にお問い合わせをすることができます。
(SSLでの暗号化での送信を希望されるお客さまは
こちら
よりお問い合わせください)
お問い合わせを行う前に
「個人情報の取り扱いについて」を必ずお読みください。
「個人情報の取り扱いについて」に同意いただいた場合は「上記にご同意の上 確認画面へ進む」のボタンをクリックしてください。
個人情報の取り扱いについて
皆さまが送付された個人情報はアットホーム(株)のサーバを経由し、お問い合わせ先の不動産会社にメールまたはFAXにて転送されるためアットホーム(株)にも保管されます。アットホーム(株)で保管された個人情報の取り扱いについては、【こちら】をご覧ください。
また、本画面でご記入いただいた個人情報は、お問い合わせ先の不動産会社でも保管します。 お問い合わせ先の不動産会社が保管する個人情報の取り扱いについては、不動産会社に直接お問い合わせください。
福岡県知事免許(1)第20546号 |
|---|
- 交通:
- 地下鉄空港線/天神駅 徒歩4分
- 福岡県福岡市中央区大名2丁目6-50 福岡大名ガーデンシティ8階
- TEL:
- 092-687-8722
- 所属団体:
- (公社)福岡県宅地建物取引業協会会員(一社)九州不動産公正取引協議会加盟
取引態様:一般媒介  - 80507914
|
- スマートフォンで
この不動産会社を見る

|
- 提携サイト等より掲載されている物件情報につきましては、不動産会社詳細情報にリンクされていないものがあります。
- 物件に関するお問合せは、物件詳細ページの「情報提供会社」に表示されている不動産会社へ直接お願いいたします。
- 間取図は、現況を優先させていただきます。
- 映像は物件の一部を撮影したものです。物件の契約にあたっての最終判断はご自身の判断に基づいて行ってください。
- 仲介手数料について

アットホームは物件情報の適正化に努めております。
内容に誤りがある場合にはこちらへご連絡ください。