岩手県盛岡市盛岡駅西通1丁目(盛岡駅)の中古マンション・新築マンション・分譲マンション:物件詳細
交通 所在地 |
駅徒歩 |
価格 |
構造 階建/階 |
間取り 専有面積 |
物件種目 築年月 |
|
JR東北本線/盛岡
岩手県盛岡市盛岡駅西通1丁目
|
8分
|
2,980万円
|
RC
地上14階地下1階建 / 8階
|
3LDK
91.04m²
|
中古マンション
2011年2月(築15年4ヶ月)
|
|
ペット相談、常時ゴミ出し可能、角部屋、振分、ハイサッシ採用、アウトフレーム工法、3面採光、バリアフリー、外観タイル張り、隣接建物距離2m以上、管理人日勤
|
|
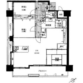
間取図
◇アウトフレーム工法で梁がなく家具が綺麗に配置できます◇
|
外観
◇南東・南西角住戸の3面採光です◇全室バルコニーに面す3LDK◇
|
<
その他の画像
>
|
| 交通 | JR東北本線 盛岡駅 徒歩8分 |
| 所在地 |
岩手県盛岡市盛岡駅西通1丁目
|
| 物件種目 |
中古マンション |
| 価格 |
2,980万円 |
平米単価 |
32.74万円 |
| 管理費等 |
10,900円 |
修繕積立金 |
28,200円 |
| 借地期間・地代(月額) |
- |
権利金 |
- |
| 敷金または保証金 |
- / - |
維持費等 |
- |
| その他一時金 |
- |
|
|
| 間取り |
3LDK(和 6 洋 7.2・5.2 LDK 21) |
専有面積 |
91.04m²(壁芯) |
| 階建 / 階 |
地上14階地下1階建 / 8階 |
バルコニー |
24.25m² |
| 築年月 |
2011年2月(築15年4ヶ月)
|
建物構造 |
RC |
| 駐車場 |
有 7,000円/月 |
総戸数 |
76戸 |
| 駐輪場 |
- |
バイク置き場 |
- |
| ペット |
相談 |
|
|
| 土地権利 |
所有権 |
敷地面積 |
- |
| 管理形態/管理員の勤務形態 |
全部委託/日勤(株式会社東急コミュニティー) |
国土法届出 |
- |
| 建物名・部屋番号 |
Mシティ杜の大橋 |
| リフォーム履歴 |
- |
| リノベーション履歴 |
- |
| 瑕疵保証 |
- |
| 瑕疵保険 |
- |
| 評価・証明書 |
- |
| 備考 |
主要採光面:南東向き
施工会社:松井建設株式会社
【駐車場】3段機械式:7,000円~8,000円、タワー式:10,000円【その他月額費用】町内会費:280円、給湯器交換積立:2,430円
【学区】桜城小学校、城西中学校
|
| エネルギー消費性能 |
- |
| 断熱性能 |
- |
| 目安光熱費 |
- |
| バス・トイレ |
浴室乾燥機、オートバス、追焚機能、シャワー付洗面化粧台、温水洗浄便座 |
| キッチン |
カウンターキッチン、システムキッチン、IHクッキングヒーター、3口以上コンロ、グリル |
| 設備・サービス |
モニター付オートロック、全居室収納、エアコン2台以上、収納スペース、室内洗濯機置場、トランクルーム、クローゼット、オートロック、モニター付インターホン、ディンプルキー、ダブルロックドア、防犯カメラ、給湯、室内物干し、都市ガス、シーリングファン、ワイドバルコニー、二面バルコニー、人感センサー付照明、ダウンライト、火災警報器(報知機)、複層ガラス |
| その他 |
宅配BOX、ペット用施設、エレベーター |
| 条件等 |
- |
現況 |
空家 |
| 引渡可能時期 |
即時 |
物件番号 |
6987995359 |
| 情報公開日 |
2025年10月12日 |
次回更新予定日 |
2026年5月23日 |
| ケータイ用バーコード |
- スマートフォンでこの物件を見る
- スマートフォンからもこの物件をご覧になれます。
|
※「-」と表示されている項目については、情報提供会社にご確認ください。
| 周辺施設 |
◇イオンタウン盛岡駅前◇24時間営業◇100円ショップももございます◇ |
| 距離 |
1050m |
写真を見る |
| 周辺施設 |
◇ファミリーマート盛岡駅西通店◇ |
| 距離 |
206m |
写真を見る |
| 周辺施設 |
◇ウエルシアイオンタウン盛岡駅前店(営業時間8:00~24:00)◇ |
| 距離 |
1055m |
写真を見る |
| 周辺施設 |
◇フェザン◇ |
| 距離 |
755m |
写真を見る |
| 周辺施設 |
◇桜城小学校◇ |
| 距離 |
1280m |
写真を見る |
| 周辺施設 |
◇城西中学校◇ |
| 距離 |
740m |
写真を見る |
ここから簡単にお問い合わせをすることができます。
(SSLでの暗号化での送信を希望されるお客さまは
こちら
よりお問い合わせください)
お問い合わせを行う前に
「個人情報の取り扱いについて」を必ずお読みください。
「個人情報の取り扱いについて」に同意いただいた場合は「上記にご同意の上 確認画面へ進む」のボタンをクリックしてください。
個人情報の取り扱いについて
皆さまが送付された個人情報はアットホーム(株)のサーバを経由し、お問い合わせ先の不動産会社にメールまたはFAXにて転送されるためアットホーム(株)にも保管されます。アットホーム(株)で保管された個人情報の取り扱いについては、【こちら】をご覧ください。
また、本画面でご記入いただいた個人情報は、お問い合わせ先の不動産会社でも保管します。 お問い合わせ先の不動産会社が保管する個人情報の取り扱いについては、不動産会社に直接お問い合わせください。
国土交通大臣免許(3)第8510号 |
|---|
- 交通:
- JR東北本線/盛岡駅 徒歩10分
- 岩手県盛岡市大通3丁目2-6 KCビル1階
- TEL:
- 019-604-3456
- FAX:
- 019-604-3466
- 所属団体:
- (一社)岩手県宅地建物取引業協会会員東北地区不動産公正取引協議会加盟
取引態様:専任媒介  - 20001894
|
- スマートフォンで
この不動産会社を見る

|
- 提携サイト等より掲載されている物件情報につきましては、不動産会社詳細情報にリンクされていないものがあります。
- 物件に関するお問合せは、物件詳細ページの「情報提供会社」に表示されている不動産会社へ直接お願いいたします。
- 間取図は、現況を優先させていただきます。
- 映像は物件の一部を撮影したものです。物件の契約にあたっての最終判断はご自身の判断に基づいて行ってください。
- 仲介手数料について

アットホームは物件情報の適正化に努めております。
内容に誤りがある場合にはこちらへご連絡ください。