不動産 賃貸 マンション等の住宅情報:埼玉住まい情報


福岡県北九州市小倉北区足立3丁目(城野駅)の中古マンション・新築マンション・分譲マンション:物件詳細

  • 物件詳細
  • 情報の見方
  • 印刷用画面
交通
所在地
駅徒歩 価格 構造
階建/階
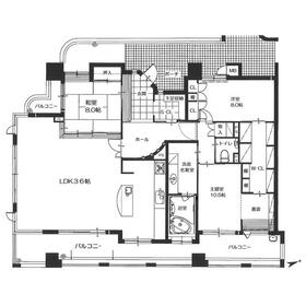
間取り
専有面積
物件種目
築年月

JR日豊本線/城野

福岡県北九州市小倉北区足立3丁目

24分

4,980万円

SRC

地上14階地下1階建 / 14階

3SLDK

151.05m²

中古マンション

2005年3月(築20年8ヶ月)

おすすめPOINTペット相談、駐車場2台分、角部屋、最上階、振分、バス1坪以上、3面採光、24時間換気システム、閑静な住宅街、外観タイル張り、管理人常駐

おすすめコメント  スタッフ: レアリード

●ペット【犬・猫2匹まで】飼育相談可♪●屋根付き分譲駐車場並列2台付!●高層マンションの最上階/南東角住戸で日当り・通風良好☆●リビング広々36帖で妙見山の季節の移ろいを感じながらゆったり過ごせます♪

間取図

間取図

外観

外観

<
その他の画像
  • リビング
  • キッチン
  • キッチン
  • バス/シャワー
  • 洗面
  • トイレ
  • 室内
  • 収納
  • 室内
  • 室内
  • 収納
  • 設備
  • バルコニー
  • 駐車場
  • 玄関
  • 玄関
  • 玄関
  • 玄関
  • 収納
  • 室内
  • キッチン
  • キッチン
  • キッチン
  • 洗面
  • 設備
  • 設備
  • 室内
  • 室内
  • 収納
  • バルコニー
  • バルコニー
  • 眺望
  • エントランス
  • 共有部分
  • 共有部分
  • 共有部分
  • 共有部分
  • 共有部分
  • 小学校
  • 中学校
  • ショッピング施設
  • ショッピング施設
  • コンビニ
  • 販売店
  • 郵便局
  • 銀行
>
    • とりあえず保存
    • お問い合わせ
    交通

    JR日豊本線 城野駅 徒歩24分

    その他の交通

    北九州モノレール 片野駅 徒歩27分

    北九州モノレール 香春口三萩野駅 徒歩30分

    所在地 福岡県北九州市小倉北区足立3丁目
    物件種目 中古マンション
    価格 4,980万円 平米単価 32.97万円
    管理費等 18,120円 修繕積立金 24,920円
    借地期間・地代(月額) 権利金
    敷金または保証金 - / - 維持費等 分譲駐車場管理費:3,860円/月、分譲駐車場修繕積立金:12,760円/月
    その他一時金    
    間取り 3SLDK(和 8 洋 8・10.5 LDK 36 S 6.5) 専有面積 151.05m²(壁芯)
    階建 / 階 地上14階地下1階建 / 14階 バルコニー 29.29m²
    築年月 2005年3月(築20年8ヶ月) 建物構造 SRC
    駐車場 有 無料 総戸数 67戸
    駐輪場 バイク置き場
    ペット 小型犬可・ 猫可・ 二匹まで飼育可能。    
    土地権利 所有権 敷地面積 3,760.62m²
    管理形態/管理員の勤務形態 全部委託/常駐(日本エスエム) 国土法届出
    アピールポイント ●当社は、ファイナンシャルプランナーによる
    【住宅購入相談】を無料で個別に行っております
    お気軽にご相談下さい♪
    建物名・部屋番号 ザ・ハウス足立三丁目
    リフォーム履歴
    リノベーション履歴
    瑕疵保証
    瑕疵保険
    評価・証明書
    備考
    主要採光面:南東向き
    用途地域:1種中高
    延べ面積:9,537.82m²
    ●足原小学校/霧丘中学校。
    ●2面バルコニー/最上階南東角住戸で日当たり・通風・眺望良好!!
    ●専有面積広々151.05㎡でリビングも36帖とゆったり過ごせます♪
    ●ウォークインクローゼット/シューズインクローク/各部屋収納付で荷物が多い方におススメ☆
    ●ペット飼育【犬・猫2匹まで】相談可能♪
    ●屋根付き分譲駐車場2台分駐車可能☆
    ●防犯カメラ/オートロック/TVモニターホン/管理人常駐でセキュリティ充実!!
    ●追加リフォーム等ご相談ください♪
    ●内覧予約随時受付中♪
    エネルギー消費性能
    断熱性能
    目安光熱費
    バス・トイレ 浴室暖房、浴室乾燥機、オートバス、追焚機能、温水洗浄便座、浴室に窓あり
    キッチン カウンターキッチン、システムキッチン、3口以上コンロ、Ⅱ型キッチン
    設備・サービス モニター付オートロック、全居室収納、ウォークインクローゼット、バイク置き場、収納スペース、室内洗濯機置場、シューズインクローゼット、クローゼット、オートロック、モニター付インターホン、防犯カメラ、給湯、都市ガス、二面バルコニー、駐輪場
    その他 宅配BOX、エレベーター
    条件等 現況 空家
    引渡可能時期 即時 物件番号 6988028290
    情報公開日 2025年10月16日 次回更新予定日 2025年10月30日
    ケータイ用バーコード

    QRコード

    スマートフォンでこの物件を見る
    スマートフォンからもこの物件をご覧になれます。
    ※「-」と表示されている項目については、情報提供会社にご確認ください。

    この物件の周辺情報

    周辺施設 北九州市立足原小学校
    距離 390m
    周辺施設 北九州市立霧丘中学校
    距離 626m
    周辺施設 ハローデイ足原店
    距離 532m
    周辺施設 A-プライス小倉北店
    距離 922m
    周辺施設 セブンイレブン小倉足立店
    距離 222m
    周辺施設 マツモトキヨシ足原店
    距離 443m
    周辺施設 小倉黒原郵便局
    距離 620m
    周辺施設 福岡ひびき信用金庫城野支店
    距離 1523m

    クイックお問い合わせ

    ここから簡単にお問い合わせをすることができます。
    (SSLでの暗号化での送信を希望されるお客さまは こちら よりお問い合わせください)

    お問い合わせ内容(必須)
    お名前(必須) 姓  名 
    メールアドレス(必須)
    ※携帯電話のメールアドレスをご入力される方はこちらをご確認ください
    電話番号(必須)
    - -

    ※入力いただいた電話番号へSMSまたは音声でパスワードをご連絡します。

    携帯電話の番号をご入力の方へ

    携帯電話の番号をご入力の方へ
    確認画面にて送信ボタンをクリックするとSMSが携帯電話に届きます。
    そのSMSに記載のパスワード(認証番号)を入力し、お問い合わせを完了してください。
    尚、SMSの送信者番号は 0005 202 760 となります。
    これはアットホームの固定番号です。

    備考欄 希望条件、物件案内希望日、質問などがございましたらご記入ください。
    お問い合わせを行う前に「個人情報の取り扱いについて」を必ずお読みください。
    「個人情報の取り扱いについて」に同意いただいた場合は「上記にご同意の上 確認画面へ進む」のボタンをクリックしてください。

    個人情報の取り扱いについて

    皆さまが送付された個人情報はアットホーム(株)のサーバを経由し、お問い合わせ先の不動産会社にメールまたはFAXにて転送されるためアットホーム(株)にも保管されます。アットホーム(株)で保管された個人情報の取り扱いについては、【こちら】をご覧ください。
    また、本画面でご記入いただいた個人情報は、お問い合わせ先の不動産会社でも保管します。 お問い合わせ先の不動産会社が保管する個人情報の取り扱いについては、不動産会社に直接お問い合わせください。

    情報提供会社

    情報提供会社

    (株)レアリード

    福岡県知事免許(2)第18639号

    交通:
    JR鹿児島本線/西小倉駅 徒歩7分
    福岡県北九州市小倉北区田町11-18-3F 
    TEL:
    093-562-0080
    FAX:
    093-562-0081
    所属団体:
    (公社)福岡県宅地建物取引業協会会員
    (一社)九州不動産公正取引協議会加盟

    取引態様:媒介

    • 会社情報
    • 80503653
    スマートフォンで
    この不動産会社を見る
    QRコード
    • とりあえず保存
    • お問い合わせ
    • 提携サイト等より掲載されている物件情報につきましては、不動産会社詳細情報にリンクされていないものがあります。
    • 物件に関するお問合せは、物件詳細ページの「情報提供会社」に表示されている不動産会社へ直接お願いいたします。
    • 間取図は、現況を優先させていただきます。
    • 映像は物件の一部を撮影したものです。物件の契約にあたっての最終判断はご自身の判断に基づいて行ってください。
    • 仲介手数料について仲介手数料

    アットホームは物件情報の適正化に努めております。 内容に誤りがある場合にはこちらへご連絡ください。

    【埼玉住まい情報】では、日本全国の物件から賃貸マンションや賃貸アパート・賃貸一戸建て等の賃貸住宅情報、新築マンション・分譲マンションや中古マンション等の売買マンション情報、新築一戸建てや中古一戸建てなどの戸建住宅、 土地など、総合的な不動産住宅情報検索サービスを提供致します。
    【埼玉住まい情報】から、選りすぐりの不動産物件を探してみましょう。

    【免責事項】
    このコーナーの運営はアットホーム株式会社(https://www.athome.co.jp/)が行っています。
    このコーナーに掲載している物件情報は、「アットホーム不動産情報ネットワーク」に加盟する不動産会社等(情報提供元)から提供されています。信頼性の高い情報提供が行えるよう、最大限の努力をしておりますが、その内容を保証するものではありません。 利用者のみなさまと各情報提供元との取引に起因する損害および情報が掲載されたことに起因する損害等については、株式会社イーシティ埼玉、およびアットホームは一切責任を負いません。
    各物件情報の内容や画像等はすべて現況を優先させていただきます。
    お取引等(お取引の準備、資金調達等を含みます)の際には、内容や契約条件等について、各情報提供元より十分な説明を受け、ご自身でご確認の上、判断してください。
    このコーナーへの物件情報のご掲載、その他不動産業務ソリューション等についての不動産会社様のお問合せはこちらからお願いいたします。

    物件画像: