北海道札幌市北区北八条西3丁目(札幌駅)の中古マンション・新築マンション・分譲マンション:物件詳細
交通 所在地 |
駅徒歩 |
価格 |
構造 階建/階 |
間取り 専有面積 |
物件種目 築年月 |
|
JR函館本線/札幌
北海道札幌市北区北八条西3丁目
|
3分
|
4,980万円
|
RC
地上40階地下1階建 / 5階
|
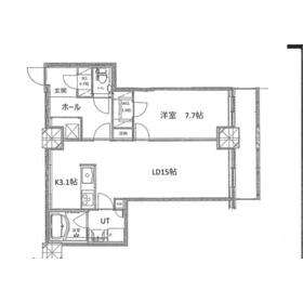
1LDK
62.77m²
|
中古マンション
2006年12月(築19年1ヶ月)
|
|
常時ゴミ出し可能、バス1坪以上、24時間換気システム、オール電化、管理人日勤
|
|
間取図
|
外観
|
<
その他の画像
>
|
| 交通 | JR函館本線 札幌駅 徒歩3分 |
|---|
| その他の交通 | 札幌市南北線 さっぽろ駅 徒歩3分 札幌市東豊線 さっぽろ駅 徒歩3分 |
| 所在地 |
北海道札幌市北区北八条西3丁目
|
| 物件種目 |
中古マンション |
| 価格 |
4,980万円 |
平米単価 |
79.34万円 |
| 管理費等 |
10,600円 |
修繕積立金 |
17,780円 |
| 借地期間・地代(月額) |
- |
権利金 |
- |
| 敷金または保証金 |
- / - |
維持費等 |
- |
| その他一時金 |
- |
|
|
| 間取り |
1LDK |
専有面積 |
62.77m²(壁芯) |
| 階建 / 階 |
地上40階地下1階建 / 5階 |
バルコニー |
6.40m² |
| 築年月 |
2006年12月(築19年1ヶ月)
|
建物構造 |
RC |
| 駐車場 |
有 18,000円/月 |
総戸数 |
336戸 |
| 駐輪場 |
有 500円/月 |
バイク置き場 |
空無 |
| ペット |
-
|
|
|
| 土地権利 |
所有権 |
敷地面積 |
- |
| 管理形態/管理員の勤務形態 |
全部委託/日勤 |
国土法届出 |
- |
| アピールポイント |
3沿線アクセス可能。ペット飼育可能(管理規約有) 広々の62.77㎡の1LDK |
| 建物名・部屋番号 |
|
| リフォーム履歴 |
- |
| リノベーション履歴 |
- |
| 瑕疵保証 |
- |
| 瑕疵保険 |
- |
| 評価・証明書 |
- |
| 備考 |
主要採光面:東向き
施工会社:大成建設株式会社
|
| エネルギー消費性能 |
- |
| 断熱性能 |
- |
| 目安光熱費 |
- |
| バス・トイレ |
浴室暖房、オートバス、追焚機能、温水洗浄便座 |
| キッチン |
システムキッチン、独立型キッチン、食器洗浄乾燥機、食器乾燥機、浄水器、IHクッキングヒーター、3口以上コンロ |
| 設備・サービス |
モニター付オートロック、全居室収納、ウォークインクローゼット、バイク置き場、収納スペース、室内洗濯機置場、シューズインクローゼット、モニター付インターホン、ディンプルキー、ダブルロックドア、防犯カメラ、洗濯機置場、全居室フローリング、暖房、駐輪場、光ファイバー、BS端子 |
| その他 |
宅配BOX、エレベーター2基以上、エレベーター、各フロアゴミ捨て場所あり |
| 条件等 |
- |
現況 |
空家 |
| 引渡可能時期 |
即時 |
物件番号 |
6988050069 |
| 仲介手数料 |
売買代金の3%+6万円 |
|
|
| 情報公開日 |
2025年10月27日 |
次回更新予定日 |
2025年12月22日 |
| ケータイ用バーコード |
- スマートフォンでこの物件を見る
- スマートフォンからもこの物件をご覧になれます。
|
※「-」と表示されている項目については、情報提供会社にご確認ください。
ここから簡単にお問い合わせをすることができます。
(SSLでの暗号化での送信を希望されるお客さまは
こちら
よりお問い合わせください)
お問い合わせを行う前に
「個人情報の取り扱いについて」を必ずお読みください。
「個人情報の取り扱いについて」に同意いただいた場合は「上記にご同意の上 確認画面へ進む」のボタンをクリックしてください。
個人情報の取り扱いについて
皆さまが送付された個人情報はアットホーム(株)のサーバを経由し、お問い合わせ先の不動産会社にメールまたはFAXにて転送されるためアットホーム(株)にも保管されます。アットホーム(株)で保管された個人情報の取り扱いについては、【こちら】をご覧ください。
また、本画面でご記入いただいた個人情報は、お問い合わせ先の不動産会社でも保管します。 お問い合わせ先の不動産会社が保管する個人情報の取り扱いについては、不動産会社に直接お問い合わせください。
北海道知事免許 石狩(6)第6492号 |
|---|
- 交通:
- 札幌市東西線/西11丁目駅 徒歩15分 【バス】5分 南6条西11丁目 停歩2分
- 北海道札幌市中央区南八条西11丁目3-5 サッポロエムビル
- TEL:
- 011-532-0919
- FAX:
- 011-532-0920
- 所属団体:
- (公社)北海道宅地建物取引業協会会員(一社)北海道不動産公正取引協議会加盟
取引態様:専任媒介  - 10005953
|
- スマートフォンで
この不動産会社を見る

|
- 提携サイト等より掲載されている物件情報につきましては、不動産会社詳細情報にリンクされていないものがあります。
- 物件に関するお問合せは、物件詳細ページの「情報提供会社」に表示されている不動産会社へ直接お願いいたします。
- 間取図は、現況を優先させていただきます。
- 映像は物件の一部を撮影したものです。物件の契約にあたっての最終判断はご自身の判断に基づいて行ってください。
- 仲介手数料について

アットホームは物件情報の適正化に努めております。
内容に誤りがある場合にはこちらへご連絡ください。