東京都世田谷区瀬田3丁目(用賀駅)の中古マンション・新築マンション・分譲マンション:物件詳細
交通 所在地 |
駅徒歩 |
価格 |
構造 階建/階 |
間取り 専有面積 |
物件種目 築年月 |
東急田園都市線/用賀
東京都世田谷区瀬田3丁目
|
8分
|
7,080万円
|
RC
13階建 / 5階
|
1LDK
44.41m²
|
中古マンション
2010年2月(築15年9ヶ月)
|
ペット相談、角部屋、南向き、二重床・二重天井、2面採光、前面棟無、管理人日勤
|
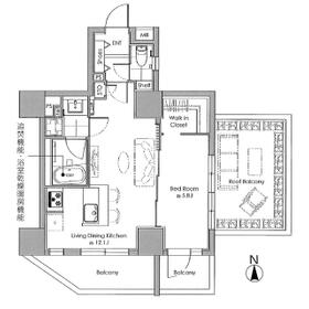
間取図
|
リビング
|
その他の画像
|
交通 | 東急田園都市線 用賀駅 徒歩8分 |
---|
その他の交通 | 東急大井町線 二子玉川駅 徒歩15分 東急田園都市線 二子玉川駅 徒歩15分 |
所在地 |
東京都世田谷区瀬田3丁目
|
物件種目 |
中古マンション |
価格 |
7,080万円 |
平米単価 |
159.43万円 |
管理費等 |
11,070円 |
修繕積立金 |
8,000円 |
借地期間・地代(月額) |
- |
権利金 |
- |
敷金または保証金 |
- / - |
維持費等 |
- |
その他一時金 |
- |
|
|
間取り |
1LDK(洋 5.8 LDK 12.1) |
専有面積 |
44.41m²(壁芯) |
階建 / 階 |
13階建 / 5階 |
バルコニー |
9.28m² |
築年月 |
2010年2月(築15年9ヶ月)
|
建物構造 |
RC |
駐車場 |
有 28,000円/月 |
総戸数 |
47戸 |
駐輪場 |
有 無料 |
バイク置き場 |
有 2,000円/月 |
ペット |
体高50㎝以内・2匹まで |
|
|
土地権利 |
所有権 |
敷地面積 |
- |
管理形態/管理員の勤務形態 |
全部委託/日勤(㈱シティインデックスプロパティーズ) |
国土法届出 |
- |
アピールポイント |
お探しの方には嬉しいペット相談可。星空が見えるルーフバルコニーのある住まい、更に室外へのアプローチを2箇所備えた2面バルコニーのある住戸なので、風の流れがフレッシュな空気を取り込みます。また広々とした延床面積44.41㎡の居室空間で、その上留守番いらずの宅配BOX付だから、再配達のひと手間を省けます。ちなみに無駄のない造りのシステムキッチンです。独身でも新婚でも使える1LDK。是非その目でお確かめください。 |
建物名・部屋番号 |
シティインデックス用賀 |
リフォーム履歴 |
- |
リノベーション履歴 |
2025年8月 システムキッチン(3口コンロ・浄水機能付き水栓)、バスルーム(追炊き・浴室換気乾燥暖房機)、建具、フローリング新規上張、壁・天井クロス、洗面台、トイレ(ウォシュレット付)、給湯器、専有部給水・給湯管切り回し、専有部排水管切回し、専有部ガス管切り回し、ハウスクリーニング ※実施年月は最も古い履歴を表示 |
瑕疵保証 |
- |
瑕疵保険 |
- |
評価・証明書 |
- |
備考 |
主要採光面:南向き
施工会社:今井産業株式会社
用途地域:近隣商業
・ルーフバルコニー面積/12.59㎡
|
エネルギー消費性能 |
- |
断熱性能 |
- |
目安光熱費 |
- |
バス・トイレ |
浴室暖房、浴室乾燥機、追焚機能、温水洗浄便座 |
キッチン |
オープンキッチン、システムキッチン、浄水器、3口以上コンロ |
設備・サービス |
モニター付オートロック、全居室収納、ウォークインクローゼット、バイク置き場、収納スペース、室内洗濯機置場、オートロック、二重床、給湯、全居室フローリング、都市ガス、ルーフバルコニー、二面バルコニー、駐輪場、インターネット対応、ケーブルTV |
その他 |
宅配BOX、エレベーター |
条件等 |
- |
現況 |
空家 |
引渡可能時期 |
相談 |
物件番号 |
6988073069 |
仲介手数料 |
不要 |
|
|
情報公開日 |
2025年10月20日 |
次回更新予定日 |
2025年11月3日 |
ケータイ用バーコード |
- スマートフォンでこの物件を見る
- スマートフォンからもこの物件をご覧になれます。
|
※「-」と表示されている項目については、情報提供会社にご確認ください。
周辺施設 |
セブンイレブン世田谷瀬田4丁目店 |
距離 |
246m |
周辺施設 |
まいばすけっと瀬田2丁目店 |
距離 |
397m |
周辺施設 |
東急ストアフードステーション用賀店 |
距離 |
829m |
周辺施設 |
玉川高島屋ショッピングセンター |
距離 |
1165m |
ここから簡単にお問い合わせをすることができます。
(SSLでの暗号化での送信を希望されるお客さまは
こちら
よりお問い合わせください)
お問い合わせを行う前に
「個人情報の取り扱いについて」を必ずお読みください。
「個人情報の取り扱いについて」に同意いただいた場合は「上記にご同意の上 確認画面へ進む」のボタンをクリックしてください。
個人情報の取り扱いについて
皆さまが送付された個人情報はアットホーム(株)のサーバを経由し、お問い合わせ先の不動産会社にメールまたはFAXにて転送されるためアットホーム(株)にも保管されます。アットホーム(株)で保管された個人情報の取り扱いについては、【こちら】をご覧ください。
また、本画面でご記入いただいた個人情報は、お問い合わせ先の不動産会社でも保管します。 お問い合わせ先の不動産会社が保管する個人情報の取り扱いについては、不動産会社に直接お問い合わせください。
東京都知事免許(5)第83308号 |
---|
- 交通:
- 都営大江戸線/赤羽橋駅 徒歩4分
- 東京都港区東麻布1丁目7-3 第二渡邊ビル3F
- TEL:
- 03-6230-1591
- FAX:
- 03-6230-1592
- 所属団体:
- (公社)東京都宅地建物取引業協会会員(公社)首都圏不動産公正取引協議会加盟
取引態様:売主  - 00051576
|
- スマートフォンで
この不動産会社を見る

|
- 提携サイト等より掲載されている物件情報につきましては、不動産会社詳細情報にリンクされていないものがあります。
- 物件に関するお問合せは、物件詳細ページの「情報提供会社」に表示されている不動産会社へ直接お願いいたします。
- 間取図は、現況を優先させていただきます。
- 映像は物件の一部を撮影したものです。物件の契約にあたっての最終判断はご自身の判断に基づいて行ってください。
- 仲介手数料について

アットホームは物件情報の適正化に努めております。
内容に誤りがある場合にはこちらへご連絡ください。