栃木県宇都宮市簗瀬4丁目(宇都宮駅)の中古マンション・新築マンション・分譲マンション:物件詳細
交通 所在地 |
駅徒歩 |
価格 |
構造 階建/階 |
間取り 専有面積 |
物件種目 築年月 |
|
JR東北本線/宇都宮
栃木県宇都宮市簗瀬4丁目
|
13分
|
2,200万円
|
SRC
14階建 / 11階
|
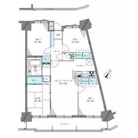
4LDK
78.38m²
|
中古マンション
1999年1月(築27年3ヶ月)
|
|
外観タイル張り、管理人日勤
|
|
間取図
|
外観
|
その他の画像
|
| 交通 | JR東北本線 宇都宮駅 徒歩13分 |
|---|
| その他の交通 | 湘南新宿ライン(宇都宮〜逗子) 宇都宮駅 徒歩13分 JR日光線 宇都宮駅 徒歩10分 |
| 所在地 |
栃木県宇都宮市簗瀬4丁目
|
| 物件種目 |
中古マンション |
| 価格 |
2,200万円 |
平米単価 |
28.07万円 |
| 管理費等 |
7,490円 |
修繕積立金 |
11,670円 |
| 借地期間・地代(月額) |
- |
権利金 |
- |
| 敷金または保証金 |
- / - |
維持費等 |
- |
| その他一時金 |
- |
|
|
| 間取り |
4LDK |
専有面積 |
78.38m²(壁芯) |
| 階建 / 階 |
14階建 / 11階 |
バルコニー |
14.40m² |
| 築年月 |
1999年1月(築27年3ヶ月)
|
建物構造 |
SRC |
| 駐車場 |
有 5,000円/月 |
総戸数 |
90戸 |
| 駐輪場 |
- |
バイク置き場 |
- |
| ペット |
-
|
|
|
| 土地権利 |
所有権 |
敷地面積 |
- |
| 管理形態/管理員の勤務形態 |
全部委託/日勤(株式会社長谷工コミュニティ) |
国土法届出 |
- |
| アピールポイント |
広々とした延床面積78.38㎡の居室空間、更に物が増えても安心の全居室収納なので、部屋ごとに収納したいものを分けられます。またお鍋とフライパンを使いながらヤカンもおけるコンロ3口以上付で、その上不審者の侵入に目を光らせる防犯カメラ完備なので、空き巣を躊躇させる効果があります。ちなみに外出が多い生活で重宝する浴室乾燥機付です。家族の物語が生まれる4LDK。実際の空間をご自身で体感ください。 |
| 建物名・部屋番号 |
ガーデンコート簗瀬 |
| リフォーム履歴 |
- |
| リノベーション履歴 |
- |
| 瑕疵保証 |
- |
| 瑕疵保険 |
- |
| 評価・証明書 |
- |
| 備考 |
主要採光面:南東向き
◆1999年築 ◆11階部分南東向き
◆モニタ付オートロック
◆浴室暖房乾燥 ◆追炊給湯機能付
◆住宅設備保証サービス付(2年間)
|
| エネルギー消費性能 |
- |
| 断熱性能 |
- |
| 目安光熱費 |
- |
| バス・トイレ |
浴室乾燥機、追焚機能、温水洗浄便座 |
| キッチン |
3口以上コンロ |
| 設備・サービス |
モニター付オートロック、全居室収納、収納スペース、室内洗濯機置場、オートロック、モニター付インターホン、防犯カメラ、給湯、都市ガス |
| その他 |
エレベーター |
| 条件等 |
- |
現況 |
空家 |
| 引渡可能時期 |
相談 |
物件番号 |
6988104805 |
| 仲介手数料 |
売買代金の3%+6万円 |
|
|
| 情報公開日 |
2025年10月23日 |
次回更新予定日 |
2026年3月23日 |
| ケータイ用バーコード |
- スマートフォンでこの物件を見る
- スマートフォンからもこの物件をご覧になれます。
|
※「-」と表示されている項目については、情報提供会社にご確認ください。
| 周辺施設 |
セブンイレブン宇都宮簗瀬2丁目店 |
| 距離 |
519m |
| 周辺施設 |
ファミリーマート宇都宮簗瀬四丁目店 |
| 距離 |
520m |
| 周辺施設 |
マツモトキヨシ宇都宮簗瀬店 |
| 距離 |
664m |
| 周辺施設 |
ツルハドラッグ宇都宮簗瀬店 |
| 距離 |
695m |
ここから簡単にお問い合わせをすることができます。
(SSLでの暗号化での送信を希望されるお客さまは
こちら
よりお問い合わせください)
お問い合わせを行う前に
「個人情報の取り扱いについて」を必ずお読みください。
「個人情報の取り扱いについて」に同意いただいた場合は「上記にご同意の上 確認画面へ進む」のボタンをクリックしてください。
個人情報の取り扱いについて
皆さまが送付された個人情報はアットホーム(株)のサーバを経由し、お問い合わせ先の不動産会社にメールまたはFAXにて転送されるためアットホーム(株)にも保管されます。アットホーム(株)で保管された個人情報の取り扱いについては、【こちら】をご覧ください。
また、本画面でご記入いただいた個人情報は、お問い合わせ先の不動産会社でも保管します。 お問い合わせ先の不動産会社が保管する個人情報の取り扱いについては、不動産会社に直接お問い合わせください。
東京都知事免許(5)第82911号 |
|---|
- 交通:
- 西武新宿線/西武柳沢駅 徒歩5分
- 東京都西東京市保谷町2丁目1-4
- TEL:
- 042-450-5651
- FAX:
- 042-468-1451
- 所属団体:
- (公社)全日本不動産協会会員(公社)首都圏不動産公正取引協議会加盟
取引態様:専任媒介  - 00986870
|
- スマートフォンで
この不動産会社を見る

|
- 提携サイト等より掲載されている物件情報につきましては、不動産会社詳細情報にリンクされていないものがあります。
- 物件に関するお問合せは、物件詳細ページの「情報提供会社」に表示されている不動産会社へ直接お願いいたします。
- 間取図は、現況を優先させていただきます。
- 映像は物件の一部を撮影したものです。物件の契約にあたっての最終判断はご自身の判断に基づいて行ってください。
- 仲介手数料について

アットホームは物件情報の適正化に努めております。
内容に誤りがある場合にはこちらへご連絡ください。