栃木県那須塩原市塩原(西那須野駅)の中古マンション・新築マンション・分譲マンション:物件詳細
交通 所在地 |
駅徒歩 |
価格 |
構造 階建/階 |
間取り 専有面積 |
物件種目 築年月 |
|
JR東北本線/西那須野 [バス利用可] バス 39分 塩原福渡 停歩4分
栃木県那須塩原市塩原
|
21000m
|
400万円
|
SRC
7階建 / 3階
|
1DK
39.04m²
|
中古マンション
1995年6月(築30年6ヶ月)
|
|
ペット相談、オール電化、管理人日勤
|
|
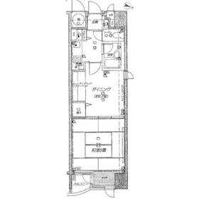
間取図
1DK 39.04㎡(11.80坪)、バルコニー:1.54㎡(0.46坪)
|
外観
開湯1200年を超える歴史ある温泉地にあるリゾートマンション
|
<
その他の画像
>
|
| 交通 | JR東北本線 西那須野駅 徒歩21000m [バス利用可] バス 39分 塩原福渡 停歩4分 |
|---|
| その他の交通 | 野岩鉄道 上三依塩原温泉口駅 【バス】 35分 天皇の間記念公園前 停歩1分 |
| 所在地 |
栃木県那須塩原市塩原
|
| 物件種目 |
中古マンション |
| 価格 |
400万円 |
平米単価 |
10.25万円 |
| 管理費等 |
19,180円 |
修繕積立金 |
7,810円 |
| 借地期間・地代(月額) |
- |
権利金 |
- |
| 敷金または保証金 |
- / - |
維持費等 |
- |
| その他一時金 |
- |
|
|
| 間取り |
1DK(和 8) |
専有面積 |
39.04m²(壁芯) |
| 階建 / 階 |
7階建 / 3階 |
バルコニー |
1.54m² |
| 築年月 |
1995年6月(築30年6ヶ月)
|
建物構造 |
SRC |
| 駐車場 |
- |
総戸数 |
337戸 |
| 駐輪場 |
- |
バイク置き場 |
- |
| ペット |
小型犬可 |
|
|
| 土地権利 |
所有権 |
敷地面積 |
- |
| 管理形態/管理員の勤務形態 |
全部委託/日勤(伊藤忠アーバンコミュニティ株式会社) |
国土法届出 |
- |
| 建物名・部屋番号 |
シーアイヴィラ那須塩原Ⅱラムダ 310 |
| リフォーム履歴 |
- |
| リノベーション履歴 |
- |
| 瑕疵保証 |
- |
| 瑕疵保険 |
- |
| 評価・証明書 |
- |
| 備考 |
主要採光面:東向き
用途地域:商業地域、1種住居
|
| エネルギー消費性能 |
- |
| 断熱性能 |
- |
| 目安光熱費 |
- |
| バス・トイレ |
- |
| キッチン |
- |
| 設備・サービス |
床暖房、エアコン、照明器具 |
| その他 |
エレベーター2基以上、エレベーター |
| 条件等 |
- |
現況 |
空家 |
| 引渡可能時期 |
相談 |
物件番号 |
6988127568 |
| 情報公開日 |
2025年10月24日 |
次回更新予定日 |
2025年11月21日 |
| ケータイ用バーコード |
- スマートフォンでこの物件を見る
- スマートフォンからもこの物件をご覧になれます。
|
※「-」と表示されている項目については、情報提供会社にご確認ください。
| 周辺施設 |
栃木県医師会塩原温泉病院 |
| 距離 |
908m |
| 周辺施設 |
塩原温泉バスターミナル |
| 距離 |
2449m |
ここから簡単にお問い合わせをすることができます。
(SSLでの暗号化での送信を希望されるお客さまは
こちら
よりお問い合わせください)
お問い合わせを行う前に
「個人情報の取り扱いについて」を必ずお読みください。
「個人情報の取り扱いについて」に同意いただいた場合は「上記にご同意の上 確認画面へ進む」のボタンをクリックしてください。
個人情報の取り扱いについて
皆さまが送付された個人情報はアットホーム(株)のサーバを経由し、お問い合わせ先の不動産会社にメールまたはFAXにて転送されるためアットホーム(株)にも保管されます。アットホーム(株)で保管された個人情報の取り扱いについては、【こちら】をご覧ください。
また、本画面でご記入いただいた個人情報は、お問い合わせ先の不動産会社でも保管します。 お問い合わせ先の不動産会社が保管する個人情報の取り扱いについては、不動産会社に直接お問い合わせください。
栃木県知事免許(7)第3812号 |
|---|
- 交通:
- JR東北本線/西那須野駅 徒歩10分
- 栃木県那須塩原市太夫塚2丁目201-9
- TEL:
- 0287-37-9153
- FAX:
- 0287-37-9157
- 所属団体:
- (公社)栃木県宅地建物取引業協会会員(公社)首都圏不動産公正取引協議会加盟
取引態様:専任媒介  - 00262885
|
- スマートフォンで
この不動産会社を見る

|
- 提携サイト等より掲載されている物件情報につきましては、不動産会社詳細情報にリンクされていないものがあります。
- 物件に関するお問合せは、物件詳細ページの「情報提供会社」に表示されている不動産会社へ直接お願いいたします。
- 間取図は、現況を優先させていただきます。
- 映像は物件の一部を撮影したものです。物件の契約にあたっての最終判断はご自身の判断に基づいて行ってください。
- 仲介手数料について

アットホームは物件情報の適正化に努めております。
内容に誤りがある場合にはこちらへご連絡ください。