東京都新宿区北新宿3丁目(大久保駅)の中古マンション・新築マンション・分譲マンション:物件詳細
交通 所在地 |
駅徒歩 |
価格 |
構造 階建/階 |
間取り 専有面積 |
物件種目 築年月 |
|
JR総武線/大久保
東京都新宿区北新宿3丁目
|
8分
|
3,380万円
|
RC
地上5階地下1階建 / 地下1階
|
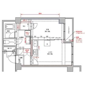
1LDK
36.10m²
|
中古マンション
1978年9月(築47年2ヶ月)
|
|
角部屋、管理人日勤
|
|
間取図
|
キッチン
|
その他の画像
|
| 交通 | JR総武線 大久保駅 徒歩8分 |
|---|
| その他の交通 | 都営大江戸線 東中野駅 徒歩13分 |
| 所在地 |
東京都新宿区北新宿3丁目
|
| 物件種目 |
中古マンション |
| 価格 |
3,380万円 |
平米単価 |
93.63万円 |
| 管理費等 |
8,500円 |
修繕積立金 |
8,300円 |
| 借地期間・地代(月額) |
- |
権利金 |
- |
| 敷金または保証金 |
- / - |
維持費等 |
組合費:200円/月、専用庭使用料:800円/月 |
| その他一時金 |
- |
|
|
| 間取り |
1LDK |
専有面積 |
36.10m²(壁芯) |
| 階建 / 階 |
地上5階地下1階建 / 地下1階 |
バルコニー |
2.63m² |
| 築年月 |
1978年9月(築47年2ヶ月)
|
建物構造 |
RC |
| 駐車場 |
空無 |
総戸数 |
155戸 |
| 駐輪場 |
空無 |
バイク置き場 |
無 |
| ペット |
-
|
|
|
| 土地権利 |
所有権 |
敷地面積 |
- |
| 管理形態/管理員の勤務形態 |
全部委託/日勤(株式会社東急コミュニティー) |
国土法届出 |
- |
| アピールポイント |
大久保駅徒歩8分で通勤通学に便利!
~リフォーム内容~
フローリング張替、CF張替、クロス張替、ユニットバス・洗面台・トイレ・照明・キッチン・エアコン・モニター付きインターホン・火災報知器・分電盤新品交換、ハウスクリーニング等 |
| 建物名・部屋番号 |
パイロットハウス北新宿 |
| リフォーム履歴 |
- |
| リノベーション履歴 |
- |
| 瑕疵保証 |
- |
| 瑕疵保険 |
- |
| 評価・証明書 |
- |
| 備考 |
主要採光面:東向き
|
| エネルギー消費性能 |
- |
| 断熱性能 |
- |
| 目安光熱費 |
- |
| バス・トイレ |
浴室暖房、浴室乾燥機 |
| キッチン |
システムキッチン、3口以上コンロ |
| 設備・サービス |
ウォークインクローゼット、収納スペース、室内洗濯機置場、モニター付インターホン、都市ガス、専用庭、駐輪場 |
| その他 |
エレベーター |
| 条件等 |
- |
現況 |
空家 |
| 引渡可能時期 |
相談 |
物件番号 |
6988136199 |
| 仲介手数料 |
不要 |
|
|
| 情報公開日 |
2025年10月24日 |
次回更新予定日 |
2025年11月7日 |
| ケータイ用バーコード |
- スマートフォンでこの物件を見る
- スマートフォンからもこの物件をご覧になれます。
|
※「-」と表示されている項目については、情報提供会社にご確認ください。
| 周辺施設 |
セブンイレブン 東中野1丁目店 |
| 距離 |
550m |
| 周辺施設 |
オリンピック 北新宿店 |
| 距離 |
300m |
写真を見る |
ここから簡単にお問い合わせをすることができます。
(SSLでの暗号化での送信を希望されるお客さまは
こちら
よりお問い合わせください)
お問い合わせを行う前に
「個人情報の取り扱いについて」を必ずお読みください。
「個人情報の取り扱いについて」に同意いただいた場合は「上記にご同意の上 確認画面へ進む」のボタンをクリックしてください。
個人情報の取り扱いについて
皆さまが送付された個人情報はアットホーム(株)のサーバを経由し、お問い合わせ先の不動産会社にメールまたはFAXにて転送されるためアットホーム(株)にも保管されます。アットホーム(株)で保管された個人情報の取り扱いについては、【こちら】をご覧ください。
また、本画面でご記入いただいた個人情報は、お問い合わせ先の不動産会社でも保管します。 お問い合わせ先の不動産会社が保管する個人情報の取り扱いについては、不動産会社に直接お問い合わせください。
国土交通大臣免許(1)第10487号 |
|---|
- 交通:
- 地下鉄谷町線/谷町四丁目駅 徒歩1分
- 大阪府大阪市中央区谷町3丁目2-2 セブン谷4ビル5階
- TEL:
- 06-4301-4418
- FAX:
- 06-4301-4419
- 所属団体:
- (公社)全日本不動産協会会員(公社)近畿地区不動産公正取引協議会加盟
取引態様:売主  - 50106230
|
- スマートフォンで
この不動産会社を見る

|
- 提携サイト等より掲載されている物件情報につきましては、不動産会社詳細情報にリンクされていないものがあります。
- 物件に関するお問合せは、物件詳細ページの「情報提供会社」に表示されている不動産会社へ直接お願いいたします。
- 間取図は、現況を優先させていただきます。
- 映像は物件の一部を撮影したものです。物件の契約にあたっての最終判断はご自身の判断に基づいて行ってください。
- 仲介手数料について

アットホームは物件情報の適正化に努めております。
内容に誤りがある場合にはこちらへご連絡ください。