大分県大分市明野南2丁目の中古マンション・新築マンション・分譲マンション:物件詳細
交通 所在地 |
駅徒歩 |
価格 |
構造 階建/階 |
間取り 専有面積 |
物件種目 築年月 |
|
【バス】明野中学校 停歩5分
大分県大分市明野南2丁目
|
-
|
2,980万円
|
SRC
13階建 / 5階
|
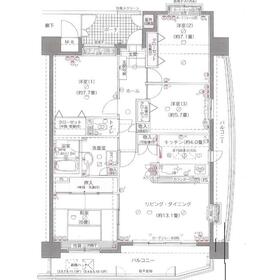
4LDK
96.86m²
|
中古マンション
2001年1月(築24年10ヶ月)
|
|
駐車場2台分、角部屋、南向き、2面採光、閑静な住宅街、前面棟無、管理人日勤、高台
|
|
間取図
|
|
<
その他の画像
>
|
|
|
| 交通 | 【バス】 明野中学校 停歩5分 |
| 所在地 |
大分県大分市明野南2丁目
|
| 物件種目 |
中古マンション |
| 価格 |
2,980万円 |
平米単価 |
30.77万円 |
| 管理費等 |
5,600円 |
修繕積立金 |
7,130円 |
| 借地期間・地代(月額) |
- |
権利金 |
- |
| 敷金または保証金 |
- / - |
維持費等 |
町内会費:500円/月 |
| その他一時金 |
- |
|
|
| 間取り |
4LDK(和 6 洋 7.7・7.1・5.7 LDK 17.1) |
専有面積 |
96.86m²(壁芯) |
| 階建 / 階 |
13階建 / 5階 |
バルコニー |
24.30m² |
| 築年月 |
2001年1月(築24年10ヶ月)
|
建物構造 |
SRC |
| 駐車場 |
有 5,000円/月 |
総戸数 |
- |
| 駐輪場 |
有 |
バイク置き場 |
- |
| ペット |
-
|
|
|
| 土地権利 |
所有権 |
敷地面積 |
5,106.68m² |
| 管理形態/管理員の勤務形態 |
全部委託/日勤(大分エージェンシー株式会社) |
国土法届出 |
- |
| アピールポイント |
全面リフォーム済み!!(全室クロス張替え、リビング・キッチンのフローリング張替え、キッチン・トイレ新品交換済み、畳表替え・襖張替え済み、室内メンテナンス済み。)
明野中学校276m徒歩4分・明野西小学校507m徒歩7分・明野アクロスタウン・明野支所1152m徒歩15分と生活環境が整っています!!
家庭用サウナ付!!総戸数は61部屋のマンションで、日鉄ライフ(現日鉄興和不動産)が新日鉄ブランドとして分譲販売をしました!!大規模修繕工事2017年に終了しているので安心です!! |
| 建物名・部屋番号 |
ライフヒルズ明野五番館 |
| リフォーム履歴 |
■水回り:2025年9月 キッチン、トイレ ■内装:2025年9月 全室クロス張替え、床(フローリング等) 畳表替え、襖張替済 ※実施年月は最も古い履歴を表示 |
| リノベーション履歴 |
- |
| 瑕疵保証 |
- |
| 瑕疵保険 |
- |
| 評価・証明書 |
- |
| 備考 |
主要採光面:南向き
用途地域:1種中高
2台目駐車場有り(5000円)、3台目は近隣駐車場有り(3500円)
|
| エネルギー消費性能 |
- |
| 断熱性能 |
- |
| 目安光熱費 |
- |
| バス・トイレ |
サウナ、浴室乾燥機、オートバス、追焚機能、シャワー付洗面化粧台 |
| キッチン |
食器洗浄乾燥機、IHクッキングヒーター、3口以上コンロ、グリル |
| 設備・サービス |
モニター付オートロック、全居室収納、全居室エアコン、エアコン2台以上、収納スペース、室内洗濯機置場、クローゼット、オートロック、モニター付インターホン、ディンプルキー、ダブルロックドア、給湯、出窓、アルコーブ、都市ガス、ウッドデッキ、二面バルコニー、駐輪場、フットライト、ダウンライト、間接照明、火災警報器(報知機) |
| その他 |
宅配BOX、エレベーター2基以上、来客用駐車場、エレベーター |
| 条件等 |
- |
現況 |
空家 |
| 引渡可能時期 |
即時 |
物件番号 |
6988136328 |
| 仲介手数料 |
売買代金の3.3%+6.6万円 |
|
|
| 情報公開日 |
2025年10月24日 |
次回更新予定日 |
2025年11月7日 |
| ケータイ用バーコード |
- スマートフォンでこの物件を見る
- スマートフォンからもこの物件をご覧になれます。
|
※「-」と表示されている項目については、情報提供会社にご確認ください。
| 周辺施設 |
医療法人社団唱和会明野中央病院 |
| 距離 |
1061m |
ここから簡単にお問い合わせをすることができます。
(SSLでの暗号化での送信を希望されるお客さまは
こちら
よりお問い合わせください)
お問い合わせを行う前に
「個人情報の取り扱いについて」を必ずお読みください。
「個人情報の取り扱いについて」に同意いただいた場合は「上記にご同意の上 確認画面へ進む」のボタンをクリックしてください。
個人情報の取り扱いについて
皆さまが送付された個人情報はアットホーム(株)のサーバを経由し、お問い合わせ先の不動産会社にメールまたはFAXにて転送されるためアットホーム(株)にも保管されます。アットホーム(株)で保管された個人情報の取り扱いについては、【こちら】をご覧ください。
また、本画面でご記入いただいた個人情報は、お問い合わせ先の不動産会社でも保管します。 お問い合わせ先の不動産会社が保管する個人情報の取り扱いについては、不動産会社に直接お問い合わせください。
大分県知事免許(5)第2750号 |
|---|
- 交通:
- JR日豊本線/高城駅 【バス】 法勝台2丁目 停歩2分
- 大分県大分市法勝台1丁目1-13
- TEL:
- 097-558-9097
- FAX:
- 097-552-5388
- 所属団体:
- (公社)大分県宅地建物取引業協会会員(一社)九州不動産公正取引協議会加盟
取引態様:専任媒介  - 80401373
|
- スマートフォンで
この不動産会社を見る

|
- 提携サイト等より掲載されている物件情報につきましては、不動産会社詳細情報にリンクされていないものがあります。
- 物件に関するお問合せは、物件詳細ページの「情報提供会社」に表示されている不動産会社へ直接お願いいたします。
- 間取図は、現況を優先させていただきます。
- 映像は物件の一部を撮影したものです。物件の契約にあたっての最終判断はご自身の判断に基づいて行ってください。
- 仲介手数料について

アットホームは物件情報の適正化に努めております。
内容に誤りがある場合にはこちらへご連絡ください。