宮崎県宮崎市太田1丁目の中古マンション・新築マンション・分譲マンション:物件詳細
交通 所在地 |
駅徒歩 |
価格 |
構造 階建/階 |
間取り 専有面積 |
物件種目 築年月 |
|
【バス】南詰バス停 停歩5分
宮崎県宮崎市太田1丁目
|
-
|
2,450万円
|
SRC
14階建 / 12階
|
4LDK
88.55m²
|
中古マンション
2008年10月(築17年3ヶ月)
|
|
常時ゴミ出し可能、駐車場2台分、角部屋、バス1坪以上、2面採光、24時間換気システム、閑静な住宅街、外観タイル張り、前面棟無、隣接建物距離2m以上、管理人日勤
|
|
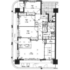
間取図
|
|
<
その他の画像
>
|
| 交通 | 【バス】 南詰バス停 停歩5分 |
| 所在地 |
宮崎県宮崎市太田1丁目
|
| 物件種目 |
中古マンション |
| 価格 |
2,450万円 |
平米単価 |
27.67万円 |
| 管理費等 |
6,000円 |
修繕積立金 |
4,700円 |
| 借地期間・地代(月額) |
- |
権利金 |
- |
| 敷金または保証金 |
- / - |
維持費等 |
- |
| その他一時金 |
- |
|
|
| 間取り |
4LDK(和 6 洋 6・5.4・6.4) |
専有面積 |
88.55m²(壁芯) |
| 階建 / 階 |
14階建 / 12階 |
バルコニー |
34.01m² |
| 築年月 |
2008年10月(築17年3ヶ月)
|
建物構造 |
SRC |
| 駐車場 |
有 11,000円/月 |
総戸数 |
83戸 |
| 駐輪場 |
有 無料 |
バイク置き場 |
有 無料 |
| ペット |
-
|
|
|
| 土地権利 |
所有権 |
敷地面積 |
2,061.82m² |
| 管理形態/管理員の勤務形態 |
全部委託/日勤(合人社計画研究所) |
国土法届出 |
- |
| 建物名・部屋番号 |
グランドパレス大淀Ⅱ |
| リフォーム履歴 |
- |
| リノベーション履歴 |
- |
| 瑕疵保証 |
- |
| 瑕疵保険 |
- |
| 評価・証明書 |
- |
| 備考 |
主要採光面:南東向き
用途地域:商業地域
|
| エネルギー消費性能 |
- |
| 断熱性能 |
- |
| 目安光熱費 |
- |
| バス・トイレ |
浴室乾燥機、追焚機能、シャワー付洗面化粧台、温水洗浄便座 |
| キッチン |
3口以上コンロ |
| 設備・サービス |
全居室収納、バイク置き場、室内洗濯機置場、シューズインクローゼット、オートロック、洗濯機置場、給湯、駐輪場、火災警報器(報知機)、インターネット対応、複層ガラス |
| その他 |
宅配BOX、エレベーター2基以上、車寄せスペース、エレベーター |
| 条件等 |
- |
現況 |
空家 |
| 引渡可能時期 |
相談 |
物件番号 |
6988164748 |
| 仲介手数料 |
79.5万円 |
|
|
| 情報公開日 |
2025年10月27日 |
次回更新予定日 |
2026年1月4日 |
| ケータイ用バーコード |
- スマートフォンでこの物件を見る
- スマートフォンからもこの物件をご覧になれます。
|
※「-」と表示されている項目については、情報提供会社にご確認ください。
| 周辺施設 |
ファミリーマート大淀二丁目店 |
| 距離 |
376m |
| 周辺施設 |
セブンイレブン宮崎中村東2丁目店 |
| 距離 |
638m |
| 周辺施設 |
ディスカウントドラッグコスモス大淀店 |
| 距離 |
346m |
| 周辺施設 |
特定医療法人耕和会迫田病院 |
| 距離 |
1170m |
ここから簡単にお問い合わせをすることができます。
(SSLでの暗号化での送信を希望されるお客さまは
こちら
よりお問い合わせください)
お問い合わせを行う前に
「個人情報の取り扱いについて」を必ずお読みください。
「個人情報の取り扱いについて」に同意いただいた場合は「上記にご同意の上 確認画面へ進む」のボタンをクリックしてください。
個人情報の取り扱いについて
皆さまが送付された個人情報はアットホーム(株)のサーバを経由し、お問い合わせ先の不動産会社にメールまたはFAXにて転送されるためアットホーム(株)にも保管されます。アットホーム(株)で保管された個人情報の取り扱いについては、【こちら】をご覧ください。
また、本画面でご記入いただいた個人情報は、お問い合わせ先の不動産会社でも保管します。 お問い合わせ先の不動産会社が保管する個人情報の取り扱いについては、不動産会社に直接お問い合わせください。
宮崎県知事免許(2)第4818号 |
|---|
- 交通:
- 【バス】 中村2丁目バス停
- 宮崎県宮崎市中村西3丁目1-7 成松マンション101
- TEL:
- 0985-65-5331
- FAX:
- 0985-65-5276
- 所属団体:
- (一社)宮崎県宅地建物取引業協会会員(一社)九州不動産公正取引協議会加盟
取引態様:一般媒介  - 80503405
|
- スマートフォンで
この不動産会社を見る

|
- 提携サイト等より掲載されている物件情報につきましては、不動産会社詳細情報にリンクされていないものがあります。
- 物件に関するお問合せは、物件詳細ページの「情報提供会社」に表示されている不動産会社へ直接お願いいたします。
- 間取図は、現況を優先させていただきます。
- 映像は物件の一部を撮影したものです。物件の契約にあたっての最終判断はご自身の判断に基づいて行ってください。
- 仲介手数料について

アットホームは物件情報の適正化に努めております。
内容に誤りがある場合にはこちらへご連絡ください。