熊本県熊本市中央区草葉町(水道町駅)の中古マンション・新築マンション・分譲マンション:物件詳細
交通 所在地 |
駅徒歩 |
価格 |
構造 階建/階 |
間取り 専有面積 |
物件種目 築年月 |
|
熊本市電健軍線/水道町
熊本県熊本市中央区草葉町
|
7分
|
1,780万円
|
鉄骨造
8階建 / 5階
|
1LDK
53.42m²
|
中古マンション
1977年8月(築48年5ヶ月)
|
|
ペット相談、角部屋、南向き、全室2面採光、2面採光、管理人巡回
|
|
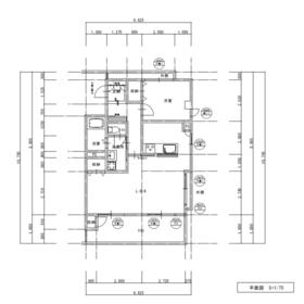
間取図
約20帖の広々LDK。窓も多く明るく開放的♪
|
外観
白を基調に爽やかな青を差し色に用いたレトロでお洒落な外観。
|
<
その他の画像
>
|
| 交通 | 熊本市電健軍線 水道町駅 徒歩7分 |
|---|
| その他の交通 | 熊本電気鉄道 藤崎宮前駅 徒歩5分 |
| 所在地 |
熊本県熊本市中央区草葉町
|
| 物件種目 |
中古マンション |
| 価格 |
1,780万円 |
平米単価 |
33.33万円 |
| 管理費等 |
9,900円 |
修繕積立金 |
10,420円 |
| 借地期間・地代(月額) |
- |
権利金 |
- |
| 敷金または保証金 |
- / - |
維持費等 |
- |
| その他一時金 |
- |
|
|
| 間取り |
1LDK(洋 5 LDK 19.6) |
専有面積 |
53.42m²(内法) |
| 階建 / 階 |
8階建 / 5階 |
バルコニー |
11.30m² |
| 築年月 |
1977年8月(築48年5ヶ月)
|
建物構造 |
鉄骨造 |
| 駐車場 |
無 |
総戸数 |
18戸 |
| 駐輪場 |
- |
バイク置き場 |
無 |
| ペット |
小型犬可・ 猫可・ 管理規約の範囲内 |
|
|
| 土地権利 |
所有権 |
敷地面積 |
407.23m² |
| 管理形態/管理員の勤務形態 |
全部委託/巡回(ランドメンテナンス㈱) |
国土法届出 |
- |
| アピールポイント |
2025年11月リノベーション完成です。
ペットの飼育可能♪(管理規約の範囲内) |
| 建物名・部屋番号 |
エトワール草葉 503 |
| リフォーム履歴 |
- |
| リノベーション履歴 |
2025年11月 リノベーション工事:壁・床・天井造り替え、住宅設備入替え(浴室扉と浴槽は既存を利用) ※実施年月は最も古い履歴を表示 |
| 瑕疵保証 |
- |
| 瑕疵保険 |
- |
| 評価・証明書 |
- |
| 備考 |
主要採光面:南向き
用途地域:商業地域
|
| エネルギー消費性能 |
- |
| 断熱性能 |
- |
| 目安光熱費 |
- |
| バス・トイレ |
浴室乾燥機、オートバス、温水洗浄便座 |
| キッチン |
カウンターキッチン、システムキッチン、3口以上コンロ |
| 設備・サービス |
全居室収納、収納スペース、室内洗濯機置場、モニター付インターホン、全居室フローリング、都市ガス、人感センサー付照明、ダウンライト、火災警報器(報知機) |
| その他 |
- |
| 条件等 |
- |
現況 |
空家 |
| 引渡可能時期 |
即時 |
物件番号 |
6988180989 |
| 仲介手数料 |
売買代金の3.3%+6.6万円 |
|
|
| 情報公開日 |
2025年11月10日 |
次回更新予定日 |
2026年1月1日 |
| ケータイ用バーコード |
- スマートフォンでこの物件を見る
- スマートフォンからもこの物件をご覧になれます。
|
※「-」と表示されている項目については、情報提供会社にご確認ください。
| 周辺施設 |
熊本市電「水道町」駅 |
| 距離 |
560m |
写真を見る |
| 周辺施設 |
鶴屋デパート |
| 距離 |
640m |
写真を見る |
| 周辺施設 |
人気の上乃裏通り |
| 距離 |
70m |
写真を見る |
| 周辺施設 |
上通り商店街 |
| 距離 |
180m |
写真を見る |
| 周辺施設 |
ファミリーマート |
| 距離 |
70m |
写真を見る |
ここから簡単にお問い合わせをすることができます。
(SSLでの暗号化での送信を希望されるお客さまは
こちら
よりお問い合わせください)
お問い合わせを行う前に
「個人情報の取り扱いについて」を必ずお読みください。
「個人情報の取り扱いについて」に同意いただいた場合は「上記にご同意の上 確認画面へ進む」のボタンをクリックしてください。
個人情報の取り扱いについて
皆さまが送付された個人情報はアットホーム(株)のサーバを経由し、お問い合わせ先の不動産会社にメールまたはFAXにて転送されるためアットホーム(株)にも保管されます。アットホーム(株)で保管された個人情報の取り扱いについては、【こちら】をご覧ください。
また、本画面でご記入いただいた個人情報は、お問い合わせ先の不動産会社でも保管します。 お問い合わせ先の不動産会社が保管する個人情報の取り扱いについては、不動産会社に直接お問い合わせください。
国土交通大臣免許(4)第7912号 |
|---|
- 交通:
- 熊本電気鉄道/御代志駅
- 熊本県合志市御代志1661-1 ルーロ合志110号
- TEL:
- 096-337-8015
- 所属団体:
- (公社)熊本県宅地建物取引業協会会員(一社)九州不動産公正取引協議会加盟
取引態様:専任媒介  - 80508166
|
- スマートフォンで
この不動産会社を見る

|
- 提携サイト等より掲載されている物件情報につきましては、不動産会社詳細情報にリンクされていないものがあります。
- 物件に関するお問合せは、物件詳細ページの「情報提供会社」に表示されている不動産会社へ直接お願いいたします。
- 間取図は、現況を優先させていただきます。
- 映像は物件の一部を撮影したものです。物件の契約にあたっての最終判断はご自身の判断に基づいて行ってください。
- 仲介手数料について

アットホームは物件情報の適正化に努めております。
内容に誤りがある場合にはこちらへご連絡ください。