東京都台東区松が谷4丁目(入谷駅)の中古マンション・新築マンション・分譲マンション:物件詳細
交通 所在地 |
駅徒歩 |
価格 |
構造 階建/階 |
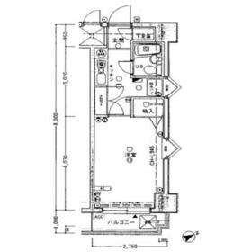
間取り 専有面積 |
物件種目 築年月 |
|
東京メトロ日比谷線/入谷
東京都台東区松が谷4丁目
|
7分
|
1,600万円
|
SRC
12階建 / 8階
|
1K
22.00m²
|
中古マンション
オーナーチェンジ
1990年1月(築35年11ヶ月)
|
|
角部屋、外観タイル張り、管理人巡回
|
|
間取図
|
外観
|
その他の画像
|
| 交通 | 東京メトロ日比谷線 入谷駅 徒歩7分 |
|---|
| その他の交通 | JR山手線 鶯谷駅 徒歩14分 東京メトロ銀座線 田原町駅 徒歩15分 |
| 所在地 |
東京都台東区松が谷4丁目
|
| 物件種目 |
中古マンション |
| 価格 |
1,600万円 |
平米単価 |
72.73万円 |
| 管理費等 |
9,167円 |
修繕積立金 |
5,533円 |
| 借地期間・地代(月額) |
- |
権利金 |
- |
| 敷金または保証金 |
- / - |
維持費等 |
- |
| その他一時金 |
- |
|
|
| 間取り |
1K |
専有面積 |
22.00m²(壁芯) |
| 階建 / 階 |
12階建 / 8階 |
バルコニー |
2.36m² |
| 築年月 |
1990年1月(築35年11ヶ月)
|
建物構造 |
SRC |
| 駐車場 |
- |
総戸数 |
58戸 |
| 駐輪場 |
- |
バイク置き場 |
- |
| ペット |
-
|
|
|
| 土地権利 |
所有権 |
敷地面積 |
- |
| 管理形態/管理員の勤務形態 |
全部委託/巡回(メンテックカンザイ) |
国土法届出 |
- |
| アピールポイント |
◇弊社が選ばれる理由◇
投資用専門で20年。豊富な経験とデータによるアプローチでお客様一人ひとりの大切な資産
の安定した運用を追求し、信頼されるパートナーとしてお客様をサポートしてきました。
他所の営業担当だと知識不足で頼りないなと感じたらぜひ当社へお問い合わせください。
◇業界トップクラスの提携金融機関例◇
提携金融機関は業界トップレベルで他社にはない金利プランやサービスを幅広くご提案できるのが当社の強みです。
(物件やお客様の属性によりご利用できない場合もございます)
A銀行:金利1.82% 諸費用ローンあり フルローン可能
B銀行:金利1.87% 諸費用ローンあり ガン50%団信付き 84歳まで借り入れ可能
C銀行:金利1.81% 50歳以上でもガン団信付き選べます
D銀行:金利2.35% 団信無 借入が多い方にお勧め
◇物件おすすめポイント◇
・オートロック
・エレベーター
・防犯カメラ
・3駅3路線利用可 |
| 建物名・部屋番号 |
フローラル上野松が谷 |
| リフォーム履歴 |
- |
| リノベーション履歴 |
- |
| 瑕疵保証 |
- |
| 瑕疵保険 |
- |
| 評価・証明書 |
- |
| 備考 |
主要採光面:南東向き
用途地域:商業地域
利回り:5.25%
年間予定賃料収入:84万円
|
| エネルギー消費性能 |
- |
| 断熱性能 |
- |
| 目安光熱費 |
- |
| バス・トイレ |
- |
| キッチン |
- |
| 設備・サービス |
収納スペース、室内洗濯機置場、クローゼット、オートロック、エアコン、照明器具 |
| その他 |
エレベーター |
| 条件等 |
オーナーチェンジ |
現況 |
賃貸中 |
| 引渡可能時期 |
相談 |
物件番号 |
6988204481 |
| 情報公開日 |
2025年10月30日 |
次回更新予定日 |
2025年11月13日 |
| ケータイ用バーコード |
- スマートフォンでこの物件を見る
- スマートフォンからもこの物件をご覧になれます。
|
※「-」と表示されている項目については、情報提供会社にご確認ください。
| 周辺施設 |
まいばすけっと入谷2丁目店 |
| 距離 |
192m |
| 周辺施設 |
ファミリーマート入谷二丁目店 |
| 距離 |
183m |
| 周辺施設 |
キッチンオリジンかっぱ橋店 |
| 距離 |
134m |
| 周辺施設 |
私立第一工業大学東京上野キャンパス |
| 距離 |
1326m |
ここから簡単にお問い合わせをすることができます。
(SSLでの暗号化での送信を希望されるお客さまは
こちら
よりお問い合わせください)
お問い合わせを行う前に
「個人情報の取り扱いについて」を必ずお読みください。
「個人情報の取り扱いについて」に同意いただいた場合は「上記にご同意の上 確認画面へ進む」のボタンをクリックしてください。
個人情報の取り扱いについて
皆さまが送付された個人情報はアットホーム(株)のサーバを経由し、お問い合わせ先の不動産会社にメールまたはFAXにて転送されるためアットホーム(株)にも保管されます。アットホーム(株)で保管された個人情報の取り扱いについては、【こちら】をご覧ください。
また、本画面でご記入いただいた個人情報は、お問い合わせ先の不動産会社でも保管します。 お問い合わせ先の不動産会社が保管する個人情報の取り扱いについては、不動産会社に直接お問い合わせください。
東京都知事免許(5)第83880号 |
|---|
- 交通:
- JR山手線/池袋駅 徒歩8分
- 東京都豊島区池袋2丁目68-12 池袋グランディアビル6階
- TEL:
- 03-5911-3600
- FAX:
- 03-5911-3605
- 所属団体:
- (公社)全日本不動産協会会員不動産公正取引協議会加盟
取引態様:媒介  - 00532189
|
- スマートフォンで
この不動産会社を見る

|
- 提携サイト等より掲載されている物件情報につきましては、不動産会社詳細情報にリンクされていないものがあります。
- 物件に関するお問合せは、物件詳細ページの「情報提供会社」に表示されている不動産会社へ直接お願いいたします。
- 間取図は、現況を優先させていただきます。
- 映像は物件の一部を撮影したものです。物件の契約にあたっての最終判断はご自身の判断に基づいて行ってください。
- 仲介手数料について

アットホームは物件情報の適正化に努めております。
内容に誤りがある場合にはこちらへご連絡ください。