東京都江東区東雲1丁目(豊洲駅)の中古マンション・新築マンション・分譲マンション:物件詳細
交通 所在地 |
駅徒歩 |
価格 |
構造 階建/階 |
間取り 専有面積 |
物件種目 築年月 |
|
新交通ゆりかもめ/豊洲
東京都江東区東雲1丁目
|
11分
|
13,500万円
|
SRC
地上52階地下2階建 / 42階
|
3LDK
75.01m²
|
中古マンション
2012年12月(築13年1ヶ月)
|
|
ペット相談、常時ゴミ出し可能、南向き、管理人日勤
|
| 交通 | 新交通ゆりかもめ 豊洲駅 徒歩11分 |
|---|
| その他の交通 | 東京メトロ有楽町線 辰巳駅 徒歩11分 りんかい線 東雲駅 徒歩15分 |
| 所在地 |
東京都江東区東雲1丁目
|
| 物件種目 |
中古マンション |
| 価格 |
13,500万円 |
平米単価 |
179.98万円 |
| 管理費等 |
18,040円 |
修繕積立金 |
11,432円 |
| 借地期間・地代(月額) |
- |
権利金 |
- |
| 敷金または保証金 |
- / - |
維持費等 |
団地管理費:1,335円/月、団地修繕積立金:360円/月、共視聴施設使用料:275円/月、コミュニティ形成費:300円/月 |
| その他一時金 |
- |
|
|
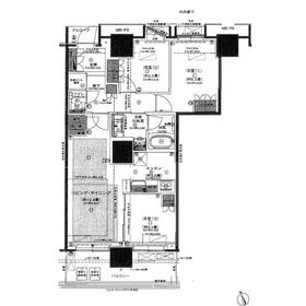
| 間取り |
3LDK(洋 6.5・5・5) |
専有面積 |
75.01m²(壁芯) |
| 階建 / 階 |
地上52階地下2階建 / 42階 |
バルコニー |
11.15m² |
| 築年月 |
2012年12月(築13年1ヶ月)
|
建物構造 |
SRC |
| 駐車場 |
- |
総戸数 |
601戸 |
| 駐輪場 |
- |
バイク置き場 |
- |
| ペット |
相談 |
|
|
| 土地権利 |
所有権 |
敷地面積 |
- |
| 管理形態/管理員の勤務形態 |
全部委託/日勤(合人社計画研究所) |
国土法届出 |
- |
| アピールポイント |
■最寄駅の豊洲駅からは、都会へのアクセスのよさが魅力的
■万が一の災害に備えるために、1階と地下2階に大型の防災倉庫をご用意
■東京都マンション環境性能表示オール星3つ獲得で、エコな暮らしを実現
■水のトラブルやガラスのトラブルなど、居住者の「困った」に24時間365日対応
■防火センターを拠点とする、24時間管理・警備体制で居住者の安全を守ります |
| 建物名・部屋番号 |
プラウドタワー東雲キャナルコート |
| リフォーム履歴 |
- |
| リノベーション履歴 |
- |
| 瑕疵保証 |
- |
| 瑕疵保険 |
- |
| 評価・証明書 |
- |
| 備考 |
主要採光面:南向き
|
| エネルギー消費性能 |
- |
| 断熱性能 |
- |
| 目安光熱費 |
- |
| バス・トイレ |
浴室暖房、浴室乾燥機、オートバス、追焚機能、温水洗浄便座 |
| キッチン |
システムキッチン、食器洗浄乾燥機、浄水器、ディスポーザー、IHクッキングヒーター |
| 設備・サービス |
モニター付オートロック、全居室収納、床暖房、収納スペース、室内洗濯機置場、モニター付インターホン、ダブルロックドア、省エネ給湯器、インターネット対応、光ファイバー、ケーブルTV、CS、BS端子 |
| その他 |
宅配BOX、エレベーター2基以上 |
| 条件等 |
- |
現況 |
所有者居住中 |
| 引渡可能時期 |
相談 |
物件番号 |
6988256793 |
| 仲介手数料 |
売買代金の3%+6万円 |
|
|
| 情報公開日 |
2025年11月4日 |
次回更新予定日 |
2026年1月1日 |
| ケータイ用バーコード |
- スマートフォンでこの物件を見る
- スマートフォンからもこの物件をご覧になれます。
|
※「-」と表示されている項目については、情報提供会社にご確認ください。
ここから簡単にお問い合わせをすることができます。
(SSLでの暗号化での送信を希望されるお客さまは
こちら
よりお問い合わせください)
お問い合わせを行う前に
「個人情報の取り扱いについて」を必ずお読みください。
「個人情報の取り扱いについて」に同意いただいた場合は「上記にご同意の上 確認画面へ進む」のボタンをクリックしてください。
個人情報の取り扱いについて
皆さまが送付された個人情報はアットホーム(株)のサーバを経由し、お問い合わせ先の不動産会社にメールまたはFAXにて転送されるためアットホーム(株)にも保管されます。アットホーム(株)で保管された個人情報の取り扱いについては、【こちら】をご覧ください。
また、本画面でご記入いただいた個人情報は、お問い合わせ先の不動産会社でも保管します。 お問い合わせ先の不動産会社が保管する個人情報の取り扱いについては、不動産会社に直接お問い合わせください。
東京都知事免許(2)第99352号 |
|---|
- 交通:
- 東京メトロ銀座線/末広町駅 徒歩3分
- 東京都千代田区外神田6丁目6-1 斉藤ビル5階
- TEL:
- 03-5834-3068
- FAX:
- 03-5834-3069
- 所属団体:
- (公社)東京都宅地建物取引業協会会員(公社)首都圏不動産公正取引協議会加盟
取引態様:一般媒介  - 00269121
|
- スマートフォンで
この不動産会社を見る

|
- 提携サイト等より掲載されている物件情報につきましては、不動産会社詳細情報にリンクされていないものがあります。
- 物件に関するお問合せは、物件詳細ページの「情報提供会社」に表示されている不動産会社へ直接お願いいたします。
- 間取図は、現況を優先させていただきます。
- 映像は物件の一部を撮影したものです。物件の契約にあたっての最終判断はご自身の判断に基づいて行ってください。
- 仲介手数料について

アットホームは物件情報の適正化に努めております。
内容に誤りがある場合にはこちらへご連絡ください。