不動産 賃貸 マンション等の住宅情報:埼玉住まい情報


東京都新宿区高田馬場4丁目(高田馬場駅)の中古マンション・新築マンション・分譲マンション:物件詳細

  • 物件詳細
  • 情報の見方
  • 印刷用画面
交通
所在地
駅徒歩 価格 構造
階建/階
間取り
専有面積
物件種目
築年月

東京メトロ東西線/高田馬場

東京都新宿区高田馬場4丁目

7分

13,780万円

RC

地上13階地下1階建 / 3階

2LDK

58.04m²

新築マンション

2025年5月
新築 

おすすめPOINT常時ゴミ出し可能、24時間セキュリティー、24時間換気システム、管理人日勤

おすすめコメント

鏡面保護シールが初々しい新築の建物、更に思わぬアクシデントから日々の暮らしを守る24時間セキュリティー採用で、万一の対応が素早い点も魅力です。

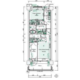
間取図

間取図

その他の画像
    • とりあえず保存
    • お問い合わせ
    交通

    東京メトロ東西線 高田馬場駅 徒歩7分

    その他の交通

    JR山手線 高田馬場駅 徒歩7分

    西武新宿線 高田馬場駅 徒歩8分

    所在地 東京都新宿区高田馬場4丁目
    物件種目 新築マンション
    価格 13,780万円 平米単価 237.43万円
    管理費等 21,360円 修繕積立金 10,040円
    借地期間・地代(月額) 権利金
    敷金または保証金 - / - 維持費等
    その他一時金    
    間取り 2LDK 専有面積 58.04m²(壁芯)
    階建 / 階 地上13階地下1階建 / 3階 バルコニー 9.90m²
    築年月 2025年5月 新築  建物構造 RC
    駐車場 有 43,000円/月 総戸数 325戸
    駐輪場 バイク置き場
    ペット    
    土地権利 所有権 敷地面積
    管理形態/管理員の勤務形態 全部委託/日勤(三井不動産レジデンシャル) 国土法届出
    アピールポイント 鏡面保護シールが初々しい新築の建物、更に365日異変を監視する24時間セキュリティー採用で、万一の対応が素早い点も魅力です。また受け取りに心配なしの宅配BOX付で、その上生活環境から近い場所にあるメリットが大きい託児所完備だから、在宅勤務の時にも重宝します。ちなみに育児の味方キッズルーム有の住居です。家族が帰宅を焦がれる2LDK。実際の空間をご自身で体感ください。
    建物名・部屋番号  
    リフォーム履歴
    リノベーション履歴
    瑕疵保証
    瑕疵保険
    評価・証明書
    備考
    用途地域:商業地域、1種住居
    エネルギー消費性能
    断熱性能
    目安光熱費
    バス・トイレ 浴室暖房、浴室乾燥機、オートバス、シャワー付洗面化粧台、温水洗浄便座
    キッチン カウンターキッチン、システムキッチン、食器洗浄乾燥機、浄水器、ディスポーザー、3口以上コンロ
    設備・サービス モニター付オートロック、全居室収納、ウォークインクローゼット、床暖房、バイク置き場、収納スペース、室内洗濯機置場、オートロック、防犯用ガラス、給湯、都市ガス、駐輪場、火災警報器(報知機)、インターネット対応、複層ガラス
    その他 宅配BOX、託児所、キッズルーム、敷地内公園、エレベーター2基以上、共用ゲストルーム、共用パーティルーム、車寄せスペース、屋上庭園、各フロアゴミ捨て場所あり
    条件等 現況 空家
    引渡可能時期 相談 物件番号 6988257242
    情報公開日 2025年11月5日 次回更新予定日 2025年12月23日
    ケータイ用バーコード

    QRコード

    スマートフォンでこの物件を見る
    スマートフォンからもこの物件をご覧になれます。
    ※「-」と表示されている項目については、情報提供会社にご確認ください。

    クイックお問い合わせ

    ここから簡単にお問い合わせをすることができます。
    (SSLでの暗号化での送信を希望されるお客さまは こちら よりお問い合わせください)

    お問い合わせ内容(必須)
    お名前(必須) 姓  名 
    メールアドレス(必須)
    ※携帯電話のメールアドレスをご入力される方はこちらをご確認ください
    電話番号(必須)
    - -

    ※入力いただいた電話番号へSMSまたは音声でパスワードをご連絡します。

    携帯電話の番号をご入力の方へ

    携帯電話の番号をご入力の方へ
    確認画面にて送信ボタンをクリックするとSMSが携帯電話に届きます。
    そのSMSに記載のパスワード(認証番号)を入力し、お問い合わせを完了してください。
    尚、SMSの送信者番号は 0005 202 760 となります。
    これはアットホームの固定番号です。

    備考欄 希望条件、物件案内希望日、質問などがございましたらご記入ください。
    お問い合わせを行う前に「個人情報の取り扱いについて」を必ずお読みください。
    「個人情報の取り扱いについて」に同意いただいた場合は「上記にご同意の上 確認画面へ進む」のボタンをクリックしてください。

    個人情報の取り扱いについて

    皆さまが送付された個人情報はアットホーム(株)のサーバを経由し、お問い合わせ先の不動産会社にメールまたはFAXにて転送されるためアットホーム(株)にも保管されます。アットホーム(株)で保管された個人情報の取り扱いについては、【こちら】をご覧ください。
    また、本画面でご記入いただいた個人情報は、お問い合わせ先の不動産会社でも保管します。 お問い合わせ先の不動産会社が保管する個人情報の取り扱いについては、不動産会社に直接お問い合わせください。

    情報提供会社

    情報提供会社

    (株)スマートパートナーズ

    東京都知事免許(2)第101416号

    交通:
    東京メトロ有楽町線/新富町駅 徒歩3分
    東京都中央区銀座1丁目24-5 パークサイド銀座6階
    TEL:
    03-5579-9894
    FAX:
    03-6228-7931
    所属団体:
    (公社)全日本不動産協会会員
    (公社)首都圏不動産公正取引協議会加盟

    取引態様:一般媒介

    • 会社情報
    • 00275432
    スマートフォンで
    この不動産会社を見る
    QRコード
    • とりあえず保存
    • お問い合わせ
    • 提携サイト等より掲載されている物件情報につきましては、不動産会社詳細情報にリンクされていないものがあります。
    • 物件に関するお問合せは、物件詳細ページの「情報提供会社」に表示されている不動産会社へ直接お願いいたします。
    • 間取図は、現況を優先させていただきます。
    • 映像は物件の一部を撮影したものです。物件の契約にあたっての最終判断はご自身の判断に基づいて行ってください。
    • 仲介手数料について仲介手数料

    アットホームは物件情報の適正化に努めております。 内容に誤りがある場合にはこちらへご連絡ください。

    【埼玉住まい情報】では、日本全国の物件から賃貸マンションや賃貸アパート・賃貸一戸建て等の賃貸住宅情報、新築マンション・分譲マンションや中古マンション等の売買マンション情報、新築一戸建てや中古一戸建てなどの戸建住宅、 土地など、総合的な不動産住宅情報検索サービスを提供致します。
    【埼玉住まい情報】から、選りすぐりの不動産物件を探してみましょう。

    【免責事項】
    このコーナーの運営はアットホーム株式会社(https://www.athome.co.jp/)が行っています。
    このコーナーに掲載している物件情報は、「アットホーム不動産情報ネットワーク」に加盟する不動産会社等(情報提供元)から提供されています。信頼性の高い情報提供が行えるよう、最大限の努力をしておりますが、その内容を保証するものではありません。 利用者のみなさまと各情報提供元との取引に起因する損害および情報が掲載されたことに起因する損害等については、株式会社イーシティ埼玉、およびアットホームは一切責任を負いません。
    各物件情報の内容や画像等はすべて現況を優先させていただきます。
    お取引等(お取引の準備、資金調達等を含みます)の際には、内容や契約条件等について、各情報提供元より十分な説明を受け、ご自身でご確認の上、判断してください。
    このコーナーへの物件情報のご掲載、その他不動産業務ソリューション等についての不動産会社様のお問合せはこちらからお願いいたします。

    物件画像: