東京都港区芝浦4丁目(田町駅)の中古マンション・新築マンション・分譲マンション:物件詳細
交通 所在地 |
駅徒歩 |
価格 |
構造 階建/階 |
間取り 専有面積 |
物件種目 築年月 |
|
JR山手線/田町
東京都港区芝浦4丁目
|
15分
|
26,500万円
|
RC
地上48階地下1階建 / 25階
|
2LDK
104.60m²
|
中古マンション
2006年10月(築19年3ヶ月)
|
|
ペット相談、楽器相談、フロントサービス、クリーニングサービス、常時ゴミ出し可能、角部屋、南向き、24時間セキュリティー、ハイサッシ採用、天井高2.5M以上、逆梁工法、二重床・二重天井、アウトフレーム工法、ノンホルムアルデヒド、2面採光、24時間換気システム、外観タイル張り、前面棟無、隣接建物距離2m以上、管理人常駐
|
|
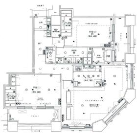
間取図
|
外観
|
<
その他の画像
>
|
| 交通 | JR山手線 田町駅 徒歩15分 |
|---|
| その他の交通 | JR京浜東北線 高輪ゲートウェイ駅 徒歩26分 新交通ゆりかもめ 芝浦ふ頭駅 徒歩13分 |
| 所在地 |
東京都港区芝浦4丁目
|
| 物件種目 |
中古マンション |
| 価格 |
26,500万円 |
平米単価 |
253.35万円 |
| 管理費等 |
25,420円 |
修繕積立金 |
25,420円 |
| 借地期間・地代(月額) |
- |
権利金 |
- |
| 敷金または保証金 |
- / - |
維持費等 |
- |
| その他一時金 |
- |
|
|
| 間取り |
2LDK(洋 9.8・8.4 LDK 24.4) |
専有面積 |
104.60m²(壁芯) |
| 階建 / 階 |
地上48階地下1階建 / 25階 |
バルコニー |
15.26m² |
| 築年月 |
2006年10月(築19年3ヶ月)
|
建物構造 |
RC |
| 駐車場 |
- |
総戸数 |
1,095戸 |
| 駐輪場 |
- |
バイク置き場 |
- |
| ペット |
小型犬可・ 猫可 |
|
|
| 土地権利 |
所有権 |
敷地面積 |
- |
| 管理形態/管理員の勤務形態 |
全部委託/常駐(三井不動産レジデンシャル) |
国土法届出 |
- |
| アピールポイント |
ゆったりとした2LDK!水回りはリクシル製品でリフォームしました! |
| 建物名・部屋番号 |
芝浦アイランドケープタワー |
| リフォーム履歴 |
■水回り:2017年9月 キッチン、浴室、トイレ、給湯器 ■内装:2017年9月 全室クロス張替え ※実施年月は最も古い履歴を表示 |
| リノベーション履歴 |
- |
| 瑕疵保証 |
- |
| 瑕疵保険 |
- |
| 評価・証明書 |
- |
| 備考 |
主要採光面:南向き
施工会社:鹿島建設
|
| エネルギー消費性能 |
- |
| 断熱性能 |
- |
| 目安光熱費 |
- |
| バス・トイレ |
浴室暖房、浴室乾燥機、オートバス、追焚機能、シャワー付洗面化粧台、温水洗浄便座、浴室に窓あり |
| キッチン |
アイランドキッチン、カウンターキッチン、オープンキッチン、システムキッチン、食器洗浄乾燥機、浄水器、2WAYキッチン、3口以上コンロ |
| 設備・サービス |
モニター付オートロック、全居室収納、ウォークインクローゼット、全居室エアコン、エアコン2台以上、床暖房、収納スペース、室内洗濯機置場、クローゼット、オートロック、モニター付インターホン、非接触型ICカードキー、ディンプルキー、ダブルロックドア、防犯カメラ、出窓、全居室フローリング、都市ガス、ビルトインエアコン、二面バルコニー、火災警報器(報知機)、インターネット対応、光ファイバー、ケーブルTV、CS、BS端子 |
| その他 |
宅配BOX、ペット用施設、キッズルーム、エレベーター2基以上、共用ゲストルーム、共用パーティルーム、内廊下、エレベーター、各フロアゴミ捨て場所あり |
| 条件等 |
- |
現況 |
所有者居住中 |
| 引渡可能時期 |
2026年1月下旬予定 |
物件番号 |
6988258933 |
| 仲介手数料 |
売買代金の3%+6万円 |
|
|
| 情報公開日 |
2025年11月4日 |
次回更新予定日 |
2025年12月30日 |
| ケータイ用バーコード |
- スマートフォンでこの物件を見る
- スマートフォンからもこの物件をご覧になれます。
|
※「-」と表示されている項目については、情報提供会社にご確認ください。
| 周辺施設 |
ピーコックストア芝浦アイランド店 |
| 距離 |
350m |
| 周辺施設 |
まいばすけっと芝浦3丁目店 |
| 距離 |
1015m |
| 周辺施設 |
ナチュラルローソン芝浦アイランドケープ店 |
| 距離 |
101m |
| 周辺施設 |
セブンイレブン港区海岸3丁目店 |
| 距離 |
315m |
| 周辺施設 |
ドラッグセイムス芝浦海岸通店 |
| 距離 |
574m |
ここから簡単にお問い合わせをすることができます。
(SSLでの暗号化での送信を希望されるお客さまは
こちら
よりお問い合わせください)
お問い合わせを行う前に
「個人情報の取り扱いについて」を必ずお読みください。
「個人情報の取り扱いについて」に同意いただいた場合は「上記にご同意の上 確認画面へ進む」のボタンをクリックしてください。
個人情報の取り扱いについて
皆さまが送付された個人情報はアットホーム(株)のサーバを経由し、お問い合わせ先の不動産会社にメールまたはFAXにて転送されるためアットホーム(株)にも保管されます。アットホーム(株)で保管された個人情報の取り扱いについては、【こちら】をご覧ください。
また、本画面でご記入いただいた個人情報は、お問い合わせ先の不動産会社でも保管します。 お問い合わせ先の不動産会社が保管する個人情報の取り扱いについては、不動産会社に直接お問い合わせください。
東京都知事免許(4)第90934号 |
|---|
- 交通:
- 東京メトロ日比谷線/築地駅 徒歩1分
- 東京都中央区築地3丁目10-9 ビジョナリービルⅡ5階
- TEL:
- 03-6264-2321
- FAX:
- 03-6264-2322
- 所属団体:
- (公社)東京都宅地建物取引業協会会員(一社)不動産競売流通協会会員(公社)首都圏不動産公正取引協議会加盟
取引態様:一般媒介  - 00103313
|
- スマートフォンで
この不動産会社を見る

|
- 提携サイト等より掲載されている物件情報につきましては、不動産会社詳細情報にリンクされていないものがあります。
- 物件に関するお問合せは、物件詳細ページの「情報提供会社」に表示されている不動産会社へ直接お願いいたします。
- 間取図は、現況を優先させていただきます。
- 映像は物件の一部を撮影したものです。物件の契約にあたっての最終判断はご自身の判断に基づいて行ってください。
- 仲介手数料について

アットホームは物件情報の適正化に努めております。
内容に誤りがある場合にはこちらへご連絡ください。