東京都新宿区新宿5丁目(新宿三丁目駅)の中古マンション・新築マンション・分譲マンション:物件詳細
交通 所在地 |
駅徒歩 |
価格 |
構造 階建/階 |
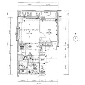
間取り 専有面積 |
物件種目 築年月 |
|
東京メトロ丸ノ内線/新宿三丁目
東京都新宿区新宿5丁目
|
3分
|
6,450万円
|
SRC
11階建 / 8階
|
1LDK
41.16m²
|
中古マンション
2001年1月(築24年11ヶ月)
|
|
ペット相談、角部屋、2面採光、管理人日勤
|
|
間取図
|
|
<
その他の画像
>
|
| 交通 | 東京メトロ丸ノ内線 新宿三丁目駅 徒歩3分 |
|---|
| その他の交通 | 都営大江戸線 東新宿駅 徒歩5分 JR山手線 新宿駅 徒歩10分 |
| 所在地 |
東京都新宿区新宿5丁目
|
| 物件種目 |
中古マンション |
| 価格 |
6,450万円 |
平米単価 |
156.71万円 |
| 管理費等 |
14,900円 |
修繕積立金 |
10,250円 |
| 借地期間・地代(月額) |
- |
権利金 |
- |
| 敷金または保証金 |
- / - |
維持費等 |
- |
| その他一時金 |
- |
|
|
| 間取り |
1LDK(洋 5.4 LDK 11.8) |
専有面積 |
41.16m²(壁芯) |
| 階建 / 階 |
11階建 / 8階 |
バルコニー |
6.18m² |
| 築年月 |
2001年1月(築24年11ヶ月)
|
建物構造 |
SRC |
| 駐車場 |
空無 |
総戸数 |
29戸 |
| 駐輪場 |
有 600円/月 |
バイク置き場 |
- |
| ペット |
相談 |
|
|
| 土地権利 |
所有権 |
敷地面積 |
267.76m² |
| 管理形態/管理員の勤務形態 |
全部委託/日勤(三井不動産レジデンシャル) |
国土法届出 |
- |
| アピールポイント |
都心の好立地な物件です!8階の角部屋で居室、キッチン、浴室に窓が付いてます♪キッチンはオープンカウンターで収納付き!ご希望があればお部屋の家具は無償でお譲りします。共用部は防犯対策のオートロック、忙しい日でも安心の24時間対応の宅配ロッカーがございます!マンション近くには新宿御苑があり、都心とは思えない豊かな自然は息抜きにピッタリです♪ |
| 建物名・部屋番号 |
エクセレント新宿文化センター通り 8F |
| リフォーム履歴 |
- |
| リノベーション履歴 |
- |
| 瑕疵保証 |
- |
| 瑕疵保険 |
- |
| 評価・証明書 |
- |
| 備考 |
主要採光面:北向き
施工会社:新日本建設株式会社
用途地域:商業地域
|
| エネルギー消費性能 |
- |
| 断熱性能 |
- |
| 目安光熱費 |
- |
| バス・トイレ |
浴室暖房、浴室乾燥機、オートバス、追焚機能、温水洗浄便座、浴室に窓あり |
| キッチン |
カウンターキッチン、オープンキッチン、システムキッチン、ディスポーザー、3口以上コンロ、グリル |
| 設備・サービス |
モニター付オートロック、全居室収納、全居室エアコン、エアコン2台以上、収納スペース、室内洗濯機置場、クローゼット、オートロック、モニター付インターホン、防犯カメラ、全居室フローリング、都市ガス、エアコン、駐輪場、ベッド |
| その他 |
宅配BOX、エレベーター |
| 条件等 |
- |
現況 |
空家 |
| 引渡可能時期 |
相談 |
物件番号 |
6988281611 |
| 情報公開日 |
2025年11月5日 |
次回更新予定日 |
2025年11月20日 |
| ケータイ用バーコード |
- スマートフォンでこの物件を見る
- スマートフォンからもこの物件をご覧になれます。
|
※「-」と表示されている項目については、情報提供会社にご確認ください。
| 周辺施設 |
まいばすけっと東新宿駅南店 |
| 距離 |
239m |
| 周辺施設 |
セブンイレブン新宿6丁目文化センター通り店 |
| 距離 |
87m |
| 周辺施設 |
ダイコクドラッグ新宿5丁目店 |
| 距離 |
142m |
ここから簡単にお問い合わせをすることができます。
(SSLでの暗号化での送信を希望されるお客さまは
こちら
よりお問い合わせください)
お問い合わせを行う前に
「個人情報の取り扱いについて」を必ずお読みください。
「個人情報の取り扱いについて」に同意いただいた場合は「上記にご同意の上 確認画面へ進む」のボタンをクリックしてください。
個人情報の取り扱いについて
皆さまが送付された個人情報はアットホーム(株)のサーバを経由し、お問い合わせ先の不動産会社にメールまたはFAXにて転送されるためアットホーム(株)にも保管されます。アットホーム(株)で保管された個人情報の取り扱いについては、【こちら】をご覧ください。
また、本画面でご記入いただいた個人情報は、お問い合わせ先の不動産会社でも保管します。 お問い合わせ先の不動産会社が保管する個人情報の取り扱いについては、不動産会社に直接お問い合わせください。
東京都知事免許(4)第88851号 |
|---|
- 交通:
- 都営浅草線/人形町駅 徒歩7分
- 東京都中央区日本橋浜町2丁目23-6 人形町不動産ビル
- TEL:
- 03-6228-1162
- FAX:
- 03-6228-1163
- 所属団体:
- (公社)全日本不動産協会会員(公社)首都圏不動産公正取引協議会加盟
取引態様:一般媒介  - 00018475
|
- スマートフォンで
この不動産会社を見る

|
- 提携サイト等より掲載されている物件情報につきましては、不動産会社詳細情報にリンクされていないものがあります。
- 物件に関するお問合せは、物件詳細ページの「情報提供会社」に表示されている不動産会社へ直接お願いいたします。
- 間取図は、現況を優先させていただきます。
- 映像は物件の一部を撮影したものです。物件の契約にあたっての最終判断はご自身の判断に基づいて行ってください。
- 仲介手数料について

アットホームは物件情報の適正化に努めております。
内容に誤りがある場合にはこちらへご連絡ください。