群馬県吾妻郡草津町大字草津(長野原草津口駅)の中古マンション・新築マンション・分譲マンション:物件詳細
交通 所在地 |
駅徒歩 |
価格 |
構造 階建/階 |
間取り 専有面積 |
物件種目 築年月 |
|
JR吾妻線/長野原草津口 [バス利用可] バス 30分 草津温泉バスターミナル 停歩9分
群馬県吾妻郡草津町大字草津
|
10000m
|
680万円
|
SRC
11階建 / 10階
|
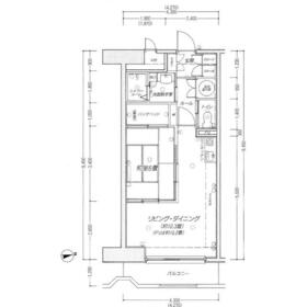
1LDK
40.63m²
|
中古マンション
賃貸中
1994年10月(築31年6ヶ月)
|
|
フロントサービス、管理人日勤
|
|
間取図
|
外観
|
その他の画像
|
| 交通 | JR吾妻線 長野原草津口駅 徒歩10000m [バス利用可] バス 30分 草津温泉バスターミナル 停歩9分 |
|---|
| その他の交通 | JR吾妻線 万座・鹿沢口駅 徒歩6400m |
| 所在地 |
群馬県吾妻郡草津町大字草津
|
| 物件種目 |
中古マンション |
| 価格 |
680万円 |
平米単価 |
16.74万円 |
| 管理費等 |
16,350円 |
修繕積立金 |
6,270円 |
| 借地期間・地代(月額) |
- |
権利金 |
- |
| 敷金または保証金 |
- / - |
維持費等 |
大浴場運営費:920円/月、上下水道料:1,300円/月、プール運営費:2,000円/月、組合費:1,000円/月 |
| その他一時金 |
- |
|
|
| 間取り |
1LDK(和 6 LDK 10.3) |
専有面積 |
40.63m²(壁芯) |
| 階建 / 階 |
11階建 / 10階 |
バルコニー |
4.99m² |
| 築年月 |
1994年10月(築31年6ヶ月)
|
建物構造 |
SRC |
| 駐車場 |
有 無料 |
総戸数 |
356戸 |
| 駐輪場 |
- |
バイク置き場 |
- |
| ペット |
-
|
|
|
| 土地権利 |
所有権 |
敷地面積 |
- |
| 管理形態/管理員の勤務形態 |
全部委託/日勤(三興管理株式会社) |
国土法届出 |
- |
| アピールポイント |
2階にレストランがあり便利です。 |
| 建物名・部屋番号 |
バーデンファミリエ草津 |
| リフォーム履歴 |
- |
| リノベーション履歴 |
- |
| 瑕疵保証 |
- |
| 瑕疵保険 |
- |
| 評価・証明書 |
- |
| 備考 |
主要採光面:東向き
施工会社:前田建設工業株式会社
用途地域:1種中高
温泉あり ■引込状況:引込み済(共同) ■利用形態:かけ流し 加温 加水
|
| エネルギー消費性能 |
- |
| 断熱性能 |
- |
| 目安光熱費 |
- |
| バス・トイレ |
- |
| キッチン |
- |
| 設備・サービス |
オートロック、火災警報器(報知機)、光ファイバー |
| その他 |
エレベーター |
| 条件等 |
- |
現況 |
賃貸中 |
| 引渡可能時期 |
相談 |
物件番号 |
6988307045 |
| 仲介手数料 |
33万円 |
|
|
| 情報公開日 |
2026年2月9日 |
次回更新予定日 |
2026年3月23日 |
| ケータイ用バーコード |
- スマートフォンでこの物件を見る
- スマートフォンからもこの物件をご覧になれます。
|
※「-」と表示されている項目については、情報提供会社にご確認ください。
ここから簡単にお問い合わせをすることができます。
(SSLでの暗号化での送信を希望されるお客さまは
こちら
よりお問い合わせください)
お問い合わせを行う前に
「個人情報の取り扱いについて」を必ずお読みください。
「個人情報の取り扱いについて」に同意いただいた場合は「上記にご同意の上 確認画面へ進む」のボタンをクリックしてください。
個人情報の取り扱いについて
皆さまが送付された個人情報はアットホーム(株)のサーバを経由し、お問い合わせ先の不動産会社にメールまたはFAXにて転送されるためアットホーム(株)にも保管されます。アットホーム(株)で保管された個人情報の取り扱いについては、【こちら】をご覧ください。
また、本画面でご記入いただいた個人情報は、お問い合わせ先の不動産会社でも保管します。 お問い合わせ先の不動産会社が保管する個人情報の取り扱いについては、不動産会社に直接お問い合わせください。
長野県知事免許(2)第5582号 |
|---|
- 交通:
- 北陸新幹線/軽井沢駅
- 長野県北佐久郡軽井沢町大字長倉2146番地13
- TEL:
- 0267-31-6139
- FAX:
- 0267-31-6138
- 所属団体:
- (公社)全日本不動産協会会員(一社)不動産協会会員(公社)首都圏不動産公正取引協議会加盟
取引態様:一般媒介  - 00265711
|
- スマートフォンで
この不動産会社を見る

|
- 提携サイト等より掲載されている物件情報につきましては、不動産会社詳細情報にリンクされていないものがあります。
- 物件に関するお問合せは、物件詳細ページの「情報提供会社」に表示されている不動産会社へ直接お願いいたします。
- 間取図は、現況を優先させていただきます。
- 映像は物件の一部を撮影したものです。物件の契約にあたっての最終判断はご自身の判断に基づいて行ってください。
- 仲介手数料について

アットホームは物件情報の適正化に努めております。
内容に誤りがある場合にはこちらへご連絡ください。