長崎県長崎市戸町1丁目の中古マンション・新築マンション・分譲マンション:物件詳細
交通 所在地 |
駅徒歩 |
価格 |
構造 階建/階 |
間取り 専有面積 |
物件種目 築年月 |
|
【バス】小菅公園 停歩3分
長崎県長崎市戸町1丁目
|
-
|
1,880万円
|
RC
12階建 / 9階
|
3LDK
63.51m²
|
中古マンション
2007年3月(築18年10ヶ月)
|
|
ペット相談、南向き、管理人日勤
|
|
間取図
|
外観
|
<
その他の画像
>
|
| 交通 | 【バス】 小菅公園 停歩3分 |
| 所在地 |
長崎県長崎市戸町1丁目
|
| 物件種目 |
中古マンション |
| 価格 |
1,880万円 |
平米単価 |
29.61万円 |
| 管理費等 |
10,000円 |
修繕積立金 |
10,850円 |
| 借地期間・地代(月額) |
- |
権利金 |
- |
| 敷金または保証金 |
- / - |
維持費等 |
- |
| その他一時金 |
- |
|
|
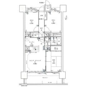
| 間取り |
3LDK(和 6 洋 6.3・5.1 LDK 12.2) |
専有面積 |
63.51m²(壁芯) |
| 階建 / 階 |
12階建 / 9階 |
バルコニー |
12.60m² |
| 築年月 |
2007年3月(築18年10ヶ月)
|
建物構造 |
RC |
| 駐車場 |
有 無料 |
総戸数 |
- |
| 駐輪場 |
有 無料 |
バイク置き場 |
有 無料 |
| ペット |
小型犬可 |
|
|
| 土地権利 |
所有権 |
敷地面積 |
- |
| 管理形態/管理員の勤務形態 |
全部委託/日勤 |
国土法届出 |
- |
| 建物名・部屋番号 |
|
| リフォーム履歴 |
■水回り:2022年3月 給湯器 1年前にビルトインコンロ取替 ※実施年月は最も古い履歴を表示 |
| リノベーション履歴 |
- |
| 瑕疵保証 |
- |
| 瑕疵保険 |
- |
| 評価・証明書 |
- |
| 備考 |
主要採光面:南向き
当該物件は9階部分でバルコニーの横側から女神大橋を眺めることもでき、また、玄関側からは長崎港の花火大会を見ることもできます。ペット(小型犬)も相談可能です。隣棟には利用可能な無人登録式販売店「フェイスマート」もあります。市内中心部にも車で10分程度です。
|
| エネルギー消費性能 |
- |
| 断熱性能 |
- |
| 目安光熱費 |
- |
| バス・トイレ |
浴室乾燥機、追焚機能 |
| キッチン |
カウンターキッチン、システムキッチン、3口以上コンロ |
| 設備・サービス |
モニター付オートロック、全居室収納、エアコン2台以上、バイク置き場、収納スペース、室内洗濯機置場、クローゼット、洗濯機置場、給湯、プロパンガス、駐輪場、照明器具、BS端子 |
| その他 |
エレベーター2基以上 |
| 条件等 |
- |
現況 |
空家 |
| 引渡可能時期 |
即時 |
物件番号 |
6988401097 |
| 情報公開日 |
2025年11月15日 |
次回更新予定日 |
2025年12月27日 |
| ケータイ用バーコード |
- スマートフォンでこの物件を見る
- スマートフォンからもこの物件をご覧になれます。
|
※「-」と表示されている項目については、情報提供会社にご確認ください。
ここから簡単にお問い合わせをすることができます。
(SSLでの暗号化での送信を希望されるお客さまは
こちら
よりお問い合わせください)
お問い合わせを行う前に
「個人情報の取り扱いについて」を必ずお読みください。
「個人情報の取り扱いについて」に同意いただいた場合は「上記にご同意の上 確認画面へ進む」のボタンをクリックしてください。
個人情報の取り扱いについて
皆さまが送付された個人情報はアットホーム(株)のサーバを経由し、お問い合わせ先の不動産会社にメールまたはFAXにて転送されるためアットホーム(株)にも保管されます。アットホーム(株)で保管された個人情報の取り扱いについては、【こちら】をご覧ください。
また、本画面でご記入いただいた個人情報は、お問い合わせ先の不動産会社でも保管します。 お問い合わせ先の不動産会社が保管する個人情報の取り扱いについては、不動産会社に直接お問い合わせください。
長崎県知事免許(8)第2473号 |
|---|
- 交通:
- 【バス】 新戸町団地 停歩1分
- 長崎県長崎市新小が倉1丁目3-5
- TEL:
- 095-878-3578
- FAX:
- 095-879-3775
- 所属団体:
- (公社)長崎県宅地建物取引業協会会員(一社)九州不動産公正取引協議会加盟
取引態様:媒介  - 80500356
|
- スマートフォンで
この不動産会社を見る

|
- 提携サイト等より掲載されている物件情報につきましては、不動産会社詳細情報にリンクされていないものがあります。
- 物件に関するお問合せは、物件詳細ページの「情報提供会社」に表示されている不動産会社へ直接お願いいたします。
- 間取図は、現況を優先させていただきます。
- 映像は物件の一部を撮影したものです。物件の契約にあたっての最終判断はご自身の判断に基づいて行ってください。
- 仲介手数料について

アットホームは物件情報の適正化に努めております。
内容に誤りがある場合にはこちらへご連絡ください。