千葉県鎌ケ谷市初富(北初富駅)の中古マンション・新築マンション・分譲マンション:物件詳細
交通 所在地 |
駅徒歩 |
価格 |
構造 階建/階 |
間取り 専有面積 |
物件種目 築年月 |
|
京成松戸線/北初富
千葉県鎌ケ谷市初富
|
10分
|
1,600万円
|
SRC
10階建 / 7階
|
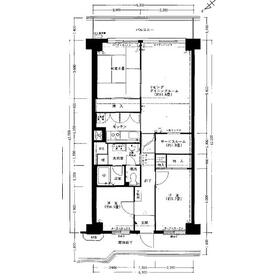
3SLDK
75.60m²
|
中古マンション
1983年1月(築43年5ヶ月)
|
|
バリアフリー、閑静な住宅街、前面棟無、管理人日勤、IT重説対応物件
|
|
間取図
|
|
<
その他の画像
>
|
| 交通 | 京成松戸線 北初富駅 徒歩10分 |
|---|
| その他の交通 | 北総線 大町駅 徒歩23分 成田スカイアクセス 新鎌ヶ谷駅 徒歩23分 |
| 所在地 |
千葉県鎌ケ谷市初富
|
| 物件種目 |
中古マンション |
| 価格 |
1,600万円 |
平米単価 |
21.17万円 |
| 管理費等 |
7,100円 |
修繕積立金 |
9,940円 |
| 借地期間・地代(月額) |
- |
権利金 |
- |
| 敷金または保証金 |
- / - |
維持費等 |
- |
| その他一時金 |
- |
|
|
| 間取り |
3SLDK |
専有面積 |
75.60m²(壁芯) |
| 階建 / 階 |
10階建 / 7階 |
バルコニー |
8.82m² |
| 築年月 |
1983年1月(築43年5ヶ月)
|
建物構造 |
SRC |
| 駐車場 |
有 7,000円/月 |
総戸数 |
- |
| 駐輪場 |
有 無料 |
バイク置き場 |
- |
| ペット |
-
|
|
|
| 土地権利 |
所有権 |
敷地面積 |
8,444.99m² |
| 管理形態/管理員の勤務形態 |
全部委託/日勤(舎人社計画研究所) |
国土法届出 |
- |
| アピールポイント |
サンピア鎌ケ谷は、4人家族でもゆったり暮らせる広めの3LDKが魅力のファミリーマンションです。明るいリビングには自然光がたっぷり入り、家族が自然と集まる温かい空間が広がります。各居室には収納がしっかり確保され、子ども部屋の使い分けや荷物の多いご家庭でもゆとりを感じられる設計です。
また、家事動線がスムーズで使い勝手が良く、忙しい毎日でもストレスなく暮らせるのも嬉しいポイント。駅・スーパー・コンビニ・公園など生活に欠かせない施設がすべて徒歩圏内に揃っており、通勤・通学や日々の買い物もとても便利です。
さらに、周辺は落ち着いた住宅街で、子育て世帯にとって安心して生活できる住環境が整っています。マンションの管理体制も良好で、長く安心して暮らせる点も大きな魅力です。
立地・間取り・住みやすさの三拍子が揃った、家族みんなが笑顔で過ごせる理想の住まいです。 |
| 建物名・部屋番号 |
|
| リフォーム履歴 |
- |
| リノベーション履歴 |
- |
| 瑕疵保証 |
- |
| 瑕疵保険 |
- |
| 評価・証明書 |
- |
| 備考 |
主要採光面:南東向き
IT重説対応物件
一部都市計画道路区域内(計画決定)
|
| エネルギー消費性能 |
- |
| 断熱性能 |
- |
| 目安光熱費 |
- |
| バス・トイレ |
オートバス、追焚機能、温水洗浄便座 |
| キッチン |
- |
| 設備・サービス |
収納スペース、室内洗濯機置場、クローゼット、モニター付インターホン、都市ガス、暖房、冷房、駐輪場 |
| その他 |
宅配BOX、エレベーター2基以上、来客用駐車場、エレベーター |
| 条件等 |
- |
現況 |
空家 |
| 引渡可能時期 |
相談 |
物件番号 |
6988461322 |
| 仲介手数料 |
売買代金の3%+6万円 |
|
|
| 情報公開日 |
2026年5月13日 |
次回更新予定日 |
2026年5月27日 |
| ケータイ用バーコード |
- スマートフォンでこの物件を見る
- スマートフォンからもこの物件をご覧になれます。
|
※「-」と表示されている項目については、情報提供会社にご確認ください。
ここから簡単にお問い合わせをすることができます。
(SSLでの暗号化での送信を希望されるお客さまは
こちら
よりお問い合わせください)
お問い合わせを行う前に
「個人情報の取り扱いについて」を必ずお読みください。
「個人情報の取り扱いについて」に同意いただいた場合は「上記にご同意の上 確認画面へ進む」のボタンをクリックしてください。
個人情報の取り扱いについて
皆さまが送付された個人情報はアットホーム(株)のサーバを経由し、お問い合わせ先の不動産会社にメールまたはFAXにて転送されるためアットホーム(株)にも保管されます。アットホーム(株)で保管された個人情報の取り扱いについては、【こちら】をご覧ください。
また、本画面でご記入いただいた個人情報は、お問い合わせ先の不動産会社でも保管します。 お問い合わせ先の不動産会社が保管する個人情報の取り扱いについては、不動産会社に直接お問い合わせください。
東京都知事免許(1)第109546号 |
|---|
- 交通:
- 西武池袋線/ひばりヶ丘駅 徒歩3分
- 東京都西東京市ひばりが丘北3丁目5-6 シティーコートひばりヶ丘3F
- TEL:
- 042-425-1331
- FAX:
- 03-6842-9012
- 所属団体:
- (公社)東京都宅地建物取引業協会会員(公社)首都圏不動産公正取引協議会加盟
取引態様:専任媒介  - 00987010
|
- スマートフォンで
この不動産会社を見る

|
- 提携サイト等より掲載されている物件情報につきましては、不動産会社詳細情報にリンクされていないものがあります。
- 物件に関するお問合せは、物件詳細ページの「情報提供会社」に表示されている不動産会社へ直接お願いいたします。
- 間取図は、現況を優先させていただきます。
- 映像は物件の一部を撮影したものです。物件の契約にあたっての最終判断はご自身の判断に基づいて行ってください。
- 仲介手数料について

アットホームは物件情報の適正化に努めております。
内容に誤りがある場合にはこちらへご連絡ください。