福島県郡山市堤下町(郡山駅)の中古マンション・新築マンション・分譲マンション:物件詳細
交通 所在地 |
駅徒歩 |
価格 |
構造 階建/階 |
間取り 専有面積 |
物件種目 築年月 |
|
東北新幹線/郡山 [バス利用可] バス 市民文化センター 停歩3分
福島県郡山市堤下町
|
17分
|
2,500万円
|
RC
15階建 / 11階
|
3LDK
70.44m²
|
中古マンション
2009年11月(築16年5ヶ月)
|
|
南向き、免震構造、2面採光、24時間換気システム、バリアフリー、管理人日勤
|
|
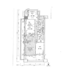
間取図
全景
|
|
<
その他の画像
>
|
| 交通 | 東北新幹線 郡山駅 徒歩17分 [バス利用可] バス 市民文化センター 停歩3分 |
| 所在地 |
福島県郡山市堤下町
|
| 物件種目 |
中古マンション |
| 価格 |
2,500万円 |
平米単価 |
35.50万円 |
| 管理費等 |
12,330円 |
修繕積立金 |
19,720円 |
| 借地期間・地代(月額) |
- |
権利金 |
- |
| 敷金または保証金 |
- / - |
維持費等 |
- |
| その他一時金 |
- |
|
|
| 間取り |
3LDK(和 6 洋 8・5 LDK 10) |
専有面積 |
70.44m²(壁芯) |
| 階建 / 階 |
15階建 / 11階 |
バルコニー |
31.00m² |
| 築年月 |
2009年11月(築16年5ヶ月)
|
建物構造 |
RC |
| 駐車場 |
有 1,000円/月 |
総戸数 |
- |
| 駐輪場 |
- |
バイク置き場 |
- |
| ペット |
-
|
|
|
| 土地権利 |
所有権 |
敷地面積 |
- |
| 管理形態/管理員の勤務形態 |
全部委託/日勤(ナイスコミュニティ東北支店) |
国土法届出 |
- |
| アピールポイント |
販売価格を200万円引き下げました。建物内覧されてはいかがでしょうか。周辺施設は小学校、ヨークタウン、けんしん郡山文化センター、荒池東公園等あります。旧国道4号線、文化通りもすぐで車でのアクセスも良好です。郡山駅までも徒歩17分程度で新幹線利用も便利な物件です。室内は業者によるクリーニングを実施済みで、室内照明器具は全室LEDの照明器具付きです。11階フロアですので、いろいろな場所で開催される花火大会も南側バルコニーか観覧できると思います。3LDKの間取りも使いやすい間取りです。
駐車スペースは1台確保されていますが、駐車場所は抽選になりますので現時点では確定しておりません。物件説明内に駐車料金1,000円の記載がありますが、その金額も駐車場所により変更になる場合があります。(3段式立体駐車場ですので、車体サイズで駐車不可の可能性もあります。その際は物件周辺の月極駐車場をご検討いただくことになります)室内は業者クリーニングが終了してます。
弊社には宅地建物取引士はもちろんファイナンシャルプランナーも在籍しております。住宅ローンのご相談もお気軽にどうぞ。 |
| 建物名・部屋番号 |
|
| リフォーム履歴 |
- |
| リノベーション履歴 |
- |
| 瑕疵保証 |
- |
| 瑕疵保険 |
- |
| 評価・証明書 |
- |
| 備考 |
主要採光面:南向き
用途地域:商業地域
|
| エネルギー消費性能 |
- |
| 断熱性能 |
- |
| 目安光熱費 |
- |
| バス・トイレ |
浴室暖房、浴室乾燥機、オートバス、追焚機能、シャワー付洗面化粧台、温水洗浄便座 |
| キッチン |
カウンターキッチン、システムキッチン、3口以上コンロ |
| 設備・サービス |
全居室収納、収納スペース、室内洗濯機置場、トランクルーム、クローゼット、オートロック、ディンプルキー、防犯カメラ、給湯、都市ガス、二面バルコニー、人感センサー付照明、ダウンライト、照明器具、複層ガラス |
| その他 |
エレベーター |
| 条件等 |
- |
現況 |
空家 |
| 引渡可能時期 |
相談 |
物件番号 |
6988475116 |
| 情報公開日 |
2025年11月25日 |
次回更新予定日 |
2026年3月30日 |
| ケータイ用バーコード |
- スマートフォンでこの物件を見る
- スマートフォンからもこの物件をご覧になれます。
|
※「-」と表示されている項目については、情報提供会社にご確認ください。
| 周辺施設 |
ベランダから荒池公園 |
| 距離 |
100m |
写真を見る |
| 周辺施設 |
ベランダから橘小 |
| 距離 |
50m |
写真を見る |
| 周辺施設 |
ベランダからヨークタウン |
| 距離 |
80m |
写真を見る |
ここから簡単にお問い合わせをすることができます。
(SSLでの暗号化での送信を希望されるお客さまは
こちら
よりお問い合わせください)
お問い合わせを行う前に
「個人情報の取り扱いについて」を必ずお読みください。
「個人情報の取り扱いについて」に同意いただいた場合は「上記にご同意の上 確認画面へ進む」のボタンをクリックしてください。
個人情報の取り扱いについて
皆さまが送付された個人情報はアットホーム(株)のサーバを経由し、お問い合わせ先の不動産会社にメールまたはFAXにて転送されるためアットホーム(株)にも保管されます。アットホーム(株)で保管された個人情報の取り扱いについては、【こちら】をご覧ください。
また、本画面でご記入いただいた個人情報は、お問い合わせ先の不動産会社でも保管します。 お問い合わせ先の不動産会社が保管する個人情報の取り扱いについては、不動産会社に直接お問い合わせください。
国土交通大臣免許(11)第3188号 |
|---|
- 交通:
- JR東北本線/郡山駅 徒歩15分
- 福島県郡山市栄町3-12
- TEL:
- 024-932-1607
- FAX:
- 024-932-5678
- 所属団体:
- (公社)福島県宅地建物取引業協会会員不動産公正取引協議会加盟
取引態様:専任媒介  - 20003099
|
- スマートフォンで
この不動産会社を見る

|
- 提携サイト等より掲載されている物件情報につきましては、不動産会社詳細情報にリンクされていないものがあります。
- 物件に関するお問合せは、物件詳細ページの「情報提供会社」に表示されている不動産会社へ直接お願いいたします。
- 間取図は、現況を優先させていただきます。
- 映像は物件の一部を撮影したものです。物件の契約にあたっての最終判断はご自身の判断に基づいて行ってください。
- 仲介手数料について

アットホームは物件情報の適正化に努めております。
内容に誤りがある場合にはこちらへご連絡ください。