千葉県千葉市稲毛区あやめ台(稲毛駅)の中古マンション・新築マンション・分譲マンション:物件詳細
交通 所在地 |
駅徒歩 |
価格 |
構造 階建/階 |
間取り 専有面積 |
物件種目 築年月 |
|
JR総武本線/稲毛 【バス】13分 柏台小学校 停歩3分
千葉県千葉市稲毛区あやめ台
|
-
|
1,230万円
|
RC
5階建 / 3階
|
2LDK
46.27m²
|
中古マンション
1971年9月(築54年4ヶ月)
|
|
南向き、事務所使用可、隣接建物距離2m以上、管理人日勤、IT重説対応物件、高台
|
| 交通 | JR総武本線 稲毛駅 【バス】 13分 柏台小学校 停歩3分 |
| 所在地 |
千葉県千葉市稲毛区あやめ台
|
| 物件種目 |
中古マンション |
| 価格 |
1,230万円 |
平米単価 |
26.59万円 |
| 管理費等 |
5,000円 |
修繕積立金 |
10,000円 |
| 借地期間・地代(月額) |
- |
権利金 |
- |
| 敷金または保証金 |
- / - |
維持費等 |
- |
| その他一時金 |
- |
|
|
| 間取り |
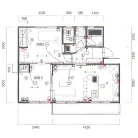
2LDK(洋 6・4.5 LDK 10) |
専有面積 |
46.27m²(内法) |
| 階建 / 階 |
5階建 / 3階 |
バルコニー |
6.00m² |
| 築年月 |
1971年9月(築54年4ヶ月)
|
建物構造 |
RC |
| 駐車場 |
有 5,000円/月 |
総戸数 |
490戸 |
| 駐輪場 |
有 1,000円/年 |
バイク置き場 |
有 500円/月 |
| ペット |
-
|
|
|
| 土地権利 |
所有権 |
敷地面積 |
44,390.24m² |
| 管理形態/管理員の勤務形態 |
自主管理/日勤(あやめ台団地住宅管理組合) |
国土法届出 |
- |
| アピールポイント |
2025年12月フルリノベーション完工予定 すべての設備・内装を一新して新築同様にデザイン 大手ハウスメーカーデザイナーによる対面キッチンやバーティカルブラインドを用いたくつろぎの空間へ リノベーション内容(浴槽・浴室設備交換/キッチン台交換/換気扇交換/便座交換/温水便座設置/洗面台交換/間取り変更/照明変更/モニターTV設置/給湯器交換/給排水配管設備全交換) |
| 建物名・部屋番号 |
|
| リフォーム履歴 |
■水回り:2025年12月 キッチン、浴室、トイレ、洗面所、給排水管、給湯器 ■内装:2025年12月 内装全面(床・壁・天井・建具)、サッシ ■共用部の大規模修繕工事:2009年11月 共用部給水管更新工事 共用部排水更新工事 各居室窓サッシ玄関扉交換 外壁工事修繕 ※実施年月は最も古い履歴を表示 |
| リノベーション履歴 |
2025年12月 アイランド型対面キッチン/バーチカルブラインド/クローゼット ※実施年月は最も古い履歴を表示 |
| 瑕疵保証 |
- |
| 瑕疵保険 |
- |
| 評価・証明書 |
- |
| 備考 |
主要採光面:南向き
施工会社:日本住宅公団
用途地域:1種中高、1種住居
延べ面積:2,093.60m²
IT重説対応物件
契約不適合責任免責 現況有姿売買 2025年12月フルリノベーション完工予定/浴槽・浴室設備交換/キッチン台交換/換気扇交換/便座交換/温水便座設置/洗面台交換/間取り変更/照明変更/モニターTV設置/給湯器交換/給排水配管設備全交換/
|
| エネルギー消費性能 |
- |
| 断熱性能 |
- |
| 目安光熱費 |
- |
| バス・トイレ |
追焚機能、シャワー付洗面化粧台、温水洗浄便座 |
| キッチン |
カウンターキッチン、システムキッチン、3口以上コンロ、グリル |
| 設備・サービス |
全居室収納、バイク置き場、収納スペース、室内洗濯機置場、シューズインクローゼット、クローゼット、モニター付インターホン、給湯、都市ガス、エアコン、駐輪場 |
| その他 |
来客用駐車場 |
| 条件等 |
- |
現況 |
空家 |
| 引渡可能時期 |
2025年12月下旬予定 |
物件番号 |
6988504880 |
| 仲介手数料 |
売買代金の3%+6万円 |
|
|
| 情報公開日 |
2025年12月8日 |
次回更新予定日 |
2025年12月22日 |
| ケータイ用バーコード |
- スマートフォンでこの物件を見る
- スマートフォンからもこの物件をご覧になれます。
|
※「-」と表示されている項目については、情報提供会社にご確認ください。
ここから簡単にお問い合わせをすることができます。
(SSLでの暗号化での送信を希望されるお客さまは
こちら
よりお問い合わせください)
お問い合わせを行う前に
「個人情報の取り扱いについて」を必ずお読みください。
「個人情報の取り扱いについて」に同意いただいた場合は「上記にご同意の上 確認画面へ進む」のボタンをクリックしてください。
個人情報の取り扱いについて
皆さまが送付された個人情報はアットホーム(株)のサーバを経由し、お問い合わせ先の不動産会社にメールまたはFAXにて転送されるためアットホーム(株)にも保管されます。アットホーム(株)で保管された個人情報の取り扱いについては、【こちら】をご覧ください。
また、本画面でご記入いただいた個人情報は、お問い合わせ先の不動産会社でも保管します。 お問い合わせ先の不動産会社が保管する個人情報の取り扱いについては、不動産会社に直接お問い合わせください。
千葉県知事免許(13)第5278号 |
|---|
- 交通:
- JR総武線/稲毛駅 徒歩3分
- 千葉県千葉市稲毛区小仲台2丁目13-1 村田ビル1F
- TEL:
- 043-256-5661
- FAX:
- 043-256-6446
- 所属団体:
- (一社)千葉県宅地建物取引業協会会員(公社)首都圏不動産公正取引協議会加盟
取引態様:専任媒介  - 00010446
|
- スマートフォンで
この不動産会社を見る

|
- 提携サイト等より掲載されている物件情報につきましては、不動産会社詳細情報にリンクされていないものがあります。
- 物件に関するお問合せは、物件詳細ページの「情報提供会社」に表示されている不動産会社へ直接お願いいたします。
- 間取図は、現況を優先させていただきます。
- 映像は物件の一部を撮影したものです。物件の契約にあたっての最終判断はご自身の判断に基づいて行ってください。
- 仲介手数料について

アットホームは物件情報の適正化に努めております。
内容に誤りがある場合にはこちらへご連絡ください。