神奈川県相模原市南区相模大野2丁目(相模大野駅)の中古マンション・新築マンション・分譲マンション:物件詳細
交通 所在地 |
駅徒歩 |
価格 |
構造 階建/階 |
間取り 専有面積 |
物件種目 築年月 |
|
小田急小田原線/相模大野
神奈川県相模原市南区相模大野2丁目
|
7分
|
680万円
|
SRC
12階建 / 1階
|
ワンルーム
19.80m²
|
中古マンション
1990年11月(築35年2ヶ月)
|
|
管理人日勤
|
| 交通 | 小田急小田原線 相模大野駅 徒歩7分 |
|---|
| その他の交通 | 小田急江ノ島線 相模大野駅 徒歩7分 JR横浜線 町田駅 徒歩19分 |
| 所在地 |
神奈川県相模原市南区相模大野2丁目
|
| 物件種目 |
中古マンション |
| 価格 |
680万円 |
平米単価 |
34.35万円 |
| 管理費等 |
7,640円 |
修繕積立金 |
5,600円 |
| 借地期間・地代(月額) |
- |
権利金 |
- |
| 敷金または保証金 |
- / - |
維持費等 |
- |
| その他一時金 |
- |
|
|
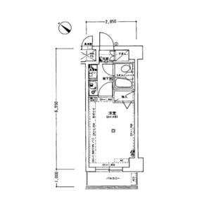
| 間取り |
ワンルーム(洋 7) |
専有面積 |
19.80m²(壁芯) |
| 階建 / 階 |
12階建 / 1階 |
バルコニー |
2.85m² |
| 築年月 |
1990年11月(築35年2ヶ月)
|
建物構造 |
SRC |
| 駐車場 |
有 12,000円/月 |
総戸数 |
- |
| 駐輪場 |
- |
バイク置き場 |
有 1,500円/月 |
| ペット |
-
|
|
|
| 土地権利 |
所有権 |
敷地面積 |
- |
| 管理形態/管理員の勤務形態 |
全部委託/日勤(株式会社大京アステージ) |
国土法届出 |
- |
| 建物名・部屋番号 |
|
| リフォーム履歴 |
- |
| リノベーション履歴 |
- |
| 瑕疵保証 |
- |
| 瑕疵保険 |
- |
| 評価・証明書 |
- |
| 備考 |
主要採光面:南西向き
用途地域:準住居
告知事項あり
令和7年3月中旬ごろ、室内にて賃借人が自然死。
|
| エネルギー消費性能 |
- |
| 断熱性能 |
- |
| 目安光熱費 |
- |
| バス・トイレ |
- |
| キッチン |
- |
| 設備・サービス |
バイク置き場 |
| その他 |
- |
| 条件等 |
- |
現況 |
空家 |
| 引渡可能時期 |
相談 |
物件番号 |
6988524658 |
| 仲介手数料 |
不要 |
|
|
| 情報公開日 |
2025年12月5日 |
次回更新予定日 |
2025年12月19日 |
| ケータイ用バーコード |
- スマートフォンでこの物件を見る
- スマートフォンからもこの物件をご覧になれます。
|
※「-」と表示されている項目については、情報提供会社にご確認ください。
ここから簡単にお問い合わせをすることができます。
(SSLでの暗号化での送信を希望されるお客さまは
こちら
よりお問い合わせください)
お問い合わせを行う前に
「個人情報の取り扱いについて」を必ずお読みください。
「個人情報の取り扱いについて」に同意いただいた場合は「上記にご同意の上 確認画面へ進む」のボタンをクリックしてください。
個人情報の取り扱いについて
皆さまが送付された個人情報はアットホーム(株)のサーバを経由し、お問い合わせ先の不動産会社にメールまたはFAXにて転送されるためアットホーム(株)にも保管されます。アットホーム(株)で保管された個人情報の取り扱いについては、【こちら】をご覧ください。
また、本画面でご記入いただいた個人情報は、お問い合わせ先の不動産会社でも保管します。 お問い合わせ先の不動産会社が保管する個人情報の取り扱いについては、不動産会社に直接お問い合わせください。
神奈川県知事免許(3)第29278号 |
|---|
- 交通:
- ブルーライン/センター南駅 徒歩3分
- 神奈川県横浜市都筑区茅ケ崎中央52-1 グランエクシード303
- TEL:
- 045-500-9548
- 所属団体:
- (公社)全日本不動産協会会員(公社)首都圏不動産公正取引協議会加盟
取引態様:売主  - 00268487
|
- スマートフォンで
この不動産会社を見る

|
- 提携サイト等より掲載されている物件情報につきましては、不動産会社詳細情報にリンクされていないものがあります。
- 物件に関するお問合せは、物件詳細ページの「情報提供会社」に表示されている不動産会社へ直接お願いいたします。
- 間取図は、現況を優先させていただきます。
- 映像は物件の一部を撮影したものです。物件の契約にあたっての最終判断はご自身の判断に基づいて行ってください。
- 仲介手数料について

アットホームは物件情報の適正化に努めております。
内容に誤りがある場合にはこちらへご連絡ください。