熊本県熊本市西区春日1丁目(熊本駅)の中古マンション・新築マンション・分譲マンション:物件詳細
交通 所在地 |
駅徒歩 |
価格 |
構造 階建/階 |
間取り 専有面積 |
物件種目 築年月 |
|
九州新幹線/熊本
熊本県熊本市西区春日1丁目
|
6分
|
5,800万円
|
RC
35階建 / 32階
|
2LDK
91.60m²
|
中古マンション
2012年2月(築14年4ヶ月)
|
|
ペット相談、24時間セキュリティー、バス1坪以上、隣接建物距離2m以上、管理人常駐
|
|
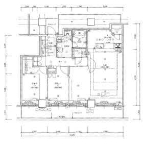
間取図
|
外観
|
<
その他の画像
>
|
| 交通 | 九州新幹線 熊本駅 徒歩6分 |
|---|
| その他の交通 | JR豊肥本線 熊本駅 徒歩5分 熊本市電健軍線 熊本駅前駅 徒歩4分 |
| 所在地 |
熊本県熊本市西区春日1丁目
|
| 物件種目 |
中古マンション |
| 価格 |
5,800万円 |
平米単価 |
63.32万円 |
| 管理費等 |
21,100円 |
修繕積立金 |
19,900円 |
| 借地期間・地代(月額) |
- |
権利金 |
- |
| 敷金または保証金 |
- / - |
維持費等 |
駐車場管理費:5,300円/月、駐車場修繕積立金:6,900円/月、土地賃借料:400円/月、自治会費:250円/月 |
| その他一時金 |
- |
|
|
| 間取り |
2LDK(洋 7.4・6) |
専有面積 |
91.60m²(壁芯) |
| 階建 / 階 |
35階建 / 32階 |
バルコニー |
17.38m² |
| 築年月 |
2012年2月(築14年4ヶ月)
|
建物構造 |
RC |
| 駐車場 |
無 |
総戸数 |
242戸 |
| 駐輪場 |
有 300円/月 |
バイク置き場 |
無 |
| ペット |
小型犬可・ 猫可・ ペット飼育規則参照 |
|
|
| 土地権利 |
所有権 |
敷地面積 |
7,304.72m² |
| 管理形態/管理員の勤務形態 |
全部委託/常駐(長谷工コミュニティ九州) |
国土法届出 |
- |
| アピールポイント |
九州新幹線・熊本駅から徒歩2分。くまもと森都心エグゼクティブフロア32階に位置する本住戸は、都心利便と上質な暮らしを両立する特別な2LDKです。延床面積91.6㎡のゆとりある空間は、ワンフロアで生活が完結する平屋仕様。無駄のない動線で、毎日を心地よくお過ごしいただけます。ペット(小型犬、猫)可なのも魅力です。
キッチンは使い勝手に優れたカウンタータイプを採用し、料理をしながら家族との会話も弾む設計。カフェテイストのインテリアも楽しめます。生ゴミ処理の負担を軽減するディスポーザー、荷物の受け取りが便利な宅配BOXなど、快適な暮らしを支える設備も充実。
32階ならではの圧巻の眺望と、駅近ならではの利便性を兼ね備えた本住戸。住む人の毎日をワンランク上へ導く住まいです。ぜひ一度、その空間をご体感ください。 |
| 建物名・部屋番号 |
|
| リフォーム履歴 |
■共用部の大規模修繕工事:2024年12月 外壁 ※実施年月は最も古い履歴を表示 |
| リノベーション履歴 |
- |
| 瑕疵保証 |
- |
| 瑕疵保険 |
- |
| 評価・証明書 |
- |
| 備考 |
主要採光面:東向き
用途地域:商業地域
延べ面積:91.60m²
立体駐車場の登記簿上の所有者は売主とは別名義となります。立体駐車場は売主負担よる登記移転手続きは行いません。
|
| エネルギー消費性能 |
- |
| 断熱性能 |
- |
| 目安光熱費 |
- |
| バス・トイレ |
追焚機能、シャワー付洗面化粧台、温水洗浄便座、タンクレストイレ |
| キッチン |
カウンターキッチン、食器洗浄乾燥機、ディスポーザー、3口以上コンロ |
| 設備・サービス |
全居室収納、ウォークインクローゼット、全居室エアコン、エアコン2台以上、収納スペース、室内洗濯機置場、クローゼット、ディンプルキー、ダブルロックドア、防犯カメラ、給湯、全居室フローリング、アルコーブ、都市ガス、ビルトインエアコン、駐輪場、人感センサー付照明、フットライト、ダウンライト、照明器具、複層ガラス |
| その他 |
宅配BOX、エレベーター2基以上 |
| 条件等 |
- |
現況 |
空家 |
| 引渡可能時期 |
即時 |
物件番号 |
6988524740 |
| 仲介手数料 |
売買代金の3.3%+6.6万円 |
|
|
| 情報公開日 |
2025年12月5日 |
次回更新予定日 |
2026年5月14日 |
| ケータイ用バーコード |
- スマートフォンでこの物件を見る
- スマートフォンからもこの物件をご覧になれます。
|
※「-」と表示されている項目については、情報提供会社にご確認ください。
| 周辺施設 |
ファミリーマートJR熊本駅前店 |
| 距離 |
263m |
ここから簡単にお問い合わせをすることができます。
(SSLでの暗号化での送信を希望されるお客さまは
こちら
よりお問い合わせください)
お問い合わせを行う前に
「個人情報の取り扱いについて」を必ずお読みください。
「個人情報の取り扱いについて」に同意いただいた場合は「上記にご同意の上 確認画面へ進む」のボタンをクリックしてください。
個人情報の取り扱いについて
皆さまが送付された個人情報はアットホーム(株)のサーバを経由し、お問い合わせ先の不動産会社にメールまたはFAXにて転送されるためアットホーム(株)にも保管されます。アットホーム(株)で保管された個人情報の取り扱いについては、【こちら】をご覧ください。
また、本画面でご記入いただいた個人情報は、お問い合わせ先の不動産会社でも保管します。 お問い合わせ先の不動産会社が保管する個人情報の取り扱いについては、不動産会社に直接お問い合わせください。
熊本県知事免許(3)第4922号 |
|---|
- 交通:
- 【バス】 八王寺中央公園前 停歩2分
- 熊本県熊本市中央区出水6丁目5-1-2F
- TEL:
- 096-378-8822
- FAX:
- 096-378-5010
- 所属団体:
- (公社)熊本県宅地建物取引業協会会員(一社)九州不動産公正取引協議会加盟
取引態様:専任媒介  - 80500428
|
- スマートフォンで
この不動産会社を見る

|
- 提携サイト等より掲載されている物件情報につきましては、不動産会社詳細情報にリンクされていないものがあります。
- 物件に関するお問合せは、物件詳細ページの「情報提供会社」に表示されている不動産会社へ直接お願いいたします。
- 間取図は、現況を優先させていただきます。
- 映像は物件の一部を撮影したものです。物件の契約にあたっての最終判断はご自身の判断に基づいて行ってください。
- 仲介手数料について

アットホームは物件情報の適正化に努めております。
内容に誤りがある場合にはこちらへご連絡ください。