鹿児島県鹿児島市高麗町(鹿児島中央駅)の中古マンション・新築マンション・分譲マンション:物件詳細
交通 所在地 |
駅徒歩 |
価格 |
構造 階建/階 |
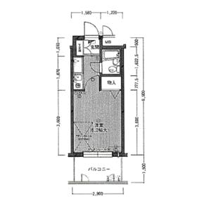
間取り 専有面積 |
物件種目 築年月 |
|
JR鹿児島本線/鹿児島中央
鹿児島県鹿児島市高麗町
|
13分
|
250万円
|
SRC
11階建 / 1階
|
ワンルーム
18.20m²
|
中古マンション
1991年12月(築34年1ヶ月)
|
|
ペット相談、南向き、管理人日勤
|
|
間取図
|
外観
|
<
その他の画像
>
|
| 交通 | JR鹿児島本線 鹿児島中央駅 徒歩13分 |
| 所在地 |
鹿児島県鹿児島市高麗町
|
| 物件種目 |
中古マンション |
| 価格 |
250万円 |
平米単価 |
13.74万円 |
| 管理費等 |
5,830円 |
修繕積立金 |
6,000円 |
| 借地期間・地代(月額) |
- |
権利金 |
- |
| 敷金または保証金 |
- / - |
維持費等 |
- |
| その他一時金 |
- |
|
|
| 間取り |
ワンルーム(洋 6.2) |
専有面積 |
18.20m²(壁芯) |
| 階建 / 階 |
11階建 / 1階 |
バルコニー |
3.90m² |
| 築年月 |
1991年12月(築34年1ヶ月)
|
建物構造 |
SRC |
| 駐車場 |
無 |
総戸数 |
63戸 |
| 駐輪場 |
有 無料 |
バイク置き場 |
有 無料 |
| ペット |
小型犬可 |
|
|
| 土地権利 |
所有権 |
敷地面積 |
375.38m² |
| 管理形態/管理員の勤務形態 |
全部委託/日勤(日本ビルサービス株式会社) |
国土法届出 |
- |
| アピールポイント |
鹿児島中央駅、コンビニ、スーパーまで徒歩圏内の好立地!
オートロック付き、お庭付きのお部屋です! |
| 建物名・部屋番号 |
朝日プラザ高麗町 102 |
| リフォーム履歴 |
■共用部の大規模修繕工事:2025年8月 大規模修繕工事 ※実施年月は最も古い履歴を表示 |
| リノベーション履歴 |
- |
| 瑕疵保証 |
- |
| 瑕疵保険 |
- |
| 評価・証明書 |
- |
| 備考 |
主要採光面:南向き
施工会社:大豊建設株式会社
用途地域:商業地域
延べ面積:1,375.98m²
|
| エネルギー消費性能 |
- |
| 断熱性能 |
- |
| 目安光熱費 |
- |
| バス・トイレ |
シャワー付洗面化粧台 |
| キッチン |
- |
| 設備・サービス |
モニター付オートロック、バイク置き場、収納スペース、室内洗濯機置場、モニター付インターホン、洗濯機置場、給湯、都市ガス、エアコン、専用庭、駐輪場 |
| その他 |
エレベーター |
| 条件等 |
- |
現況 |
空家 |
| 引渡可能時期 |
即時 |
物件番号 |
6988539157 |
| 仲介手数料 |
33万円 |
|
|
| 情報公開日 |
2025年12月9日 |
次回更新予定日 |
2025年12月24日 |
| ケータイ用バーコード |
- スマートフォンでこの物件を見る
- スマートフォンからもこの物件をご覧になれます。
|
※「-」と表示されている項目については、情報提供会社にご確認ください。
| 周辺施設 |
セブンイレブン鹿児島ナポリ通り店 |
| 距離 |
253m |
ここから簡単にお問い合わせをすることができます。
(SSLでの暗号化での送信を希望されるお客さまは
こちら
よりお問い合わせください)
お問い合わせを行う前に
「個人情報の取り扱いについて」を必ずお読みください。
「個人情報の取り扱いについて」に同意いただいた場合は「上記にご同意の上 確認画面へ進む」のボタンをクリックしてください。
個人情報の取り扱いについて
皆さまが送付された個人情報はアットホーム(株)のサーバを経由し、お問い合わせ先の不動産会社にメールまたはFAXにて転送されるためアットホーム(株)にも保管されます。アットホーム(株)で保管された個人情報の取り扱いについては、【こちら】をご覧ください。
また、本画面でご記入いただいた個人情報は、お問い合わせ先の不動産会社でも保管します。 お問い合わせ先の不動産会社が保管する個人情報の取り扱いについては、不動産会社に直接お問い合わせください。
鹿児島県知事免許(2)第6249号 |
|---|
- 交通:
- 【バス】 与次郎ヶ浜
- 鹿児島県鹿児島市天保山町11番21号 エントピア天保山Ⅲ203号
- TEL:
- 099-800-6216
- FAX:
- 099-800-6252
- 所属団体:
- (公社)鹿児島県宅地建物取引業協会会員(一社)九州不動産公正取引協議会加盟
取引態様:専任媒介  - 80504324
|
- スマートフォンで
この不動産会社を見る

|
- 提携サイト等より掲載されている物件情報につきましては、不動産会社詳細情報にリンクされていないものがあります。
- 物件に関するお問合せは、物件詳細ページの「情報提供会社」に表示されている不動産会社へ直接お願いいたします。
- 間取図は、現況を優先させていただきます。
- 映像は物件の一部を撮影したものです。物件の契約にあたっての最終判断はご自身の判断に基づいて行ってください。
- 仲介手数料について

アットホームは物件情報の適正化に努めております。
内容に誤りがある場合にはこちらへご連絡ください。