埼玉県川口市金山町(川口駅)の中古マンション・新築マンション・分譲マンション:物件詳細
交通 所在地 |
駅徒歩 |
価格 |
構造 階建/階 |
間取り 専有面積 |
物件種目 築年月 |
|
JR京浜東北線/川口
埼玉県川口市金山町
|
10分
|
7,790万円
|
RC
地上31階地下1階建 / 29階
|
3LDK
75.44m²
|
中古マンション
オーナーチェンジ
2014年3月(築11年10ヶ月)
|
|
フロントサービス、常時ゴミ出し可能、24時間セキュリティー、免震構造、24時間換気システム、閑静な住宅街、オール電化、管理人常駐
|
|
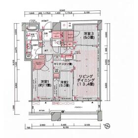
間取図
|
|
<
その他の画像
>
|
| 交通 | JR京浜東北線 川口駅 徒歩10分 |
| 所在地 |
埼玉県川口市金山町
|
| 物件種目 |
中古マンション |
| 価格 |
7,790万円 |
平米単価 |
103.27万円 |
| 管理費等 |
17,200円 |
修繕積立金 |
21,050円 |
| 借地期間・地代(月額) |
- |
権利金 |
- |
| 敷金または保証金 |
- / - |
維持費等 |
- |
| その他一時金 |
- |
|
|
| 間取り |
3LDK(洋 7.1・5・5 LDK 16.6) |
専有面積 |
75.44m²(壁芯) |
| 階建 / 階 |
地上31階地下1階建 / 29階 |
バルコニー |
11.93m² |
| 築年月 |
2014年3月(築11年10ヶ月)
|
建物構造 |
RC |
| 駐車場 |
- |
総戸数 |
360戸 |
| 駐輪場 |
- |
バイク置き場 |
- |
| ペット |
-
|
|
|
| 土地権利 |
所有権 |
敷地面積 |
854,419.00m² |
| 管理形態/管理員の勤務形態 |
全部委託/常駐((株)東急コミュニティー) |
国土法届出 |
- |
| アピールポイント |
不在時の受け取りも楽々の宅配BOX付、更にフロントサービスで便利です。また広々とした延床面積75.44㎡の居室空間で、その上閑静な住宅街立地の物件だから、騒々しい街の喧噪から離れて生活できます。ちなみに子供を解き放てるキッズルーム完備です。自然に団らんが生まれる3LDK。是非その目でお確かめください。 |
| 建物名・部屋番号 |
|
| リフォーム履歴 |
- |
| リノベーション履歴 |
- |
| 瑕疵保証 |
- |
| 瑕疵保険 |
- |
| 評価・証明書 |
- |
| 備考 |
主要採光面:南西向き
施工会社:鹿島建設株式会社
用途地域:準工業
延べ面積:4,183,026.00m²
【その他費用内訳】CATV施設利用料:月額110円、緊急地震速報配信サービス料:月額44円、インターネット使用料:月額990円
【管理費内訳】全体管理費:月額13,300円・住宅管理費:月額3,400円・タワー棟管理費:月額500円
【修繕積立金】全体修繕積立金:月額1,510円・住宅修繕積立金:月額12,750円・タワー棟修繕積立金:月額6,790円
【駐車場空き状況】ハイルーフ:17台・普通車:23台
|
| エネルギー消費性能 |
- |
| 断熱性能 |
- |
| 目安光熱費 |
- |
| バス・トイレ |
浴室暖房、浴室乾燥機、追焚機能、温水洗浄便座 |
| キッチン |
カウンターキッチン、システムキッチン、独立型キッチン、浄水器、ディスポーザー、IHクッキングヒーター、3口以上コンロ、グリル |
| 設備・サービス |
全居室収納、ウォークインクローゼット、エアコン2台以上、収納スペース、室内洗濯機置場、クローゼット、オートロック、モニター付インターホン、ディンプルキー、防犯カメラ、全居室フローリング、都市ガス、エアコン、照明器具、ケーブルTV、CS、BS端子 |
| その他 |
宅配BOX、キッズルーム、フィットネス施設、エレベーター2基以上、共用ゲストルーム |
| 条件等 |
オーナーチェンジ |
現況 |
空家 |
| 引渡可能時期 |
即時 |
物件番号 |
6988575698 |
| 情報公開日 |
2025年12月5日 |
次回更新予定日 |
2025年12月19日 |
| ケータイ用バーコード |
- スマートフォンでこの物件を見る
- スマートフォンからもこの物件をご覧になれます。
|
※「-」と表示されている項目については、情報提供会社にご確認ください。
| 周辺施設 |
まいばすけっと川口本町1丁目店 |
| 距離 |
291m |
| 周辺施設 |
ファミリーマート川口金山町店 |
| 距離 |
195m |
| 周辺施設 |
私立サレジアン国際学園高校 |
| 距離 |
2610m |
| 周辺施設 |
医療法人新青会川口工業総合病院 |
| 距離 |
1455m |
ここから簡単にお問い合わせをすることができます。
(SSLでの暗号化での送信を希望されるお客さまは
こちら
よりお問い合わせください)
お問い合わせを行う前に
「個人情報の取り扱いについて」を必ずお読みください。
「個人情報の取り扱いについて」に同意いただいた場合は「上記にご同意の上 確認画面へ進む」のボタンをクリックしてください。
個人情報の取り扱いについて
皆さまが送付された個人情報はアットホーム(株)のサーバを経由し、お問い合わせ先の不動産会社にメールまたはFAXにて転送されるためアットホーム(株)にも保管されます。アットホーム(株)で保管された個人情報の取り扱いについては、【こちら】をご覧ください。
また、本画面でご記入いただいた個人情報は、お問い合わせ先の不動産会社でも保管します。 お問い合わせ先の不動産会社が保管する個人情報の取り扱いについては、不動産会社に直接お問い合わせください。
東京都知事免許(3)第94132号 |
|---|
- 交通:
- JR山手線/秋葉原駅 徒歩3分
- 東京都千代田区神田佐久間町3丁目28 E&T BLDG5階
- TEL:
- 03-5846-9688
- FAX:
- 03-5846-9689
- 所属団体:
- (公社)東京都宅地建物取引業協会会員(公社)首都圏不動産公正取引協議会加盟
取引態様:専任媒介  - 00160414
|
- スマートフォンで
この不動産会社を見る

|
- 提携サイト等より掲載されている物件情報につきましては、不動産会社詳細情報にリンクされていないものがあります。
- 物件に関するお問合せは、物件詳細ページの「情報提供会社」に表示されている不動産会社へ直接お願いいたします。
- 間取図は、現況を優先させていただきます。
- 映像は物件の一部を撮影したものです。物件の契約にあたっての最終判断はご自身の判断に基づいて行ってください。
- 仲介手数料について

アットホームは物件情報の適正化に努めております。
内容に誤りがある場合にはこちらへご連絡ください。