福岡県那珂川市松木4丁目(博多南駅)の中古マンション・新築マンション・分譲マンション:物件詳細
交通 所在地 |
駅徒歩 |
価格 |
構造 階建/階 |
間取り 専有面積 |
物件種目 築年月 |
|
JR博多南線/博多南
福岡県那珂川市松木4丁目
|
18分
|
2,648万円
|
RC
9階建 / 7階
|
3LDK
73.19m²
|
中古マンション
1996年2月(築29年11ヶ月)
|
|
管理人巡回、瑕疵保険検査基準に適合
|
|
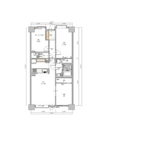
間取図
空間に無駄が少なめ。使えるスペースの余裕が魅力のワイドスパン型の間取り
|
リビング
友達や家族を呼ぶ日が楽しみ!理想のリビングのイメージ広がる
|
<
その他の画像
>
|
| 交通 | JR博多南線 博多南駅 徒歩18分 |
| 所在地 |
福岡県那珂川市松木4丁目
|
| 物件種目 |
中古マンション |
| 価格 |
2,648万円 |
平米単価 |
36.18万円 |
| 管理費等 |
5,100円 |
修繕積立金 |
8,800円 |
| 借地期間・地代(月額) |
- |
権利金 |
- |
| 敷金または保証金 |
- / - |
維持費等 |
- |
| その他一時金 |
- |
|
|
| 間取り |
3LDK |
専有面積 |
73.19m²(壁芯) |
| 階建 / 階 |
9階建 / 7階 |
バルコニー |
- |
| 築年月 |
1996年2月(築29年11ヶ月)
|
建物構造 |
RC |
| 駐車場 |
- |
総戸数 |
- |
| 駐輪場 |
- |
バイク置き場 |
- |
| ペット |
-
|
|
|
| 土地権利 |
所有権 |
敷地面積 |
- |
| 管理形態/管理員の勤務形態 |
全部委託/巡回 |
国土法届出 |
- |
| アピールポイント |
先々のリスク回避の為の瑕疵保険(国交省指定)付、更に関わるプロが請け負う瑕疵保証(不動産会社独自)有とは物件に直に関わるプロの保証が付いてくるという事です。また広々とした延床面積73.19㎡の居室空間で、その上配膳がラクなカウンターキッチン仕様なので、食後の片付けも楽ちんです。ちなみにお鍋とフライパンを使いながらヤカンもおけるコンロ3口以上付です。自然に団らんが生まれる3LDK。是非見学にお越しください。 |
| 建物名・部屋番号 |
|
| リフォーム履歴 |
■水回り:2025年3月 キッチン、浴室、トイレ、洗面所 ■内装:2025年10月 壁・天井(クロス・塗装等) ※実施年月は最も古い履歴を表示 |
| リノベーション履歴 |
- |
| 瑕疵保証 |
瑕疵保証(不動産会社独自)付 保証期間:2年 保証料:買主負担なし |
| 瑕疵保険 |
瑕疵保険検査基準に適合 瑕疵保険(国交省指定)による保証付 保険期間:5年 保険料:買主負担なし |
| 評価・証明書 |
- |
| 備考 |
-
|
| エネルギー消費性能 |
- |
| 断熱性能 |
- |
| 目安光熱費 |
- |
| バス・トイレ |
シャワー付洗面化粧台 |
| キッチン |
カウンターキッチン、システムキッチン、3口以上コンロ |
| 設備・サービス |
全居室収納 |
| その他 |
- |
| 条件等 |
- |
現況 |
空家 |
| 引渡可能時期 |
即時 |
物件番号 |
6988590348 |
| 情報公開日 |
2025年12月1日 |
次回更新予定日 |
2025年12月29日 |
| ケータイ用バーコード |
- スマートフォンでこの物件を見る
- スマートフォンからもこの物件をご覧になれます。
|
※「-」と表示されている項目については、情報提供会社にご確認ください。
ここから簡単にお問い合わせをすることができます。
(SSLでの暗号化での送信を希望されるお客さまは
こちら
よりお問い合わせください)
お問い合わせを行う前に
「個人情報の取り扱いについて」を必ずお読みください。
「個人情報の取り扱いについて」に同意いただいた場合は「上記にご同意の上 確認画面へ進む」のボタンをクリックしてください。
個人情報の取り扱いについて
皆さまが送付された個人情報はアットホーム(株)のサーバを経由し、お問い合わせ先の不動産会社にメールまたはFAXにて転送されるためアットホーム(株)にも保管されます。アットホーム(株)で保管された個人情報の取り扱いについては、【こちら】をご覧ください。
また、本画面でご記入いただいた個人情報は、お問い合わせ先の不動産会社でも保管します。 お問い合わせ先の不動産会社が保管する個人情報の取り扱いについては、不動産会社に直接お問い合わせください。
(株)ヤマダホームズ 不動産事業本部 再販福岡店国土交通大臣免許(16)第382号 |
|---|
- 交通:
- JR香椎線/宇美駅
- 福岡県大野城市乙金東2丁目18-8 オフスパレア乙金Ⅱ5号室
- TEL:
- 092-513-3223
- FAX:
- 092-513-3224
- 所属団体:
- (公社)福岡県宅地建物取引業協会会員(一社)九州不動産公正取引協議会加盟
取引態様:売主 |
- 提携サイト等より掲載されている物件情報につきましては、不動産会社詳細情報にリンクされていないものがあります。
- 物件に関するお問合せは、物件詳細ページの「情報提供会社」に表示されている不動産会社へ直接お願いいたします。
- 間取図は、現況を優先させていただきます。
- 映像は物件の一部を撮影したものです。物件の契約にあたっての最終判断はご自身の判断に基づいて行ってください。
- 仲介手数料について

アットホームは物件情報の適正化に努めております。
内容に誤りがある場合にはこちらへご連絡ください。