東京都中央区晴海5丁目(勝どき駅)の中古マンション・新築マンション・分譲マンション:物件詳細
交通 所在地 |
駅徒歩 |
価格 |
構造 階建/階 |
間取り 専有面積 |
物件種目 築年月 |
|
都営大江戸線/勝どき
東京都中央区晴海5丁目
|
15分
|
12,380万円
|
RC
地上16階地下1階建 / 5階
|
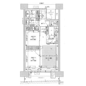
2LDK
67.79m²
|
中古マンション
2023年11月(築2年5ヶ月)
|
|
常時ゴミ出し可能、24時間セキュリティー、管理人日勤
|
|
間取図
|
外観
|
<
その他の画像
>
|
| 交通 | 都営大江戸線 勝どき駅 徒歩15分 |
| 所在地 |
東京都中央区晴海5丁目
|
| 物件種目 |
中古マンション |
| 価格 |
12,380万円 |
平米単価 |
182.63万円 |
| 管理費等 |
21,010円 |
修繕積立金 |
11,320円 |
| 借地期間・地代(月額) |
- |
権利金 |
- |
| 敷金または保証金 |
- / - |
維持費等 |
HARUMI FLAG CLUB会費:500円/月、インターネット料:2,750円/月、自治会費:100円/月 |
| その他一時金 |
- |
|
|
| 間取り |
2LDK(洋 7・5 LDK 17.5) |
専有面積 |
67.79m²(壁芯) |
| 階建 / 階 |
地上16階地下1階建 / 5階 |
バルコニー |
11.04m² |
| 築年月 |
2023年11月(築2年5ヶ月)
|
建物構造 |
RC |
| 駐車場 |
空無 |
総戸数 |
236戸 |
| 駐輪場 |
- |
バイク置き場 |
- |
| ペット |
-
|
|
|
| 土地権利 |
所有権 |
敷地面積 |
- |
| 管理形態/管理員の勤務形態 |
全部委託/日勤(三菱地所コミュニティ株式会社) |
国土法届出 |
- |
| アピールポイント |
★南東向き、心地よい日当たり
★開放感溢れるリビング、床暖房付き
★子育て世帯に嬉しい充実した教育環境
★緑・公園・生活・医療施設が徒歩圏に充実
★大規模再開発エリアならではの快適さと安全性 |
| 建物名・部屋番号 |
|
| リフォーム履歴 |
- |
| リノベーション履歴 |
- |
| 瑕疵保証 |
- |
| 瑕疵保険 |
- |
| 評価・証明書 |
- |
| 備考 |
主要採光面:南東向き
用途地域:商業地域
現況:居住中、内見事前予約制
|
| エネルギー消費性能 |
- |
| 断熱性能 |
- |
| 目安光熱費 |
- |
| バス・トイレ |
ミストサウナ、浴室暖房、浴室乾燥機、温水洗浄便座 |
| キッチン |
システムキッチン |
| 設備・サービス |
モニター付オートロック、エアコン2台以上、室内洗濯機置場、クローゼット、防犯カメラ、給湯、照明器具、インターネット対応 |
| その他 |
宅配BOX、エレベーター |
| 条件等 |
- |
現況 |
空家 |
| 引渡可能時期 |
2026年2月上旬予定 |
物件番号 |
6988627038 |
| 仲介手数料 |
不要 |
|
|
| 情報公開日 |
2025年12月3日 |
次回更新予定日 |
2026年3月19日 |
| ケータイ用バーコード |
- スマートフォンでこの物件を見る
- スマートフォンからもこの物件をご覧になれます。
|
※「-」と表示されている項目については、情報提供会社にご確認ください。
| 周辺施設 |
サミットストアららテラスHARUMI FLAG店 |
| 距離 |
278m |
| 周辺施設 |
ポピンズナーサリースクールららテラスHARUMI FLAG |
| 距離 |
282m |
| 周辺施設 |
医療法人社団クリタ会聖カタリナ病院 |
| 距離 |
768m |
ここから簡単にお問い合わせをすることができます。
(SSLでの暗号化での送信を希望されるお客さまは
こちら
よりお問い合わせください)
お問い合わせを行う前に
「個人情報の取り扱いについて」を必ずお読みください。
「個人情報の取り扱いについて」に同意いただいた場合は「上記にご同意の上 確認画面へ進む」のボタンをクリックしてください。
個人情報の取り扱いについて
皆さまが送付された個人情報はアットホーム(株)のサーバを経由し、お問い合わせ先の不動産会社にメールまたはFAXにて転送されるためアットホーム(株)にも保管されます。アットホーム(株)で保管された個人情報の取り扱いについては、【こちら】をご覧ください。
また、本画面でご記入いただいた個人情報は、お問い合わせ先の不動産会社でも保管します。 お問い合わせ先の不動産会社が保管する個人情報の取り扱いについては、不動産会社に直接お問い合わせください。
東京都知事免許(2)第104116号 |
|---|
- 交通:
- JR山手線/池袋駅 徒歩1分
- 東京都豊島区西池袋1丁目25-1 恩田ビルディング5階
- TEL:
- 03-5956-3188
- FAX:
- 03-6914-2681
- 所属団体:
- (公社)東京都宅地建物取引業協会会員(公社)首都圏不動産公正取引協議会加盟
取引態様:売主  - 00268266
|
- スマートフォンで
この不動産会社を見る

|
- 提携サイト等より掲載されている物件情報につきましては、不動産会社詳細情報にリンクされていないものがあります。
- 物件に関するお問合せは、物件詳細ページの「情報提供会社」に表示されている不動産会社へ直接お願いいたします。
- 間取図は、現況を優先させていただきます。
- 映像は物件の一部を撮影したものです。物件の契約にあたっての最終判断はご自身の判断に基づいて行ってください。
- 仲介手数料について

アットホームは物件情報の適正化に努めております。
内容に誤りがある場合にはこちらへご連絡ください。