岩手県盛岡市本宮1丁目(盛岡駅)の中古マンション・新築マンション・分譲マンション:物件詳細
交通 所在地 |
駅徒歩 |
価格 |
構造 階建/階 |
間取り 専有面積 |
物件種目 築年月 |
|
JR東北本線/盛岡
岩手県盛岡市本宮1丁目
|
20分
|
2,780万円
|
RC
14階建 / 1階
|
3LDK
69.41m²
|
中古マンション
2008年11月(築17年4ヶ月)
|
|
ペット相談、南向き、振分、アウトフレーム工法、2面採光、バリアフリー、閑静な住宅街、外観タイル張り、管理人日勤
|
|
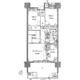
間取図
◇2025年6月室内リフォーム済◇床ウスイータ上貼済◇巾木・クロス貼替済◇スイッチ・コンセント・カーテンレール・ダウンライト・ドアノブ交換等済◇給湯機交換済◇
|
外観
◇南向き◇陽当たり・住環境良好です◇本宮小学校まで約160m◇
|
<
その他の画像
>
|
| 交通 | JR東北本線 盛岡駅 徒歩20分 |
|---|
| その他の交通 | JR東北本線 仙北町駅 徒歩15分 |
| 所在地 |
岩手県盛岡市本宮1丁目
|
| 物件種目 |
中古マンション |
| 価格 |
2,780万円 |
平米単価 |
40.06万円 |
| 管理費等 |
9,230円 |
修繕積立金 |
17,100円 |
| 借地期間・地代(月額) |
- |
権利金 |
- |
| 敷金または保証金 |
- / - |
維持費等 |
- |
| その他一時金 |
- |
|
|
| 間取り |
3LDK(和 4.5 洋 6・5 LDK 14.1) |
専有面積 |
69.41m²(壁芯) |
| 階建 / 階 |
14階建 / 1階 |
バルコニー |
20.91m² |
| 築年月 |
2008年11月(築17年4ヶ月)
|
建物構造 |
RC |
| 駐車場 |
有 3,000円/月 |
総戸数 |
- |
| 駐輪場 |
- |
バイク置き場 |
- |
| ペット |
小型犬可 |
|
|
| 土地権利 |
所有権 |
敷地面積 |
- |
| 管理形態/管理員の勤務形態 |
全部委託/日勤(大和ライフネクスト株式会社) |
国土法届出 |
- |
| 建物名・部屋番号 |
プレミスト盛南エクセルステージ |
| リフォーム履歴 |
■水回り:2025年6月 キッチン、浴室、トイレ、洗面所、給湯器 ◇システムキッチン(食洗器付)・ユニットバス交換済◇洗面台水栓・下台交換済◇トイレ便座交換済◇ ■内装:2025年6月 全室クロス張替え、床(フローリング等)、壁・天井(クロス・塗装等) ◇クロス・巾木・CF貼替済◇床(ウスイータ)上貼済◇スイッチ・コンセント・カーテンレール・ドアノブ等交換済◇ ※実施年月は最も古い履歴を表示 |
| リノベーション履歴 |
- |
| 瑕疵保証 |
- |
| 瑕疵保険 |
- |
| 評価・証明書 |
- |
| 備考 |
主要採光面:南向き
施工会社:株式会社錢高組
【学区】本宮小学校、大宮中学校
|
| エネルギー消費性能 |
- |
| 断熱性能 |
- |
| 目安光熱費 |
- |
| バス・トイレ |
浴室暖房、浴室乾燥機、オートバス、追焚機能、シャワー付洗面化粧台、温水洗浄便座 |
| キッチン |
カウンターキッチン、システムキッチン、食器洗浄乾燥機、浄水器、2WAYキッチン、IHクッキングヒーター、3口以上コンロ、グリル |
| 設備・サービス |
モニター付オートロック、全居室収納、床暖房、収納スペース、室内洗濯機置場、トランクルーム、クローゼット、オートロック、モニター付インターホン、ディンプルキー、ダブルロックドア、防犯カメラ、給湯、都市ガス、テラス、人感センサー付照明、ダウンライト、火災警報器(報知機)、複層ガラス |
| その他 |
宅配BOX、ペット用施設、共用シアタールーム、エレベーター2基以上、共用ゲストルーム、来客用駐車場、エレベーター |
| 条件等 |
- |
現況 |
空家 |
| 引渡可能時期 |
即時 |
物件番号 |
6988630527 |
| 情報公開日 |
2025年12月4日 |
次回更新予定日 |
2026年2月6日 |
| ケータイ用バーコード |
- スマートフォンでこの物件を見る
- スマートフォンからもこの物件をご覧になれます。
|
※「-」と表示されている項目については、情報提供会社にご確認ください。
| 周辺施設 |
マルイチ本宮店(24時間営業) |
| 距離 |
746m |
写真を見る |
| 周辺施設 |
ローソン盛岡本宮店 |
| 距離 |
366m |
写真を見る |
| 周辺施設 |
薬王堂盛岡本宮店 |
| 距離 |
769m |
写真を見る |
| 周辺施設 |
大宮中学校 |
| 距離 |
3050m |
写真を見る |
| 周辺施設 |
ファミリーマート盛岡西仙北一丁目店 |
| 距離 |
530m |
写真を見る |
ここから簡単にお問い合わせをすることができます。
(SSLでの暗号化での送信を希望されるお客さまは
こちら
よりお問い合わせください)
お問い合わせを行う前に
「個人情報の取り扱いについて」を必ずお読みください。
「個人情報の取り扱いについて」に同意いただいた場合は「上記にご同意の上 確認画面へ進む」のボタンをクリックしてください。
個人情報の取り扱いについて
皆さまが送付された個人情報はアットホーム(株)のサーバを経由し、お問い合わせ先の不動産会社にメールまたはFAXにて転送されるためアットホーム(株)にも保管されます。アットホーム(株)で保管された個人情報の取り扱いについては、【こちら】をご覧ください。
また、本画面でご記入いただいた個人情報は、お問い合わせ先の不動産会社でも保管します。 お問い合わせ先の不動産会社が保管する個人情報の取り扱いについては、不動産会社に直接お問い合わせください。
国土交通大臣免許(3)第8510号 |
|---|
- 交通:
- JR東北本線/盛岡駅 徒歩10分
- 岩手県盛岡市大通3丁目2-6 KCビル1階
- TEL:
- 019-604-3456
- FAX:
- 019-604-3466
- 所属団体:
- (一社)岩手県宅地建物取引業協会会員東北地区不動産公正取引協議会加盟
取引態様:一般媒介  - 20001894
|
- スマートフォンで
この不動産会社を見る

|
- 提携サイト等より掲載されている物件情報につきましては、不動産会社詳細情報にリンクされていないものがあります。
- 物件に関するお問合せは、物件詳細ページの「情報提供会社」に表示されている不動産会社へ直接お願いいたします。
- 間取図は、現況を優先させていただきます。
- 映像は物件の一部を撮影したものです。物件の契約にあたっての最終判断はご自身の判断に基づいて行ってください。
- 仲介手数料について

アットホームは物件情報の適正化に努めております。
内容に誤りがある場合にはこちらへご連絡ください。