福岡県福岡市南区井尻4丁目(井尻駅)の中古マンション・新築マンション・分譲マンション:物件詳細
交通 所在地 |
駅徒歩 |
価格 |
構造 階建/階 |
間取り 専有面積 |
物件種目 築年月 |
|
西鉄天神大牟田線/井尻
福岡県福岡市南区井尻4丁目
|
3分
|
3,980万円
|
RC
10階建 / 3階
|
3LDK
69.57m²
|
中古マンション
2000年10月(築25年3ヶ月)
|
|
楽器相談、振分、外観タイル張り、区画整理地内、前面棟無、管理人日勤
|
|
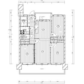
間取図
|
外観
|
その他の画像
|
| 交通 | 西鉄天神大牟田線 井尻駅 徒歩3分 |
|---|
| その他の交通 | JR鹿児島本線 笹原駅 徒歩11分 西鉄天神大牟田線 大橋駅 徒歩26分 |
| 所在地 |
福岡県福岡市南区井尻4丁目
|
| 物件種目 |
中古マンション |
| 価格 |
3,980万円 |
平米単価 |
57.21万円 |
| 管理費等 |
5,560円 |
修繕積立金 |
12,520円 |
| 借地期間・地代(月額) |
- |
権利金 |
- |
| 敷金または保証金 |
- / - |
維持費等 |
町内会費:300円/月 |
| その他一時金 |
- |
|
|
| 間取り |
3LDK(洋 5.7・6.3・6.1 LDK 14.4) |
専有面積 |
69.57m²(壁芯) |
| 階建 / 階 |
10階建 / 3階 |
バルコニー |
18.72m² |
| 築年月 |
2000年10月(築25年3ヶ月)
|
建物構造 |
RC |
| 駐車場 |
有 5,500円/月 |
総戸数 |
45戸 |
| 駐輪場 |
有 無料 |
バイク置き場 |
有 500円/月 |
| ペット |
-
|
|
|
| 土地権利 |
所有権 |
敷地面積 |
- |
| 管理形態/管理員の勤務形態 |
全部委託/日勤(タッケン管理管理サービス(株)) |
国土法届出 |
- |
| アピールポイント |
『井尻駅』まで徒歩3分!!2026年2月末リフォーム完成予定☆★築25年3LDK(69.75㎡)スーパーやコンビニなど周辺環境も充実です。リフォーム内容は、住宅設備機器取替、クロス全室貼替、フローリング床上張り、清掃等しっかり工事いたします。敷地内駐車場空有(※機械式規定あり)気になる方はお気軽にお問い合わせください。 |
| 建物名・部屋番号 |
サングレート井尻駅前 |
| リフォーム履歴 |
■水回り:2026年2月 キッチン、浴室、トイレ、洗面所、給排水管、給湯器 ■内装:2026年2月 内装全面(床・壁・天井・建具) ※実施年月は最も古い履歴を表示 |
| リノベーション履歴 |
- |
| 瑕疵保証 |
- |
| 瑕疵保険 |
- |
| 評価・証明書 |
- |
| 備考 |
主要採光面:南東向き
施工会社:梅林建設
用途地域:近隣商業
延べ面積:3,565.36m²
■2026年2月末リフォーム工事完成予定
■住宅設備機器取替、クロス貼替、床上張り等
■西鉄天神大牟田線『井尻駅』徒歩3分
■3LDK:69.57㎡ バルコニー面積:18.72㎡
■スーパーやコンビニなど周辺環境充実
■防犯カメラ、モニター付きインターホン、宅配ボックス
【令和7年度】
固定資産税年税:109,366円
土地評価額:5,337,751円
建物評価額:5,487,270円
|
| エネルギー消費性能 |
- |
| 断熱性能 |
- |
| 目安光熱費 |
- |
| バス・トイレ |
浴室暖房、浴室乾燥機、オートバス、追焚機能、シャワー付洗面化粧台、温水洗浄便座、浴室に窓あり |
| キッチン |
システムキッチン、食器洗浄乾燥機、IHクッキングヒーター |
| 設備・サービス |
モニター付オートロック、全居室収納、バイク置き場、収納スペース、室内洗濯機置場、クローゼット、オートロック、モニター付インターホン、防犯カメラ、給湯、全居室フローリング、都市ガス、二面バルコニー、駐輪場、ダウンライト、照明器具、火災警報器(報知機)、インターネット対応、ケーブルTV、CS、BS端子 |
| その他 |
宅配BOX、エレベーター |
| 条件等 |
- |
現況 |
空家 |
| 引渡可能時期 |
2026年2月下旬予定 |
物件番号 |
6988638889 |
| 情報公開日 |
2025年12月4日 |
次回更新予定日 |
2025年12月31日 |
| ケータイ用バーコード |
- スマートフォンでこの物件を見る
- スマートフォンからもこの物件をご覧になれます。
|
※「-」と表示されている項目については、情報提供会社にご確認ください。
| 周辺施設 |
マックスバリュエクスプレス井尻駅前店 |
| 距離 |
150m |
| 周辺施設 |
ファミリーマート福岡井尻四丁目店 |
| 距離 |
29m |
ここから簡単にお問い合わせをすることができます。
(SSLでの暗号化での送信を希望されるお客さまは
こちら
よりお問い合わせください)
お問い合わせを行う前に
「個人情報の取り扱いについて」を必ずお読みください。
「個人情報の取り扱いについて」に同意いただいた場合は「上記にご同意の上 確認画面へ進む」のボタンをクリックしてください。
個人情報の取り扱いについて
皆さまが送付された個人情報はアットホーム(株)のサーバを経由し、お問い合わせ先の不動産会社にメールまたはFAXにて転送されるためアットホーム(株)にも保管されます。アットホーム(株)で保管された個人情報の取り扱いについては、【こちら】をご覧ください。
また、本画面でご記入いただいた個人情報は、お問い合わせ先の不動産会社でも保管します。 お問い合わせ先の不動産会社が保管する個人情報の取り扱いについては、不動産会社に直接お問い合わせください。
福岡県知事免許(2)第18655号 |
|---|
- 交通:
- 地下鉄空港線/東比恵駅 徒歩14分
- 福岡県福岡市博多区上牟田1丁目28-5
- TEL:
- 092-410-3764
- FAX:
- 092-510-7268
- 所属団体:
- (公社)福岡県宅地建物取引業協会会員(一社)九州不動産公正取引協議会加盟
取引態様:売主  - 80503795
|
- スマートフォンで
この不動産会社を見る

|
- 提携サイト等より掲載されている物件情報につきましては、不動産会社詳細情報にリンクされていないものがあります。
- 物件に関するお問合せは、物件詳細ページの「情報提供会社」に表示されている不動産会社へ直接お願いいたします。
- 間取図は、現況を優先させていただきます。
- 映像は物件の一部を撮影したものです。物件の契約にあたっての最終判断はご自身の判断に基づいて行ってください。
- 仲介手数料について

アットホームは物件情報の適正化に努めております。
内容に誤りがある場合にはこちらへご連絡ください。