神奈川県川崎市中原区上小田中6丁目(武蔵中原駅)の中古マンション・新築マンション・分譲マンション:物件詳細
交通 所在地 |
駅徒歩 |
価格 |
構造 階建/階 |
間取り 専有面積 |
物件種目 築年月 |
|
JR南武線/武蔵中原
神奈川県川崎市中原区上小田中6丁目
|
8分
|
5,190万円
|
RC
5階建 / 3階
|
2LDK
60.88m²
|
中古マンション
1996年10月(築29年3ヶ月)
|
|
管理人日勤
|
|
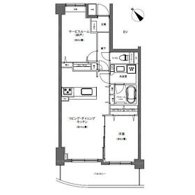
間取図
物が増えがちな方にうれしい、広い収納スペース
|
外観
「見かけが好き」も物件選びの立派な決め手のひとつ
|
<
その他の画像
>
|
| 交通 | JR南武線 武蔵中原駅 徒歩8分 |
| 所在地 |
神奈川県川崎市中原区上小田中6丁目
|
| 物件種目 |
中古マンション |
| 価格 |
5,190万円 |
平米単価 |
85.25万円 |
| 管理費等 |
15,200円 |
修繕積立金 |
18,810円 |
| 借地期間・地代(月額) |
- |
権利金 |
- |
| 敷金または保証金 |
- / - |
維持費等 |
- |
| その他一時金 |
- |
|
|
| 間取り |
2LDK(洋 6・6 LDK 14.2) |
専有面積 |
60.88m²(壁芯) |
| 階建 / 階 |
5階建 / 3階 |
バルコニー |
12.11m² |
| 築年月 |
1996年10月(築29年3ヶ月)
|
建物構造 |
RC |
| 駐車場 |
- |
総戸数 |
26戸 |
| 駐輪場 |
- |
バイク置き場 |
- |
| ペット |
-
|
|
|
| 土地権利 |
所有権 |
敷地面積 |
- |
| 管理形態/管理員の勤務形態 |
全部委託/日勤(㈱モリモトクオリティ) |
国土法届出 |
- |
| アピールポイント |
~物件のおすすめポイント~
◆3階部分南西向きの為陽当たり良好
◆前面公園の為、遮蔽物無く眺望良好
◆敷地内駐車場空あり(2025年11月時点)
◆宅配ボックスあり
~リフォーム内容~
・システムキッチン交換(浄水器・食洗機付)・洗面化粧台新規交換
・ユニットバス新規交換(浴室乾燥機能付)・トイレ交換(温水洗浄機能付)
・クロス張替・フローリング張替・建具交換等
※2026年2月上旬完了予定
リフォーム完了前ですが、内見可能です。
同社施工の参考現場へのご案内も承っております。
担当直通:070-3204-2417 |
| 建物名・部屋番号 |
クレッセント等々力緑地Ⅱ |
| リフォーム履歴 |
■水回り:2026年2月 キッチン、浴室、トイレ、洗面所、給排水管、給湯器 ■内装:2026年2月 内装全面(床・壁・天井・建具) ※実施年月は最も古い履歴を表示 |
| リノベーション履歴 |
- |
| 瑕疵保証 |
- |
| 瑕疵保険 |
- |
| 評価・証明書 |
- |
| 備考 |
主要採光面:南西向き
告知事項有
|
| エネルギー消費性能 |
- |
| 断熱性能 |
- |
| 目安光熱費 |
- |
| バス・トイレ |
浴室乾燥機、オートバス、追焚機能 |
| キッチン |
カウンターキッチン、システムキッチン、食器洗浄乾燥機、浄水器、3口以上コンロ |
| 設備・サービス |
全居室収納、収納スペース、室内洗濯機置場、クローゼット、給湯、全居室フローリング、人感センサー付照明、ダウンライト、照明器具 |
| その他 |
宅配BOX、エレベーター |
| 条件等 |
- |
現況 |
空家 |
| 引渡可能時期 |
相談 |
物件番号 |
6988662079 |
| 情報公開日 |
2025年12月6日 |
次回更新予定日 |
2026年1月2日 |
| ケータイ用バーコード |
- スマートフォンでこの物件を見る
- スマートフォンからもこの物件をご覧になれます。
|
※「-」と表示されている項目については、情報提供会社にご確認ください。
ここから簡単にお問い合わせをすることができます。
(SSLでの暗号化での送信を希望されるお客さまは
こちら
よりお問い合わせください)
お問い合わせを行う前に
「個人情報の取り扱いについて」を必ずお読みください。
「個人情報の取り扱いについて」に同意いただいた場合は「上記にご同意の上 確認画面へ進む」のボタンをクリックしてください。
個人情報の取り扱いについて
皆さまが送付された個人情報はアットホーム(株)のサーバを経由し、お問い合わせ先の不動産会社にメールまたはFAXにて転送されるためアットホーム(株)にも保管されます。アットホーム(株)で保管された個人情報の取り扱いについては、【こちら】をご覧ください。
また、本画面でご記入いただいた個人情報は、お問い合わせ先の不動産会社でも保管します。 お問い合わせ先の不動産会社が保管する個人情報の取り扱いについては、不動産会社に直接お問い合わせください。
東京都知事免許(6)第77311号 |
|---|
- 交通:
- 東急池上線/洗足池駅 徒歩3分
- 東京都大田区南千束1丁目32-6-103
- TEL:
- 03-3726-4726
- FAX:
- 03-3726-4736
- 所属団体:
- (公社)全日本不動産協会会員(公社)首都圏不動産公正取引協議会加盟
取引態様:媒介  - 00140699
|
- スマートフォンで
この不動産会社を見る

|
- 提携サイト等より掲載されている物件情報につきましては、不動産会社詳細情報にリンクされていないものがあります。
- 物件に関するお問合せは、物件詳細ページの「情報提供会社」に表示されている不動産会社へ直接お願いいたします。
- 間取図は、現況を優先させていただきます。
- 映像は物件の一部を撮影したものです。物件の契約にあたっての最終判断はご自身の判断に基づいて行ってください。
- 仲介手数料について

アットホームは物件情報の適正化に努めております。
内容に誤りがある場合にはこちらへご連絡ください。