佐賀県佐賀市与賀町(佐賀駅)の中古マンション・新築マンション・分譲マンション:物件詳細
交通 所在地 |
駅徒歩 |
価格 |
構造 階建/階 |
間取り 専有面積 |
物件種目 築年月 |
|
JR長崎本線/佐賀
佐賀県佐賀市与賀町
|
24分
|
4,550万円
|
RC
14階建 / 4階
|
2LDK
68.70m²
|
中古マンション
2025年3月(築1年1ヶ月)
|
|
ペット相談、南向き、24時間換気システム、バリアフリー、前面棟無、管理人日勤
|
|
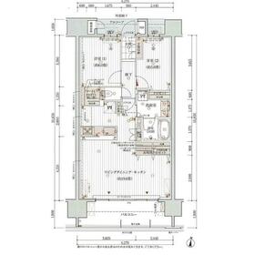
間取図
使い勝手の良い2LDKです、収納も多くて、いざという時の備蓄倉庫がgoodです(^▽^)/
|
外観
「趣」や「風情」が安心感をマイホームにプラス、景色に溶け込むスタイルです(^▽^)/
|
<
その他の画像
>
|
| 交通 | JR長崎本線 佐賀駅 徒歩24分 |
| 所在地 |
佐賀県佐賀市与賀町
|
| 物件種目 |
中古マンション |
| 価格 |
4,550万円 |
平米単価 |
66.23万円 |
| 管理費等 |
9,620円 |
修繕積立金 |
6,870円 |
| 借地期間・地代(月額) |
- |
権利金 |
- |
| 敷金または保証金 |
- / - |
維持費等 |
- |
| その他一時金 |
- |
|
|
| 間取り |
2LDK(洋 6・5 LDK 19.6) |
専有面積 |
68.70m²(壁芯) |
| 階建 / 階 |
14階建 / 4階 |
バルコニー |
11.20m² |
| 築年月 |
2025年3月(築1年1ヶ月)
|
建物構造 |
RC |
| 駐車場 |
有 11,000円/月 |
総戸数 |
87戸 |
| 駐輪場 |
有 300円/月 |
バイク置き場 |
- |
| ペット |
小型犬可・ 猫可 |
|
|
| 土地権利 |
所有権 |
敷地面積 |
1,660.67m² |
| 管理形態/管理員の勤務形態 |
全部委託/日勤 |
国土法届出 |
- |
| アピールポイント |
県庁前バス停から徒歩3分。図書館や博物館、公園が近く、文化的な落ち着いた環境です。
ロケーションがとっても素敵です!南面に広がる、永遠の緑。遮るもののない開放感を、わが家に。 |
| 建物名・部屋番号 |
|
| リフォーム履歴 |
- |
| リノベーション履歴 |
- |
| 瑕疵保証 |
- |
| 瑕疵保険 |
- |
| 評価・証明書 |
- |
| 備考 |
主要採光面:南向き
用途地域:商業地域、1種住居
|
| エネルギー消費性能 |
- |
| 断熱性能 |
- |
| 目安光熱費 |
- |
| バス・トイレ |
追焚機能 |
| キッチン |
3口以上コンロ |
| 設備・サービス |
エアコン2台以上、全居室フローリング、都市ガス、駐輪場、複層ガラス |
| その他 |
エレベーター2基以上 |
| 条件等 |
- |
現況 |
空家 |
| 引渡可能時期 |
即時 |
物件番号 |
6988663004 |
| 仲介手数料 |
売買代金の3%+6万円 |
|
|
| 情報公開日 |
2025年12月6日 |
次回更新予定日 |
2026年4月7日 |
| ケータイ用バーコード |
- スマートフォンでこの物件を見る
- スマートフォンからもこの物件をご覧になれます。
|
※「-」と表示されている項目については、情報提供会社にご確認ください。
| 周辺施設 |
ファミリーマート佐賀県庁店 |
| 距離 |
311m |
| 周辺施設 |
スターバックスコーヒー佐賀大学通り店 |
| 距離 |
631m |
| 周辺施設 |
国立佐賀大学教育学部附属中学校 |
| 距離 |
784m |
ここから簡単にお問い合わせをすることができます。
(SSLでの暗号化での送信を希望されるお客さまは
こちら
よりお問い合わせください)
お問い合わせを行う前に
「個人情報の取り扱いについて」を必ずお読みください。
「個人情報の取り扱いについて」に同意いただいた場合は「上記にご同意の上 確認画面へ進む」のボタンをクリックしてください。
個人情報の取り扱いについて
皆さまが送付された個人情報はアットホーム(株)のサーバを経由し、お問い合わせ先の不動産会社にメールまたはFAXにて転送されるためアットホーム(株)にも保管されます。アットホーム(株)で保管された個人情報の取り扱いについては、【こちら】をご覧ください。
また、本画面でご記入いただいた個人情報は、お問い合わせ先の不動産会社でも保管します。 お問い合わせ先の不動産会社が保管する個人情報の取り扱いについては、不動産会社に直接お問い合わせください。
国土交通大臣免許(4)第7725号 |
|---|
- 交通:
- JR長崎本線/佐賀駅 徒歩10分 【バス】1分 西神野
- 佐賀県佐賀市神野西2丁目6-48 倉重ビル1F
- TEL:
- 0952-60-7030
- FAX:
- 0952-60-7031
- 所属団体:
- (公社)佐賀県宅地建物取引業協会会員(一社)九州不動産公正取引協議会加盟
取引態様:専任媒介  - 80504418
|
- スマートフォンで
この不動産会社を見る

|
- 提携サイト等より掲載されている物件情報につきましては、不動産会社詳細情報にリンクされていないものがあります。
- 物件に関するお問合せは、物件詳細ページの「情報提供会社」に表示されている不動産会社へ直接お願いいたします。
- 間取図は、現況を優先させていただきます。
- 映像は物件の一部を撮影したものです。物件の契約にあたっての最終判断はご自身の判断に基づいて行ってください。
- 仲介手数料について

アットホームは物件情報の適正化に努めております。
内容に誤りがある場合にはこちらへご連絡ください。