神奈川県横浜市青葉区藤が丘2丁目(藤が丘駅)の中古マンション・新築マンション・分譲マンション:物件詳細
交通 所在地 |
駅徒歩 |
価格 |
構造 階建/階 |
間取り 専有面積 |
物件種目 築年月 |
|
東急田園都市線/藤が丘
神奈川県横浜市青葉区藤が丘2丁目
|
3分
|
7,698万円
|
RC
5階建 / 3階
|
3LDK
70.80m²
|
新築マンション
2025年9月
|
|
ペット相談、常時ゴミ出し可能、角部屋、24時間セキュリティー、外壁コンクリート、二重床・二重天井、3面採光、24時間換気システム、閑静な住宅街、外観タイル張り、設計住宅性能評価書あり、建設住宅性能評価書あり、管理人日勤
|
|
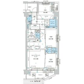
間取図
3LDK70.80㎡ 3面採光、角部屋
|
外観
2025年9月竣工
|
<
その他の画像
>
|
| 交通 | 東急田園都市線 藤が丘駅 徒歩3分 |
|---|
| その他の交通 | 東急田園都市線 青葉台駅 徒歩13分 |
| 所在地 |
神奈川県横浜市青葉区藤が丘2丁目
|
| 物件種目 |
新築マンション |
| 価格 |
7,698万円 |
平米単価 |
108.73万円 |
| 管理費等 |
20,270円 |
修繕積立金 |
7,080円 |
| 借地期間・地代(月額) |
- |
権利金 |
- |
| 敷金または保証金 |
- / - |
維持費等 |
- |
| その他一時金 |
- |
|
|
| 間取り |
3LDK(洋 6・5.7・5) |
専有面積 |
70.80m²(壁芯) |
| 階建 / 階 |
5階建 / 3階 |
バルコニー |
8.81m² |
| 築年月 |
2025年9月
|
建物構造 |
RC |
| 駐車場 |
- |
総戸数 |
24戸 |
| 駐輪場 |
有 500円/月 |
バイク置き場 |
有 3,000円/月 |
| ペット |
小型犬可・ 猫可 |
|
|
| 土地権利 |
所有権 |
敷地面積 |
- |
| 管理形態/管理員の勤務形態 |
全部委託/日勤 |
国土法届出 |
- |
| アピールポイント |
東急田園都市線「藤が丘」駅徒歩3分の好立地。駅近にかかわらず周辺は住居系専用地域となっているおり、利便性と静かな住環境を叶えられるロケーションとなっています。 |
| 建物名・部屋番号 |
ドルフィーノ青葉藤が丘 305 |
| リフォーム履歴 |
- |
| リノベーション履歴 |
- |
| 瑕疵保証 |
- |
| 瑕疵保険 |
- |
| 評価・証明書 |
- |
| 備考 |
主要採光面:南西向き
用途地域:2種中高
|
| エネルギー消費性能 |
- |
| 断熱性能 |
- |
| 目安光熱費 |
- |
| バス・トイレ |
浴室乾燥機、オートバス、追焚機能、シャワー付洗面化粧台、温水洗浄便座 |
| キッチン |
カウンターキッチン、システムキッチン、食器洗浄乾燥機、浄水器、3口以上コンロ |
| 設備・サービス |
モニター付オートロック、全居室収納、ウォークインクローゼット、バイク置き場、収納スペース、室内洗濯機置場、シューズインクローゼット、モニター付インターホン、ディンプルキー、ダブルロックドア、防犯カメラ、全居室フローリング、都市ガス、駐輪場、人感センサー付照明、ダウンライト、インターネット対応、光ファイバー、ケーブルTV、BS端子、複層ガラス |
| その他 |
宅配BOX、エレベーター |
| 条件等 |
- |
現況 |
完成済 |
| 引渡可能時期 |
2026年3月中旬予定 |
物件番号 |
6988664853 |
| 仲介手数料 |
不要 |
|
|
| 情報公開日 |
2025年12月6日 |
次回更新予定日 |
2025年12月29日 |
| ケータイ用バーコード |
- スマートフォンでこの物件を見る
- スマートフォンからもこの物件をご覧になれます。
|
※「-」と表示されている項目については、情報提供会社にご確認ください。
| 周辺施設 |
ファミリーマート藤が丘駅南口店 |
| 距離 |
263m |
ここから簡単にお問い合わせをすることができます。
(SSLでの暗号化での送信を希望されるお客さまは
こちら
よりお問い合わせください)
お問い合わせを行う前に
「個人情報の取り扱いについて」を必ずお読みください。
「個人情報の取り扱いについて」に同意いただいた場合は「上記にご同意の上 確認画面へ進む」のボタンをクリックしてください。
個人情報の取り扱いについて
皆さまが送付された個人情報はアットホーム(株)のサーバを経由し、お問い合わせ先の不動産会社にメールまたはFAXにて転送されるためアットホーム(株)にも保管されます。アットホーム(株)で保管された個人情報の取り扱いについては、【こちら】をご覧ください。
また、本画面でご記入いただいた個人情報は、お問い合わせ先の不動産会社でも保管します。 お問い合わせ先の不動産会社が保管する個人情報の取り扱いについては、不動産会社に直接お問い合わせください。
神奈川県知事免許(3)第27858号 |
|---|
- 交通:
- 東急田園都市線/溝の口駅 徒歩4分
- 神奈川県川崎市高津区久本1丁目5-18 フォーゲル1階
- TEL:
- 044-750-7250
- FAX:
- 044-750-7252
- 所属団体:
- (公社)神奈川県宅地建物取引業協会会員(公社)首都圏不動産公正取引協議会加盟
取引態様:代理  - 00260152
|
- スマートフォンで
この不動産会社を見る

|
- 提携サイト等より掲載されている物件情報につきましては、不動産会社詳細情報にリンクされていないものがあります。
- 物件に関するお問合せは、物件詳細ページの「情報提供会社」に表示されている不動産会社へ直接お願いいたします。
- 間取図は、現況を優先させていただきます。
- 映像は物件の一部を撮影したものです。物件の契約にあたっての最終判断はご自身の判断に基づいて行ってください。
- 仲介手数料について

アットホームは物件情報の適正化に努めております。
内容に誤りがある場合にはこちらへご連絡ください。