栃木県宇都宮市緑3丁目(西川田駅)の中古マンション・新築マンション・分譲マンション:物件詳細
交通 所在地 |
駅徒歩 |
価格 |
構造 階建/階 |
間取り 専有面積 |
物件種目 築年月 |
|
東武宇都宮線/西川田
栃木県宇都宮市緑3丁目
|
23分
|
1,100万円
|
RC
5階建 / 4階
|
3LDK
84.80m²
|
中古マンション
1992年7月(築33年6ヶ月)
|
|
角部屋、南向き、2面採光、外観タイル張り、管理人日勤
|
|
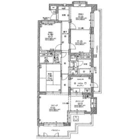
間取図
東南角部屋で陽当たり良好
|
外観
タイル貼りの外観
|
その他の画像
|
| 交通 | 東武宇都宮線 西川田駅 徒歩23分 |
|---|
| その他の交通 | 東武宇都宮線 江曽島駅 徒歩17分 |
| 所在地 |
栃木県宇都宮市緑3丁目
|
| 物件種目 |
中古マンション |
| 価格 |
1,100万円 |
平米単価 |
12.98万円 |
| 管理費等 |
14,430円 |
修繕積立金 |
17,810円 |
| 借地期間・地代(月額) |
13年3ヶ月 5,690円 |
権利金 |
- |
| 敷金または保証金 |
- / - |
維持費等 |
更新料積立金:1,270円/月、有線利用料:700円/月 |
| その他一時金 |
- |
|
|
| 間取り |
3LDK |
専有面積 |
84.80m²(壁芯) |
| 階建 / 階 |
5階建 / 4階 |
バルコニー |
20.27m² |
| 築年月 |
1992年7月(築33年6ヶ月)
|
建物構造 |
RC |
| 駐車場 |
有 4,000円/月 |
総戸数 |
- |
| 駐輪場 |
- |
バイク置き場 |
- |
| ペット |
-
|
|
|
| 土地権利 |
旧法賃借権 |
敷地面積 |
- |
| 管理形態/管理員の勤務形態 |
全部委託/日勤 |
国土法届出 |
- |
| アピールポイント |
南向の住居、更に室外へのアプローチを2箇所備えた2面バルコニーのある住戸なので、風の流れがフレッシュな空気を取り込みます。また広々とした延床面積84.8㎡の居室空間で、その上留守番いらずの宅配BOX付なので、ネット通販大好き派にはお勧めです。ちなみにお鍋とフライパンを使いながらヤカンもおけるコンロ3口以上付です。家族が帰宅を焦がれる3LDK。是非見学にお越しください。 |
| 建物名・部屋番号 |
ナイスステージ弐番館 |
| リフォーム履歴 |
- |
| リノベーション履歴 |
- |
| 瑕疵保証 |
- |
| 瑕疵保険 |
- |
| 評価・証明書 |
- |
| 備考 |
主要採光面:南向き
用途地域:1種住居
|
| エネルギー消費性能 |
- |
| 断熱性能 |
- |
| 目安光熱費 |
- |
| バス・トイレ |
オートバス、高温差湯式、シャワー付洗面化粧台、温水洗浄便座 |
| キッチン |
3口以上コンロ |
| 設備・サービス |
モニター付オートロック、都市ガス、エアコン、二面バルコニー、照明器具、火災警報器(報知機) |
| その他 |
宅配BOX、エレベーター |
| 条件等 |
- |
現況 |
空家 |
| 引渡可能時期 |
即時 |
物件番号 |
6988700184 |
| 情報公開日 |
2025年12月9日 |
次回更新予定日 |
2025年12月28日 |
| ケータイ用バーコード |
- スマートフォンでこの物件を見る
- スマートフォンからもこの物件をご覧になれます。
|
※「-」と表示されている項目については、情報提供会社にご確認ください。
| 周辺施設 |
ヨークベニマル西川田店 |
| 距離 |
1345m |
| 周辺施設 |
カンセキスタジアムとちぎ |
| 距離 |
978m |
| 周辺施設 |
とちのきファミリーランド |
| 距離 |
1542m |
ここから簡単にお問い合わせをすることができます。
(SSLでの暗号化での送信を希望されるお客さまは
こちら
よりお問い合わせください)
お問い合わせを行う前に
「個人情報の取り扱いについて」を必ずお読みください。
「個人情報の取り扱いについて」に同意いただいた場合は「上記にご同意の上 確認画面へ進む」のボタンをクリックしてください。
個人情報の取り扱いについて
皆さまが送付された個人情報はアットホーム(株)のサーバを経由し、お問い合わせ先の不動産会社にメールまたはFAXにて転送されるためアットホーム(株)にも保管されます。アットホーム(株)で保管された個人情報の取り扱いについては、【こちら】をご覧ください。
また、本画面でご記入いただいた個人情報は、お問い合わせ先の不動産会社でも保管します。 お問い合わせ先の不動産会社が保管する個人情報の取り扱いについては、不動産会社に直接お問い合わせください。
栃木県知事免許(4)第4625号 |
|---|
- 交通:
- JR東北本線/宇都宮駅 徒歩20分
- 栃木県宇都宮市元今泉7丁目5-3
- TEL:
- 028-689-4545
- FAX:
- 028-689-4546
- 所属団体:
- (公社)全日本不動産協会会員(公社)首都圏不動産公正取引協議会加盟
取引態様:一般媒介  - 00260728
|
- スマートフォンで
この不動産会社を見る

|
- 提携サイト等より掲載されている物件情報につきましては、不動産会社詳細情報にリンクされていないものがあります。
- 物件に関するお問合せは、物件詳細ページの「情報提供会社」に表示されている不動産会社へ直接お願いいたします。
- 間取図は、現況を優先させていただきます。
- 映像は物件の一部を撮影したものです。物件の契約にあたっての最終判断はご自身の判断に基づいて行ってください。
- 仲介手数料について

アットホームは物件情報の適正化に努めております。
内容に誤りがある場合にはこちらへご連絡ください。