長崎県長崎市籠町(新地中華街駅)の中古マンション・新築マンション・分譲マンション:物件詳細
交通 所在地 |
駅徒歩 |
価格 |
構造 階建/階 |
間取り 専有面積 |
物件種目 築年月 |
|
長崎電軌本線/新地中華街
長崎県長崎市籠町
|
6分
|
1,480万円
|
RC
6階建 / 6階
|
1LDK
42.37m²
|
中古マンション
1976年5月(築49年8ヶ月)
|
|
角部屋、最上階、2面採光、隣接建物距離2m以上、管理人巡回
|
|
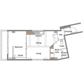
間取図
|
外観
裏からの外観写真になります。
|
<
その他の画像
>
|
| 交通 | 長崎電軌本線 新地中華街駅 徒歩6分 |
|---|
| その他の交通 | 長崎電軌大浦支線 メディカルセンター駅 徒歩6分 長崎電軌本線 思案橋駅 徒歩8分 |
| 所在地 |
長崎県長崎市籠町
|
| 物件種目 |
中古マンション |
| 価格 |
1,480万円 |
平米単価 |
34.94万円 |
| 管理費等 |
6,905円 |
修繕積立金 |
3,170円 |
| 借地期間・地代(月額) |
- |
権利金 |
- |
| 敷金または保証金 |
- / - |
維持費等 |
- |
| その他一時金 |
- |
|
|
| 間取り |
1LDK(洋 6 LDK 11) |
専有面積 |
42.37m²(壁芯) |
| 階建 / 階 |
6階建 / 6階 |
バルコニー |
3.30m² |
| 築年月 |
1976年5月(築49年8ヶ月)
|
建物構造 |
RC |
| 駐車場 |
無 |
総戸数 |
30戸 |
| 駐輪場 |
無 |
バイク置き場 |
無 |
| ペット |
-
|
|
|
| 土地権利 |
所有権 |
敷地面積 |
478.00m² |
| 管理形態/管理員の勤務形態 |
一部委託/巡回(株式会社ガードシステム) |
国土法届出 |
- |
| アピールポイント |
フルリノベーション物件。長崎ランタンフェスティバルど真ん中の好立地。お部屋からランタンを楽しめます。スーパー、コンビニ、病院、郵便局、公園全て徒歩圏内。まずは一度ご内覧下さい。賃貸でも同時募集中。 |
| 建物名・部屋番号 |
籠町エリートマンション 606 |
| リフォーム履歴 |
■水回り:2025年11月 キッチン、浴室、トイレ、洗面所 全て新品に交換済み ■内装:2025年11月 全室クロス張替え、床(フローリング等)、壁・天井(クロス・塗装等)、建具(室内ドア等) 室内干し対応済み。 ■その他:2025年11月 モニター付インターホン設置済み。 ※実施年月は最も古い履歴を表示 |
| リノベーション履歴 |
2025年11月 内装フルリノベーション済。 ※実施年月は最も古い履歴を表示 |
| 瑕疵保証 |
- |
| 瑕疵保険 |
- |
| 評価・証明書 |
- |
| 備考 |
用途地域:商業地域
再建築不可
|
| エネルギー消費性能 |
- |
| 断熱性能 |
- |
| 目安光熱費 |
- |
| バス・トイレ |
シャワールーム、温水洗浄便座 |
| キッチン |
IHクッキングヒーター |
| 設備・サービス |
収納スペース、室内洗濯機置場、クローゼット、モニター付インターホン、給湯、室内物干し、都市ガス、エアコン、間接照明 |
| その他 |
エレベーター |
| 条件等 |
- |
現況 |
空家 |
| 引渡可能時期 |
相談 |
物件番号 |
6988706046 |
| 情報公開日 |
2025年12月9日 |
次回更新予定日 |
2025年12月23日 |
| ケータイ用バーコード |
- スマートフォンでこの物件を見る
- スマートフォンからもこの物件をご覧になれます。
|
※「-」と表示されている項目については、情報提供会社にご確認ください。
| 周辺施設 |
イオン長崎店 |
| 距離 |
205m |
写真を見る |
| 周辺施設 |
浜屋百貨店長崎浜屋 |
| 距離 |
582m |
写真を見る |
| 周辺施設 |
ローソン長崎湊公園前店 |
| 距離 |
119m |
写真を見る |
| 周辺施設 |
セブンイレブン長崎梅香崎町店 |
| 距離 |
159m |
写真を見る |
| 周辺施設 |
江山楼中華街本店 |
| 距離 |
140m |
写真を見る |
| 周辺施設 |
地方独立行政法人長崎市立病院機構長崎みなとメディカルセンター市民病院 |
| 距離 |
497m |
写真を見る |
ここから簡単にお問い合わせをすることができます。
(SSLでの暗号化での送信を希望されるお客さまは
こちら
よりお問い合わせください)
お問い合わせを行う前に
「個人情報の取り扱いについて」を必ずお読みください。
「個人情報の取り扱いについて」に同意いただいた場合は「上記にご同意の上 確認画面へ進む」のボタンをクリックしてください。
個人情報の取り扱いについて
皆さまが送付された個人情報はアットホーム(株)のサーバを経由し、お問い合わせ先の不動産会社にメールまたはFAXにて転送されるためアットホーム(株)にも保管されます。アットホーム(株)で保管された個人情報の取り扱いについては、【こちら】をご覧ください。
また、本画面でご記入いただいた個人情報は、お問い合わせ先の不動産会社でも保管します。 お問い合わせ先の不動産会社が保管する個人情報の取り扱いについては、不動産会社に直接お問い合わせください。
長崎県知事免許(2)第3946号 |
|---|
- 交通:
- 長崎電軌本線/昭和町通駅 徒歩12分 【バス】1分 昭和町バス停
- 長崎県長崎市昭和1丁目10-33
- TEL:
- 095-865-8665
- FAX:
- 095-865-8656
- 所属団体:
- (公社)長崎県宅地建物取引業協会会員(一社)九州不動産公正取引協議会加盟
取引態様:専任媒介  - 80505410
|
- スマートフォンで
この不動産会社を見る

|
- 提携サイト等より掲載されている物件情報につきましては、不動産会社詳細情報にリンクされていないものがあります。
- 物件に関するお問合せは、物件詳細ページの「情報提供会社」に表示されている不動産会社へ直接お願いいたします。
- 間取図は、現況を優先させていただきます。
- 映像は物件の一部を撮影したものです。物件の契約にあたっての最終判断はご自身の判断に基づいて行ってください。
- 仲介手数料について

アットホームは物件情報の適正化に努めております。
内容に誤りがある場合にはこちらへご連絡ください。